台湖北神树B-30地块共有产权房项目——天恒·恒泰家园的网申工作即将开始了。此前小编已经对该项目进行过介绍了,不过近日小编又获悉有关此项目的户型图及周边情况的信息,大家有住房需求,想要更全面的了解此项目的快看看吧!

据了解,天恒·恒泰家园地理位置优越,含全装修费用销售均价20000元/㎡(建筑面积),是通州区即将入市项目中销售均价最低的共有产权房。
地里位置绝佳 周边设施完备
据小编了解,恒泰家园项目位于通州区台湖镇北神树组团范围内。东至光机电三号路,南至兴光二街,西至京渠路,北至兴光一街。距离五环约1公里,一面可以充分享受通州区域利好,一面又可以共享亦庄配套设施。


从上图可以看出,台湖镇北神树B-30地块地处通州“一核五中心”环渤海总部经济核心区,连接通州新城和亦庄新城,推动京津冀协同发展的桥头堡位置无可撼动。在道路交通上周边京沪高速、京津高速两条高速环绕,自驾和公共出行都非常便捷,通达五环畅通无阻,快速连接全城。

不仅如此,小编还了解到天恒·恒泰家园距离2020年底即将开通的地铁17号线北神树站仅800米,两站即可抵达东三环十里河站,与CBD区域畅连便捷,可以共享CBD商业利好,日常通勤十分便利,未来区域发展非常可期。
小编看来,未来的台湖发展一定不可限量!据悉这处共有产权房不仅地理位置优越、交通便利,周边的配套设施更是占尽优势!

据悉天恒·恒泰家园共有产权房采用的是围合式的社区规划,这样的设计在极大程度上确保了业主的居住体验度,另有近10000㎡自配商业设施,可以享受图书馆、菜市场、生活娱乐、超市等生活配套,未来将形成综合社区,让您左手繁华,右手繁花。
医院配套:同仁医院亦庄分院,通州第三医院,北京军海医院等;
生活配套:亦庄沃尔玛、百安居、迪卡侬、城乡世纪广场、次渠购物中心、世纪华联超市、永辉超市、物美大卖场、京客隆超市 ;
餐饮:便宜坊、金百万烤鸭、紫光园、徽忆府、福万城火锅、洞庭鱼香、京门老爆三饭庄、溢香雅园;
银行:中国银行、工商银行、建设银行、兴业银行、农业银行等 ;
邮电:邮局、电信营业厅、移动营业厅、联通营业厅;
休闲娱乐设施:亦庄体育中心、国际企业文化园体育场、亦庄羽毛球中心、鸿禧高尔夫俱乐部。
南北向板楼 户型宜居舒适
据了解天恒·恒泰家园项目总规模16.7万平方米,地上建筑规模9.2万平方米,整体规划7栋住宅楼,可提供房源1072套,全部为南北向板楼。

其中一居室10套,二居室1062套,北侧四栋楼16-18层,南侧三栋楼11-12层,主力户型为建筑面积约83平方米南向二居室及约89平方米南北通透二居室。车位配比1:1.1,容积率2.8,绿地率30%,销售均价为20000元/平方米,购房人产权份额比例为50%。
接下来,看下户型怎么样~






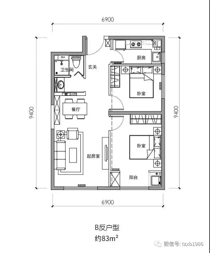
约83平米(建筑面积)

83㎡阳光南向二居,整体格局方正无浪费空间,卫生间干湿分离,方便日常操作,避免细菌滋生,保证家人健康;多向采光的设计方式还可以沐浴阳光。



约89平米(建筑面积)

89㎡南北通透二居, 在设计上动静分区,格局方正,不但可以避免不必要的打扰,又可以最大程度的提升使用空间;干湿分离,明厨设计。



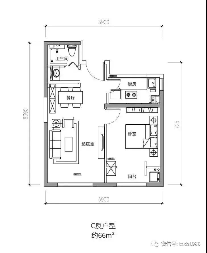
约66平米(建筑面积)
另外小编还了解到还有少量的66平方米的一居户型,尤其适合一个人住的上班族!

这种户型基本上为阳光南向一居,格局方正功能齐全,餐、客厅独立,卧室配有生活阳台。
要知道自从史上最严限购政策出台之后,台湖区域的房价已经飙升到50000元/㎡左右,面对如此价格,天恒·恒泰家园共有产权房仅仅20000元/㎡的均价再配合其完美的户型,可以说是妥妥的刚需房!

从售价和户型面积上来看,小编此前曾跟大家算过,若申请家庭选择了一套建筑面积为83平方米,销售价格为20000元/平方米的房屋,则该家庭需支付的购房款为83平方米×20000元/平方米=1660000元,预计首付款30%约为50万元,该家庭所占该套房屋产权份额比例为50%。【该项目单套住房的购房人产权份额比例为50%,北京市燕东保障性住房建设投资有限公司(政府产权份额代持机构)持有剩余50%份额。】另外,按照之前的消息,还是有全装修的噢~接下来就去网申吧~

除了这个项目,今年初通州还增加了3个共有产权项目地块,售价最高已经达到3万/平方米!目前,此项目是通州在售价格最低的共有产权房项目了。
小编觉得,机会难得。今后在通州可能找不到这么便宜的共有产权房了,有需要的就赶快下手吧!