今天再说科学城。
兑现到6成的科学城,接下来依然还会热。
不是自己过于优秀,而是是队友太LOW。只要去番禺白云荔湾增城看看,你就会知道,群众投票的理由。
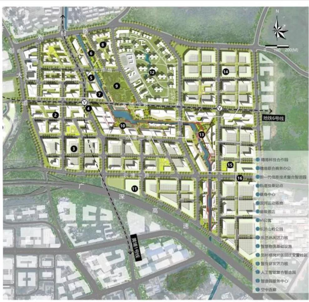
2020年11月发布的科学城提升规划设计图,其实很清楚写明了科学城的重点发展区块和方向。
1、黄埔站定位为高铁中心,附近会有中型商务区
2、暹岗板块为科学城科创中心
3、云埔的刘村范围未来会改建成产业服务中心
4、开创大道和香雪沿线沿线是综合服务中心



仔细看看科学城的土地控规图,实际上沈海高速和广园快速路中间都是大片的棕色,这些都是早年科学城发展时形成的工业区,很难改善。
因此,科学城的规划除了在重点的黄埔高铁站附近开拓了姬堂,其他的发展重心都在现有的科学城核心区。

1、黄埔高铁中心
左边本田右边石化,不搬迁做不成高端CBD,但是,高铁站附近人流另加上枢纽站的交通便利,次级的商务区是没问题的。
目前,雅居乐跟进,区域开发为1,园长觉得,姬堂的改造,值得关注的,至少在租赁和商业上,有想象的空间。

2、暹岗板块的科创中心
科创中心是早年的科学城中心+暹岗旧改。

科学城中心早就建起来很多年,但这个地方的人气,一直起不来,早年的商业业态,趋于过时。
主要的原因是科学城的人口不够,早年的商场招商也没做好,现在几乎商业都在万达。
科学城最好的土地,给了大壮,但是大壮的引资,又偏弱。如果拉长商业的开发周期,在土地价值进一步升值后,引入强有力的商业合作公司,科创中心还是很值得期待的。
但是不管咋样,大壮的价值,还会有提升。
3、云埔的产业服务中心
云埔附近目前有中海誉城,万科金梦,岭南雅筑,龙湖绿地时代等几个项目。
云埔的产业服务中心,实际上是将刘村的旧改以及附近的产业进行了新的规整规划。
产业的发展应该不会脱离现有的物流和中小企业,但是部分旧厂可能需要重新改造。
这个区域的改造意义更多来源于面貌的提升和部分产业的升级。


云埔未来有黄埔1号线和地铁6号线延长线(所谓即将拆解的20号线。)
4、综合服务中心
原来的区府板块。
目前的商业和总部大楼基本都沿着开创大道布局,也就是香雪核心生活圈。
过了品秀星樾之后,被创新公园山体阻断。时代天境很尴尬,不要买。
所以,商业后一代趋势是香雪大道沿线的村落旧改,这个区位是未来科学城的商业增长点,主体,是星河湾。

最后说各板块交通。
看两张图。
这里面有几个重要的交通节点, 长平,萝岗,姬堂,黄埔高铁站和云埔。
这主要和科学城设计规划图中曝光地铁新线路有关。
1、知识城到东站的高速地铁,传闻的37号线,过长平,萝岗,到黄埔站,到东站。
2、姬堂是7号线和19号线的交叉点。
19号线是未来过奥体,智谷,然后去往潭村到海珠的远期线路。
3、云埔是黄埔1号线和14号线支线的交叉点。

而从道路交通系统图看,虽然创新大道也是新规划的未来竖向中轴,但是并非是快速路。
而开放大道规划是快速路,利好云埔的通勤,去往知识城和老黄埔。

从线网规划来看,长岭居通过有轨电车1号线,21号线,7号线,未来的37号线 ,和增城,区府以及老黄埔,天河更为紧密。
而云埔,通过有轨电车二号线,14号线支线,开放大道,6号线延长线,和 香雪核心区,区府,新塘以及知识城距离更近关系更紧密。
另外,云埔的公路交通通达性要强过于长岭居(长岭居是长条横向轴),人口多了道路承接压力更大。
但是长岭居的优势是,有地铁长平站,目前有21号线,未来有高速地铁37号线。
总体来说,长岭居,一定要挨着长平站来买,能步行到长平站的房子都是很有价值和潜力的。
云埔板块也可以,毕竟城市新,未来通达也好。
当然,科学城最好的还是区府板块了 ,通过6号线,21号线,7号线,37号线,与增城新塘知识城老黄埔和天河都发生关系。
保利罗兰,大壮,鼎峰,宝能未来价值还会提升。水西板块香雪板块,则是区府次级。
以上,如果觉得有帮助,记得关注园长。