设计不是一种钱多钱少的攀比,设计的本质是一种选择更好生活方式的改变。面对房屋面积小,户型差,预算有限的情况时,设计的魅力和重要性会体现的尤为明显。今天要带大家走进的这对广州夫妻之家便是如此,65㎡,面积虽小却布置得精致高级,惹人喜爱,处处都是治愈气息。也许全屋没有华丽的装饰,但以木色、米色白色为主的干净配色却能让人心旷神怡,感受到无比温馨。在细节设计上,针对户型的很多缺点位置进行了巧妙优化,处处充满智慧,跟随小助手的脚步,一探究竟吧!

房屋基本情况和设计理念简介

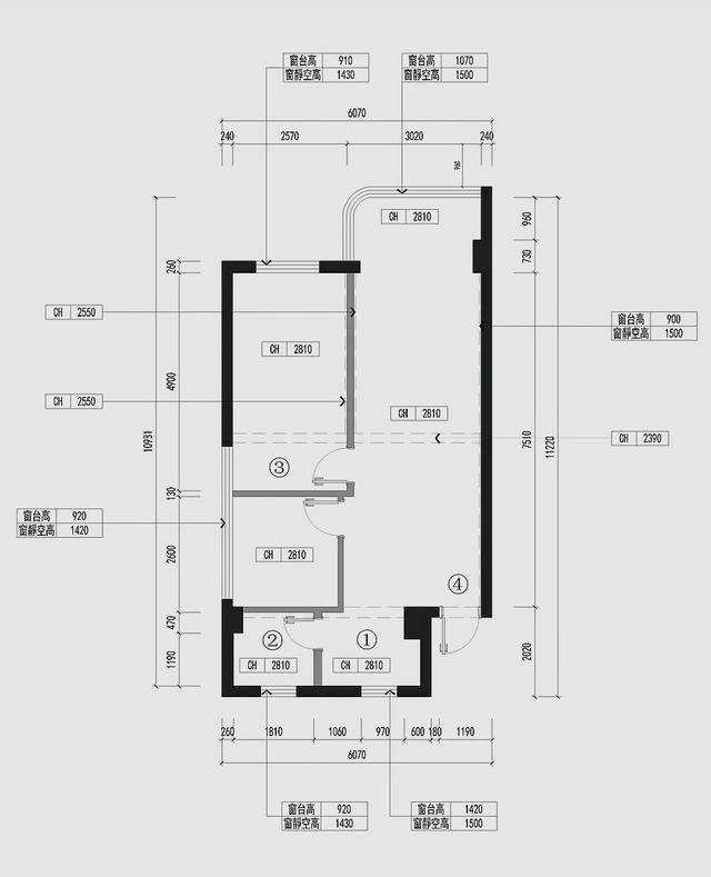
▲原始户型图
面对原户型,真的有很多缺陷值得“吐槽”,如图中数字标注,我来详细说说:
①厨房面积小的可怜,储物机能和操作空间都严重不足。
②卫生间也小的可怜,去卫生间还要从厨房进入。
③主卧面积过于狭长,开门位置过于紧凑,不好布置衣柜,空间浪费严重。
④入户就是厅,空间紧凑,难以打造入户收纳空间。

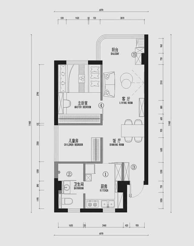
▲改造后方案图
结合房屋本身的优缺点,以及屋主的生活诉求,@一方天地空间设计做了如下巧妙改造:
①、②厨房和卫生间整体向饭厅、儿童房方向位移1.25米,完美扩大厨房和卫生间面积。虽然依旧要从厨房进入卫生间,但内部做了三分离隔味模式,干净卫生。
③经由厨房面积扩大,入户位得以拥有独立门厅,储物机能得以完美打造。
④主卧面积缩小后,并不影响实际使用,适当修改门洞位置,延长左侧墙垛设推拉门,可打造更充足的衣柜,也更节约空间。
⑤利用定制柜子延长阳台墙垛,嵌入洗衣设备,保证视觉美观和功能实现。
屋内实景

▲玄关鞋柜
整个厨房结构扩大之后,入户门右侧的墙垛得以延长,如此,可以打造垂直于入户门的充足鞋柜布局。白色极简门板+木色柜体,不仅完美弱化鞋柜体积感,也带来了丰富的温馨视觉层次。陈列绿植、饰品,一进屋就感觉到温馨满满!

在保证美观性的同时,兼顾实用主义,一些小细节足见生活智慧。鞋柜底部也设置了30cm左右的悬空区域,经常穿的鞋子堆放在下面不会凌乱,十分方便。门后也设置了壁挂收纳区,用来存放两把雨伞,好看又实用。

▲餐厅改造前后对比

▲餐厅
从这个视角就能看到餐厅扩大后的整个墙体结构特点,透过玻璃推拉门,可以看到厨房的面积扩大不少。

餐桌椅靠墙摆放,从功能角度讲,也兼顾了半组屏风的作用,可以从视觉上巧妙划分格局,也能简单遮挡入户大门正对电视墙的突兀问题。北欧风的白蜡木的餐桌椅,让人觉得耐看、踏实又环保,今后可搭配漂亮的防水桌布,打造更具生活气息的居家场景。

▲客厅
步入客厅,虽然乍一看面积不大,但整体效果非常简约温馨,没有丝毫累赘感。日式风格讲究暖调,以及材料的天然温润,木制品和布艺品运用是最多的,墙面色调根据自己喜好融入米色白色都可以,营造一种纯洁质朴又不会简陋的空间氛围。

我个人非常喜爱屋主家的客厅沙发,因为平时极少来客人,也暂时没有孩子,所以选择了两个模块进行拼接搭配,靠背都是配套,可以拆卸清洗的。后期如果对沙发的需求量更大,可以再买几个模块,根据自己的喜好自由组合造型,灵动又实用,简约又舒适。不需要太大的茶几,一组实木藤编拼接边几不仅拥有良好的复古装饰感,也便于移动,临时置物很方便。

▲阳台改造前后对比1
之前的阳台虽然也包在室内,但地面铺装的区别显得空间不够大气。

如今,把客厅的木地板延伸铺设到阳台,视觉效果更大气。除开洗衣晾晒,阳台也兼顾休闲区域,白纱帘带来的朦胧感,显得慵懒十足,居家气息浓烈。

▲阳台改造前后对比2

由定制柜延长阳台墙垛,嵌入洗衣机、烘干机,柜体带来丰富的收纳空间,视觉上也能遮挡洗衣设备侧面的突兀感,同时呼应屋内的白色和木色,无拉手设计依旧保证了柜体的体积感得以弱化。
对相对湿气较重的南方地区来说,遇到梅雨季节,即便气温不低也晒不干,衣物总是有潮气,烘干机完美解决了晾晒问题。同时也提升了做家务的效率,衣服不必挂在阳台影响视觉,简约干净。

▲主卧
改造后的主卧室,虽然面积缩小了,但温馨感和实用性只增不减。

大面积的鞋柜延伸到床头左侧转角处,一体式的打造了书桌、书柜,不仅把床头柜的置物功能和书桌重叠,左侧衣柜细节上还做了很多镂空书柜,视觉融合性超棒,功能强大。针对小面积卧室而言,是非常不错的空间利用方法。

▲儿童房
在主卧和厨房的改造过程当这种,儿童房作为夹在中间的空间,实际面积并没有缩小。因为孩子暂时还没有分房睡,所以在这个房间暂且只打造了衣柜,摆放适当的玩具柜,用于充当孩子的游戏区。

▲厨房改造前后对比
之前的厨房水槽只有“巴掌大”,而且挤在角落,用起来非常难受。改造后厨房面积的可以扩大,功能细节区域得以优化。

▲厨房
满足洗菜、切菜、炒菜功能的完美衔接同时,操作空间也很足够,水槽左侧有丰富的台面和储物空间,收纳备物和常用物,生活动线一气呵成。

东西虽然多,但是排列整齐有序,一目了然。这其实就是让人最舒服的“烟火气”。房子不大,则温馨实用至上。

▲卫生间改造前后对比
之前的卫生间空间紧凑,地面排水管甚至走明线,洗澡的时候整个空间都是湿漉漉的,处处都是卫生死角,对于潮湿的南方地区来说,就是“噩梦”,真的太容易发霉了。而且卫生间的难闻气味还会影响厨房。

▲卫生间
改造后的卫生间扩大不少,让洗漱区正对门洞位置,视觉感受会更良好不突兀。
左右两侧分组别安装玻璃推拉门,都采用吊滑门形式,减少卫生死角。上厕所的时候关上推拉门,打开窗户或者排风扇,臭味可以很好的隔绝和消散,更卫生更健康,淋浴区也是同样的设计道理。玻璃门都采用的是不透影的磨砂玻璃,如有家属在洗澡,关上推拉门,进去洗脸刷牙也是不会干扰的,十分方便。

▲洗漱区细节
带有防雾镜灯的浴室镜,完美烘托空间氛围。台盆一体式洗手池,打扫起来十分便利,屏蔽卫生死角。
户型回顾

最后,分享一下本案的3D模型拆解图,大家可以更好的了解本案的具体户型设计,以及收纳模块和功能布局。
说在最后
在北上广等一线城市,类似屋主家这样的户型非常普遍,因为生活节奏快,空间居住面积有限,多数屋主针对设计都会很理性的坚持“实用主义”,我个人认为日式风格是一种很好的表现形式,实用至上,搭配简约美学,把房子打造的充满温馨感,环保耐看又不易过时,还能符合多个年龄层次的审美观点。设计师通过拿捏有度的改造,对全屋空间进行了完美优化,为屋主一家打造了理想栖居。本文就分享到这里了,感谢大家阅读!