热带雨林精灵带来的感官旅行:作为来自马来西亚的灵芝产品品牌Gano Excel,我们把灵芝生长的环境、传递健康的理念与创意结合,以全新颠覆的形象和方式,带给展示空间的全新体验。设计灵感来源“灵芝”本身,无论是空间平面上的规划,亦或主色调定位、艺术装置等,都是基于热带雨林的植物精灵——灵芝。灵芝袍子粉的红色、热情活力的红色作为主色调,空间“红”与“白”的交融、相互映衬,使其平衡、干净而纯粹。

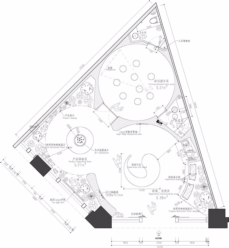
在100平方开放的平面中布置了三个圆形的有机空间,仿佛置身神秘的雨林奇境之中。健康活力的设计主题中的生长轨迹元素包含了洽谈交流、产品体验、培训演示、秘境体验,创造雨林灵芝与人沉浸式的对话,为进入这个空间的每个人提供一次感官的旅行。

为此特别设计的DNA艺术动感装置,象征健康活力的血液向上旋转缓缓流动,连接延展生长在天花上的的红色飘带,巧妙的功能区分跟空间动线延伸扩展,也使体验空间显得更整体。雨滴展示装置的随机下落停留在整个热带雨林布景中更直接明了的展示灵芝生长环境。

为了可以应对各种活动及其他需求,我们设计了一个多功能的空间 ,以不同的展示方式及灯光表现为特色。白色墙面在紫外光源的照射下走入又一个梦幻神秘的雨林奇境:在正常的自然灯光下则是一个培训及休息的区域。创造一个活力、热情、人与自然对话的空间,让从热带雨林走出来的精灵为人民带来更加健康的生活体验。











项目名称:雨林灵芝体验馆
设计方:香港映洋空间设计顾问有限公司
公司网站:http://www.modhk.cn/
联系邮箱:mod_blue@163.com
完成时间:2018年8月建成
主创:蓝天
设计团队:黄海波、许冰冰、蔡伟森、叶枝
项目地址:深圳市宝安区
建筑面积:100㎡
客户:Gano Excel
品牌:水磨石、GRG、艺术涂料、彩砂