小区名称:郑州天地湾
项目性质:别墅
建筑面积:360平
装修风格:混搭
工程造价:122.00万(不包含家具、家电)
整体效果图以北欧与美式混搭为主,色调稳重。布局唯美舒适的造型设计,没有繁杂的造型设计表达出极简的工艺之美,休闲雅致的生活住宅空间完美的逆袭成为一种流行趋势,欢迎赏析极简打造的大宅空间。

郑州天地湾360平混搭风格,运用北欧与美式元素打造出休闲雅致的品位生活空间————入户布局

郑州天地湾360平混搭风格,运用北欧与美式元素打造出休闲雅致的品位生活空间————电视背景墙

郑州天地湾360平混搭风格,运用北欧与美式元素打造出休闲雅致的品位生活空间————沙发背景墙

郑州天地湾360平混搭风格,运用北欧与美式元素打造出休闲雅致的品位生活空间————厨房全景布局

郑州天地湾360平混搭风格,运用北欧与美式元素打造出休闲雅致的品位生活空间————走廊布局

郑州天地湾360平混搭风格,运用北欧与美式元素打造出休闲雅致的品位生活空间————餐厅布局全景

郑州天地湾360平混搭风格,运用北欧与美式元素打造出休闲雅致的品位生活空间————生活区布局

郑州天地湾360平混搭风格,运用北欧与美式元素打造出休闲雅致的品位生活空间————卫浴间设计

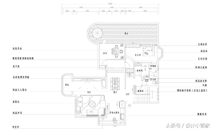
郑州天地湾360平混搭风格,运用北欧与美式元素打造出休闲雅致的品位生活空间————平面布局方案

郑州天地湾360平混搭风格,运用北欧与美式元素打造出休闲雅致的品位生活空间————主卧室全景布局
装修服务城市:河南(郑州 新乡 安阳 洛阳 南阳 濮阳 鹤壁 焦作 漯河 许昌 驻马店)合肥 济南 江门 福州