
朦胧的“屏风”
关于君谊

君谊中学原篮球馆
“段氏后人不从政,皆从事医疗、教育”,这是君谊中学创始人段君宜女士的曾祖父段祺瑞的遗训。怀揣着这样的理想,出身教育世家段君宜女士于1993年在北京成立私立君谊中学,为北京市第一批民办学校。这所充满着历史传承和文人气息的学校秉持着低密度、讨论式的教学模式,提倡个性化、差异化因材施教。
因教学空间不足,学校向教育部门申请,计划将现有篮球馆改造为国际部。除了普通教室,校方还希望获得足够的多功能活动室及交流空间,作为孩子们自由讨论的空间空,年轻的国际部校长还不断地和我探讨对未来教育模式看法,她希望营造一种开放、平等、充满创造性的学习氛围。
空间原型
“我认为,学校是由适合学习的空间所构成的环境,学校开始于一棵树下,一个不自觉为老师的人与一些不自觉为学生的人讨论着他们对事物的领悟。”——路易斯·康(Louis I. Kahn)。
有些时候,只有将实际项目与康的话结合才能理解其含义。我找到两幅具代表意义的中国私塾教学场景:宋画《孔子授学图》和明代林良的《学童闹堂图》。

孔子授学图 宋佚名

学童闹堂图 明林良
两幅描绘的古代教育空间的形态有三处共同点:开放和园林化以及融洽的师生关系。联想康所说的“一棵树下”的学习空间,这二幅图近乎可以作为路易斯·康关于学习空间言论的图解。虽然没有树,但宋画的“屏”与明画的“亭”都起着界定空间的作用,与康的那棵“树”是一样,只不过更为具象、更功能化了。这种与自然交融、空间开放通透的园林化空间,氛围是轻松愉悦的,光线、空气是流动的,充盈着自然的气息,才是学生们能够尽情发挥天性、并能与严格的老师融洽共处的原因所在吧。
营造“游园”
这种空间原型可以由一个“园”字概括。然而在800平米的君谊篮球馆有限空间中,且在校方要获得更多房间的需求下,将学习空间营造为一个“园”着实困难,并且在当代教育模式下,教室无法完全对外开敞,因此我们计划营造一种“类园”空间,并赋予空间时间性和流动性,加入“游”字,得“游园”架构,类似古典园林的理景手法,小空间中见大气象,通过折叠空间、障景等手法,令空间变得曲折、丰富、多样,进而获得错落有致、开阖有序、明暗变化、疏密得当的趣味空间,这些空间作为多功能教室和共享空间,颇具园园林化意味,又似游戏空间,普通教室为方正形态,围绕共享空间。
将“园”置于体育馆空间中心,向天空开窗,形成一种室内空间的“内院”,东西布置教室,并向外开放,获得自然采光和通风,北侧入口大厅向操场开放,使内部的“园”获得借景,顶部天窗为“园”提供光线和天空,与自然的沟通为空间带来灵动,剖面的错落和平面的转折令空间获得园林式趣味,动线和视线的充分流通,得“游”之动作。“游园”结构将空间与人的身体和知觉连接起来。

“游园”空间
空间形体
围合空间的形体本身被赋予两种性格,一种沉稳厚重,表达君谊中学厚重的历史底蕴;一种轻盈飘逸,表达当下时代新的教学理念和轻松学习氛围。两种性格相互映衬、对撞,又和谐统一。

阳光下,轻盈的U玻与厚重的耐候钢板
耐候钢板性格刚直,暗喻着西式教育逻辑性和直接,U型玻璃性格柔美,体现着东方文化的诗意和中庸。

外“园”与建筑表皮的结合,使表皮成为有厚度的空间
建筑外围界面均被赋予空间纵深,如竹与耐候钢空洞的刚柔结合,U玻与开敞阳台的虚实结合,作为“园”向外拓展的最后一层空间,这层界面无论从外看还是从内看都作园林形态,光影在这种纵深界面中移动,记录着时间的流逝,为室内赋予空间拓展和景观,为室外营造通透丰富的形体和光色。

从校园中心景观水池看建筑

首层改造的玻璃砖与二层U玻的形式变化

建筑的横向线条将视线引向操场

立面细节

回看小院景观庭院(日夜景)
耐候钢的色泽呼应了整个小院的建筑色彩,U玻为其增添诗意。

老水池,新立面

从校园入口拱门看建筑

开放通透的北入口,在傍晚可以看到“园”的形态

入口大厅
入口大厅为原篮球馆最北跨改造而成,用足原馆空间净高,形成向上空间,并拆除北墙,将操场景观收入室内。

由入口大厅看走廊

“园”—苍穹之下的学习空间
大台阶空间联系着首层大厅和二层活动平台,以天为盖,以阶为席,类似“树”下空间,为学习、交流提供一处开放、与自然融通之所,其空间界面似露非露,欲遮又藏,其章法源自古典园林的障景,永不给人示以全貌,促使人不断探索、不断畅游,在游的间隙,走廊、大厅、楼梯、天窗等空间将外部景色框入室内。

台阶读书空间与进入公共卫生间的“折廊”

由二层夹层平台,视线可穿过空中过廊眺望远处室外景观

由大厅看大台阶和三层空中过廊

从二层夹层平台看东侧走廊和天窗

从空中过廊俯瞰大台阶及“水晶宫”会议室及两侧抄手游廊

讨论空间

联系二层夹层、三层走廊和三层夹层的楼梯

从二层走廊看北侧入口及远处景观

“水晶宫”会议室内景
建筑中心部位不能直接采光的孔,采用贯通二、三层的采光井,将光线直接引入,形成柔和自然的内景效果。游园之间,光影交错,明暗变化,令空间体验更为丰富。

去向一对一教室的仪式感楼梯
写在最后
我们以为,建筑可分为几个层次,第一层是要合理的满足功能,第二层是创造性的解决功能,即赋予功能以逻辑和美感,第三层则是在满足前两点的基础上赋予空间以灵魂,即空间的精神。在设计之初,除了了解基地、功能等之外,我们还希望了解一个业主或一群业主的背景和人格、场所的性格和文化脉络,由此探索一种与之契合的“空间原型”和普遍真理,寻找到一些深刻的内在逻辑,将这些内在逻辑注入建筑,赋予灵魂,作为设计核心,功能和形式围绕此进行构造,待到空间营造完毕,其空间精神性可被感知。我们称之为从无形(感受)到有形(建造)再到无形(感知)的营造过程。
技术图纸

总平面图

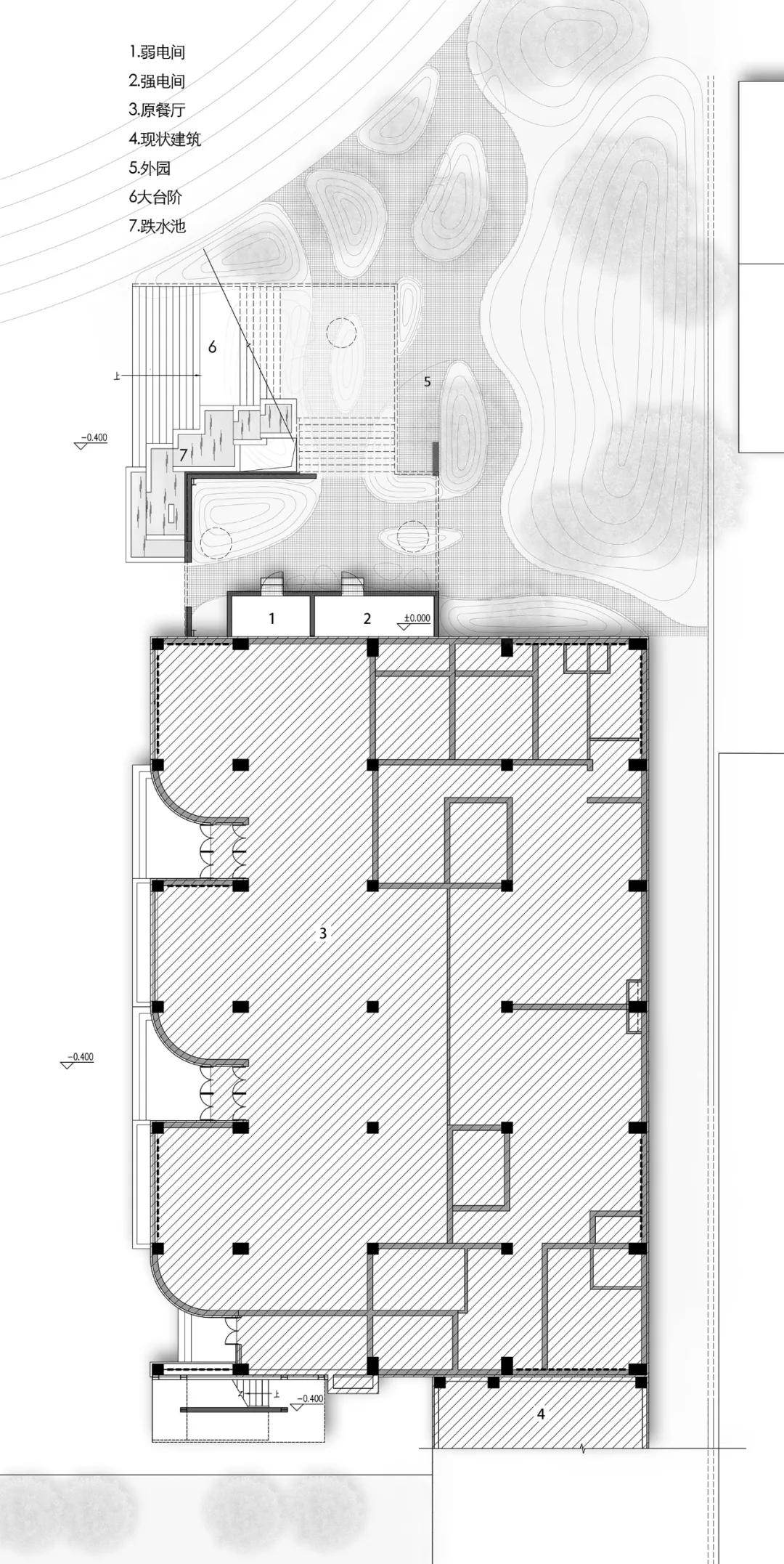
首层平面图

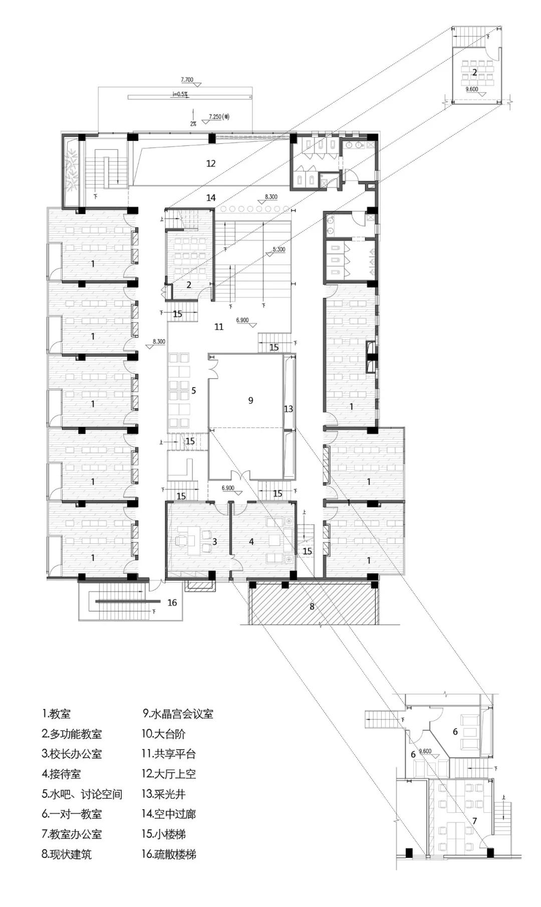
二层平面图

三层平面图

北立面

西立面

剖面一:原有篮球馆中间部位置入“园”

剖面二:“园”由南向北逐渐打开,将北侧操场景观收入室内
项目信息
项目名称: 北京市君谊中国际部
项目类型:建筑、室内、改造
项目地点:北京市大兴区
设计单位:意度建筑·EDO
施工图设计:华诚博远工程技术集团有限公司
主创建筑师: 谌喜民
方案设计团队完整名单:谌喜民、王宇龙、姜博文
业主:北京私立君谊中学
建成状态:建成
设计时间(起迄年月):2018年4月-2018年12月
建设时间(起迄年月):2018年6月-2019年9月
用地面积(平方米):709
建筑面积(平方米):2942
施工图:谌喜民、韩春平、李弋军、焦跃
室内设计指导:刘岩
施工:北京华邑建设工程有限公司
材料:耐候钢板、U型玻璃、玻璃砖、质感涂料
摄影师:金伟琦
本文资料来源:意度建筑