本案小区:融创中央学府(知香园)
本案户型:三室两厅一厨一卫
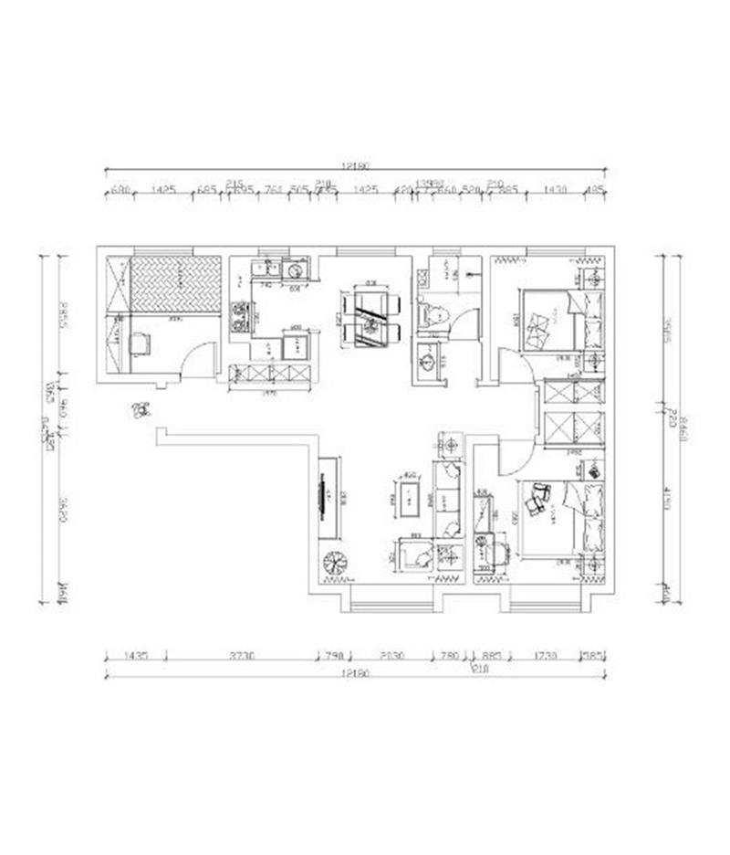
本案面积:120
本案风格:简约美式
设计说明:本案为融创中央学府三室两厅一厨一卫120㎡户型,该户型为三口之家,男业主做的行政经理工作,三十岁左右,妻子是家庭主妇,在家照顾孩子,家里有一个一岁的小男孩,比较注重生活品质。男业主在家主要是休息,女业主要化妆,小男孩太小,要有安全玩耍的地方,要有儿童房,卫生间要干湿分区整体平面比较规整,面积利用率高,力天装饰公司的设计师按照业主的要求,制定了简约美式风格,今天我们就来欣赏这套120㎡毛坯房整体装修简约美式效果图。

一、客厅
客厅石膏板吊顶搭配石膏素线,整体为浅咖色墙面,石膏素线和浅色美式壁纸搭配出的电视背景墙,突显出了简约美式的风格特点。


一、餐厅
餐厅里厨房非常近,为了保证动线的流畅,厨房被做成半开放式,明亮通透餐厅空间独立、通风采光,厨房有独立采光通风,避免了“暗厨”,不管是就餐还是做饭都非常舒适。

一、餐厅
餐厅里厨房非常近,为了保证动线的流畅,厨房被做成半开放式,明亮通透餐厅空间独立、通风采光,厨房有独立采光通风,避免了“暗厨”,不管是就餐还是做饭都非常舒适。

一、次卧室
次卧室的空间与主卧室一样,非常的宽敞,采光通风也很不错,为了能增加次卧室的储物,采用了通顶的衣柜设计,白色家具让整个空间显得更加整洁,凸显档次!

一、儿童房
儿童房采用蓝灰色的墙面,搭配白色简美风格的榻榻米,既美观又提高了空间使用率。空间利用率高,孩子长大之后还可以继续用。

针对这套120㎡毛坯房整体装修简约美式效果图,您觉得本案的设计与配搭如何?为此,力天装饰公司的设计师表示,本户型是双向对侧采光,属于对流,通风性很好。整体平面比较规整,区域划分明确,动线也很合理,不涉及有拆改的部分。力天装饰公司怎么样?津门筑家24载,臻心陪伴万家,阳光力天竭诚为每一位顾客提供贴心放心的服务。