
中海国际公馆:项目地址位于顺义城区,距地石门地铁1000米,居然之家旁边。
业主简介:
男主人 :自主经商平面广告方向;女主人:空姐,女主人的母亲和女儿在次卧居住,客户虽然注重生活品质但钱不是随意花的,注重性价比
需求:
比较注重生活情调和品质,拥有中央空调净水系统。
——此设计案例已通过业主允许。

项目名称:中海·国际公馆
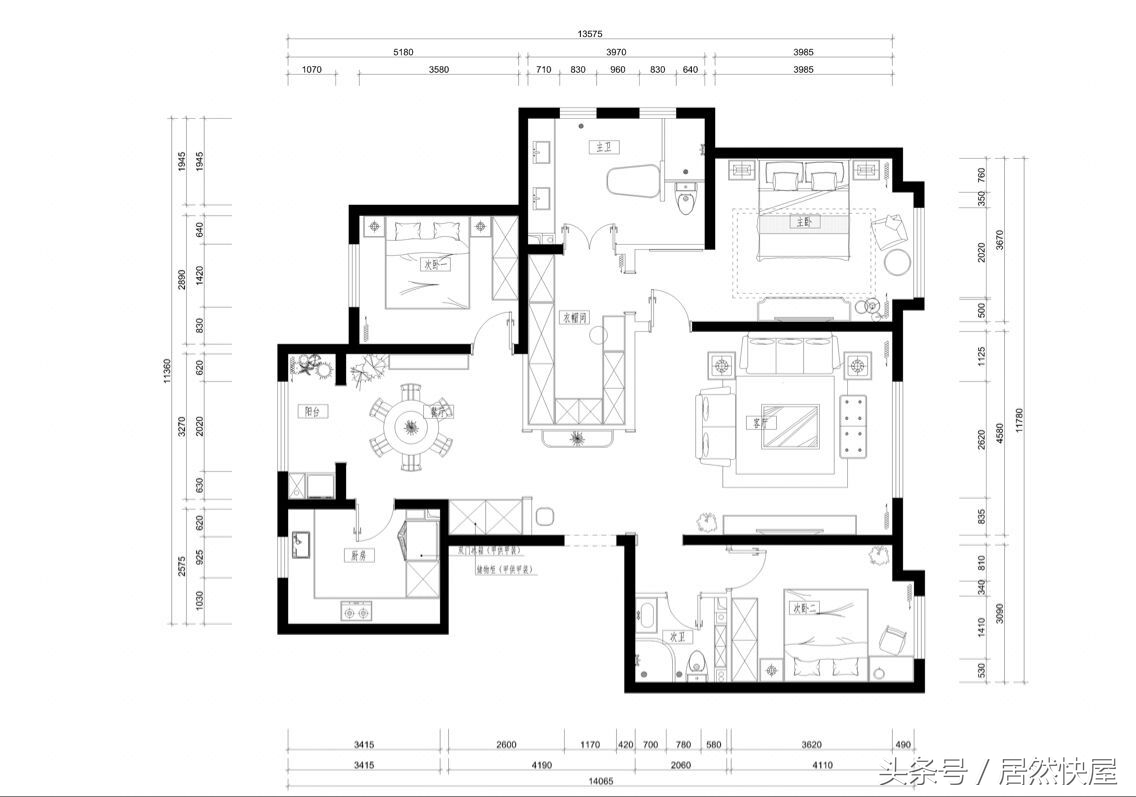
项目面积:170㎡
设计单位:快屋家装-顺义店
主案设计:杨佳鑫
设计说明:
“上善若水,其实心亦如水,方能见融万物”,委婉而不张扬,更贴近业主的生活,在繁华的都市中,塑造出一个灵静而素雅的空间。
客厅

客厅简洁大方,用线条勾勒空间的层次,软装和摆设上采用雅致的绘画和精致的小盆栽,这种回归自然的质朴恰恰给人一种贴心的舒适,可以很快的投入到空间的氛围当中去,放松自我。
餐厅
窗明几净,暖日和风,只粗茶野果,尽有于欢,餐桌上放置的花瓶,几支盛开的鲜花,心素如简,整个空间呈现出端庄优雅的欧式格调。

玄关

主卧
卧室以舒适为主,沉稳的木搭配纯净的白,赋予空间静谧的情绪。

主卫
浴室选用仿石材砖,使整个空间光滑而又干净,木制的浴室柜,简洁大气,对于卫浴来说,除了舒适之外,还要起到美观整洁的作用。

南韵套餐:
①套内135平米②施工+材料=25.8万
合作产品品牌

设计师简介-快屋顺义店

更多设计师案例,请访问“居然之家-居然快屋装饰”官网或关注“居然快屋”微信公众号