客人对欧式元素情有独钟我们让你整天活在“欧洲”
如果让你整天住在装饰华丽、色彩浓烈、造型精美的欧式风格中,你会有什么感觉?奢华、享受、舒适......
家住昆明五华区的陈先生就每天生活在这样的环境中,今天创艺装饰带大家走进陈先生的生活,感受他的生活。
设计案例:昆明云铜时代之窗200平方米欧式复式家装案例
风格:欧式风格
户型:复式
设计符号:经典格调,缔造生活品位
室内设计师:范晓宁
使用家具品牌:萨米特瓷砖、拜尔地板、鹰卫浴品牌
设计说明:
该客户对欧式元素的时尚感是情有独钟。在设计过程中,从功能上考虑到厨房狭小,进行了部分墙体改造,调整了厨房空间尺寸比例。以及客卫空间。考虑到客户虽然单身,但是物品较多,单独设计了主卧室卫生间及更衣间的套间配置方便使用。开放空间,做了阳台扩入客厅的考虑。营造更开放的空间感。通过不同功能区域吊顶,改善功能和空间的分布。吊顶采用金属线条的反光感,增加时尚质感,避免空间一味沉闷,压抑。
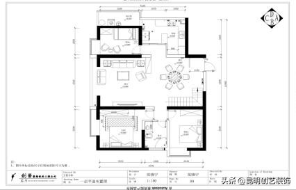
平面效果图:


本案例为复式户型,一楼主要为客厅、餐厅和三个卧室,二楼则是一个主卧,一个书房,剩下的大面积被设计师设计为健身区和休闲区,将200平方米的空间合理的利用起来,不浪费每一寸空间。
客厅:
一楼

欧式风格的家具立体感很强,家具表面常是凹凸的线条或是又起伏的线条,整套家具整体上存在连续的变化和层次感。
白色乳胶漆打底,为整个客厅奠定基础色调,黄色的电视背景墙、蓝色、黄色的沙发形成强烈的颜色对比,增加视觉的冲击感,凸显奢华气息。
二楼:

二楼的休息区则是全家人活动的中心,孩子在这里学习钢琴,父母在这里喝茶看书,二楼休息间与一楼客厅装修风格相似,都是典型的欧式风格,但是二楼则家居氛围更加浓郁。
餐厅:

一楼客厅旁边便是餐厅,圆拱形的吊顶显得奢华,华丽的吊灯为整个餐厅营造出温馨的家庭气氛。
圆形的木质餐桌,深蓝色的餐椅凸显主人生活品味。
卧室:


卧室奢华却不失温馨,顶角线将整个吊顶显得略有格调,营造出温馨浪漫的休息氛围。卧室的装饰材质大多数选择面料和质感很好的丝质面料,不仅能体现主人的品味,而且给主人舒适的感觉。
精美的线条、华丽的装饰让整个房间散发奢靡的气息。
创艺装饰作为昆明22年本土知名家装品牌,中国优秀家装企业,服务过十几万家客户,积累了丰富的设计、施工、管理经验,让您省时省心省力,更省钱。
创艺装饰为您提供,毛坯房、精装房 、二手房装修解决方案。
毛坯房100㎡装修只需13.98万,让您拎包搬新家(昆明地区)
预约咨询热线:0871-65656588

昆明地区装修VX扫码注册领取500元装修优惠券
关注头条号抢500元装修优惠券!每天发布家装知识攻略,装修设计案例,让您掌握2019年家居装修的潮流趋势~
