设计单位:李一空间设计事务所
主创设计:李一、青青
参与设计:方净鑫、陈彬
面积:350㎡
主要材料:松木、蔺草、铝方通、麻石、艺术涂料
坐落地点:浙江宁波
摄影:朴言
龙吟大江户
龙吟大江户明州店是一个高档日本料理空间,其为大江户餐饮集团旗下细分类餐饮品牌,地处宁波新CBD明州里核心商业区,由一层板前功区与二层包间组成。




似革命般毁灭性的差异或是近无瑕之美是本案设计师曾对商业餐饮空间氛围设造的追求逻辑,但这次空间的打造更希望有一个新的词语“THE FUSION”(融合)。历史亦或是文化被世人所传承与传播是毋庸置疑的设计态度,但时代却给予了一个传播方式和接收方式的新命题。“当代”或许是一种年轻设计师最好的表达方式。



移门而入,将后厨空间与板前功区放在了一层,没错,我们将寸土寸金的中心商业区店面的一层只给了这两个功区。在日料纯正血统中,板前向来是最为重要的食用佳地,它是板前食客对料理艺术的直接接触,也是板后料理长对食客需求的直接订制和对料理文化的直观传输。直接连接的后厨保证了食材用最少时间送至食客面前,新鲜一直是日料非常重要的追求之一,哪怕是分秒之差。而中国人保守低调的生活态度却让消费者常常错过这核心的料理体验方式,相比起板前国人更接受包间或是卡座式的私密性就餐环境。那么,把一层做成一个只有板前的包厢怎么样?这是团队对这次空间规划的最佳创意,除了板前,我们将背后空间营造了一榻茶区,吊炉,古木桌,插花艺术,传统茶器等共同创造了东方美学的直观展示。桌后“结界”即做到了区域的划分,又模糊了界线的定义,向心着此次项目的设计初衷。




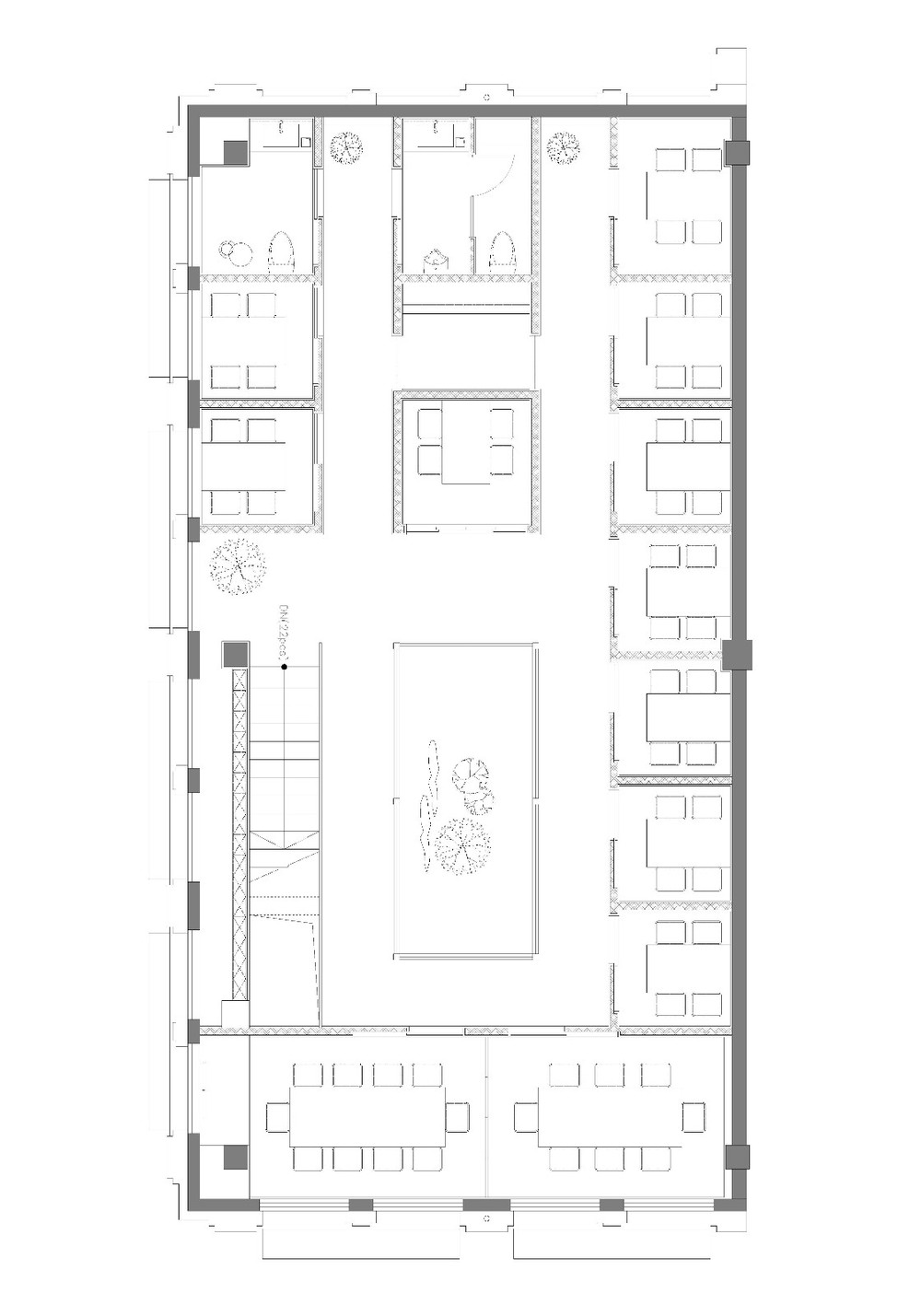
如果说一楼是对日料仪式的致敬,那么二层就是对实用空间的打造了,而楼梯成了精神印象与现实体验空间的联系。沿着线性的灯光,踏阶而上,伴随着左侧千姿态和风人偶的立面,仿佛用一种方式叙述着日式对客人最高的欢迎礼。右侧条型隔栅组成的扶栏结合着光影,客人通过的过程,光影斜射,树影婆娑,刹那间你已是景中之人。



二楼空间以枯山水景为中轴打开,四周大中小包间围绕,创造私密用餐环境的同时,又最大化做出营利空间。老前辈们对于苏式园林的总结,给了这次动线最好的参考“移步异景”。品尝料理的过程已不再只是品味食材本身的魅力,“怀石”是一次对人文,对美学,对精神,对哲理的体验过程。
平面图

