远山逶迤, 翠谷如画, 看天牧云, 云淡, 成朵、成团、成花、成海;云浓, 如龙遨游、如羊成群;风动、云动, 心随风舞, 溪流淙淙, 鸢飞鱼跃, 岁月静好......
故名: 牧云溪谷。

择居山湖美境,拥抱阔景人生
牧云溪谷地处深圳,位于龙岗大道与长山路交汇处,是集山湖墅群、高层住宅、酒店、中心级商业MALL、双语名校、私家会所、运动公园等一站式配套于一身的两百万平综合体,是区域生态度假宜居墅区。
大隐于朝,中隐于市,对于极具现代化发展节奏的深圳而言,牧云溪谷无疑是坐落繁华都市里的一处隐室。

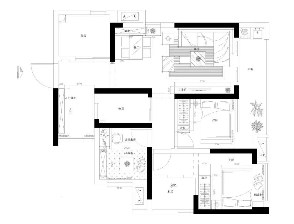
平面布局
牧云溪谷整体户型方正,活动区域开阔,居住舒适度高;全明户型,各部分空间均有窗,可保证整体空间采光和通风,居住舒适度好;整体空间布局合理,能够保证动静分离和居室通风,方便使用;各个功能区的尺寸比例规范,布局合理,能很好地满足日常功能需求,室内空间开阔,采光充足,居住舒适度好。
看庭前花开花落,望天空云卷云舒。为了契合牧云溪谷的整体意境,追求闲淡静雅的空间氛围,设计师在本案设计中巧妙的将莫兰迪色系灵活运用,高级灰的雅致纯净让空间画面更加完美平衡,舒缓平和。窗外的蓝天白云,在高级灰色调的映衬之下,不染俗世烟尘,似是与空间形成一体,美不胜收。

岁月不语,云寄遐思。高级灰色调向来是设计师的常用‘语言’,色泽低调不鲜亮,仿佛蒙上了一层灰,不张扬却能够让整个画面相互制约,相互抵消,有时略显清冷,却总能让人越看越喜欢。
入户处的鞋柜以象牙白为基调,搭配纯木色,展现出恰到好处的简约,兼具收纳和装饰于一体,实用性十足,早已成为室内家装设计不可或缺的元素。

简洁而不失大方,素雅而不失格调,客厅的设计同样以简约为主,色调运用更富诗意,中国传统色彩月白色,让墙面和窗帘别具一格,高级感油然而生。
软装配饰让简洁的空间回归生活,米黄色沙发和木质茶几,让我们在这一方空间中,会客交流,休闲小憩,慢慢感受生活的温度和岁月的痕迹。
透过阳台,暖阳和绿意尽收眼底,现代感和自然韵味在这处山湖盛景中交织绵延,让身处繁华都市的我们,感受“只在此山中, 云深不知处”的意境。

“雕琢时光的山与湖”为我们定位了牧云溪谷其百万山湖系、全栖生活town的宏大蓝图。而生活,则是其中最生动形象的笔触,以其细腻多彩的特点,于一笔一画之间,勾勒出包罗万象的温馨画卷。

清晨,第一缕阳光透过窗户洒向卧室,为我们开启美妙生活的序章。云想衣裳花想容,如果,云朵是天空的语言,那么飘窗便是卧室的灵魂,让卧室不再孤寂,不再沉默,多样的造型和设计,延展了卧室单一的功能,满足主人公的生活品味和想象。

儿童房的设计延续了对莫兰迪色系的热衷,时尚而富有高级感。榻榻米和整体书柜将安全性和实用性融为一体,成为陪伴孩子成长的重要部分。

设计始于生活又高于生活,水性科天无毒全屋定制以消费者核心诉求为中心,通过私人定制的形式,充分利用空间,将消费者家居需求、生活习惯等融入其中,以全程无毒管控体系、无毒全屋定制服务体系和整体设计为基础,提供从设计、定制、施工到无毒家具、无毒定制家具的一站式无毒全屋定制服务。一站式的服务和一体化的设计大大简化了装修过程,节约时间和精力同时,确保了家居环境的健康和无毒,为消费者提供一个便捷舒适、绿色环保的居住空间。
项目名称丨牧云溪谷
项目地址丨深圳
室内面积丨110㎡
设计机构丨水性科天深圳龙岗店
门店地址丨深圳市龙岗区佳得宝家居博览中心一楼3号门