近年来
柳州市区的各大医院
都陆陆续续有了“新家”
市妇幼保健院搬到柳东
市中医医院也搬到莲花山附近
停车位紧张、院内环境老旧问题
都得到了解决
明年
市工人医院也有望“搬家”
近日,在柳南区和平路旁的市工人医院总院搬迁(一期)工程施工现场看到,一期工程的建筑主体已经完工(见大图)。

市工人医院总院搬迁(一期)工程作为我市重大项目,设计总建筑面积约21.4万平方米,其中地上建筑面积约14.55万平方米、地下建筑面积约6.85万平方米,设地下1层,地上16层。项目2017年10月开工建设,预计2020年4月完工,规划床位1500张。特殊项目装修室外绿化工程室外总面积约80381.09㎡,其中绿化面积约19131㎡,铺装面积约46202.29㎡,室外道路面积约15047.8㎡。




据悉,项目建成后将进一步改善周边居民的就医环境。
阅读延伸:
我市还有哪些在建或建设中的医院?
中西医结合医院
中西医结合医院新院的床位数均比现有规模扩大两倍以上,可以进一步满足市民就医、患者住院的需求。

预计投资7.7亿多元的柳州市中西医结合医院迁建项目工程,位于柳州市阳和工业新区的阳和大道西侧、规划阳和中路北侧。项目总用地面积约合120亩,总建筑面积91341平方米,主要建设内容包括一栋门诊急诊楼、一栋医技楼、一栋住院楼、一栋中药制剂楼、一栋行政教学科研楼等,以及高压氧舱、暖通系统、热水系统等附属配套工程。目前,该院住院病房编制床位数只有250张,新院建成后,床位规模达600张,接收住院病人的规模将扩大两倍多。

中西医结合医院图纸
建成后,不仅规模扩大,可进一步改善市民就医环境,同时,也让市区公立医院的布局更加合理,解决目前阳和工业新区没有大医院的难题。
红十字会医院

柳州市红十字会医院是一所集医疗、科研、教学、预防、社区卫生服务功能于一体的二级甲等眼科医院,是广西残联指定柳州市白内障复明手术指导中心、桂中地区低视力矫治中心,也是市医保、新农合定点医院。
医院设有内科、外科、妇科、儿科、眼科、中医科、肛肠科、口腔科、耳鼻喉科、功能科、检验科、放射科等临床和医技科室。其中,眼科是医院重点专科。另外,还下辖一个眼科研究所、一个老年病防治中心、一个社区服务中心。

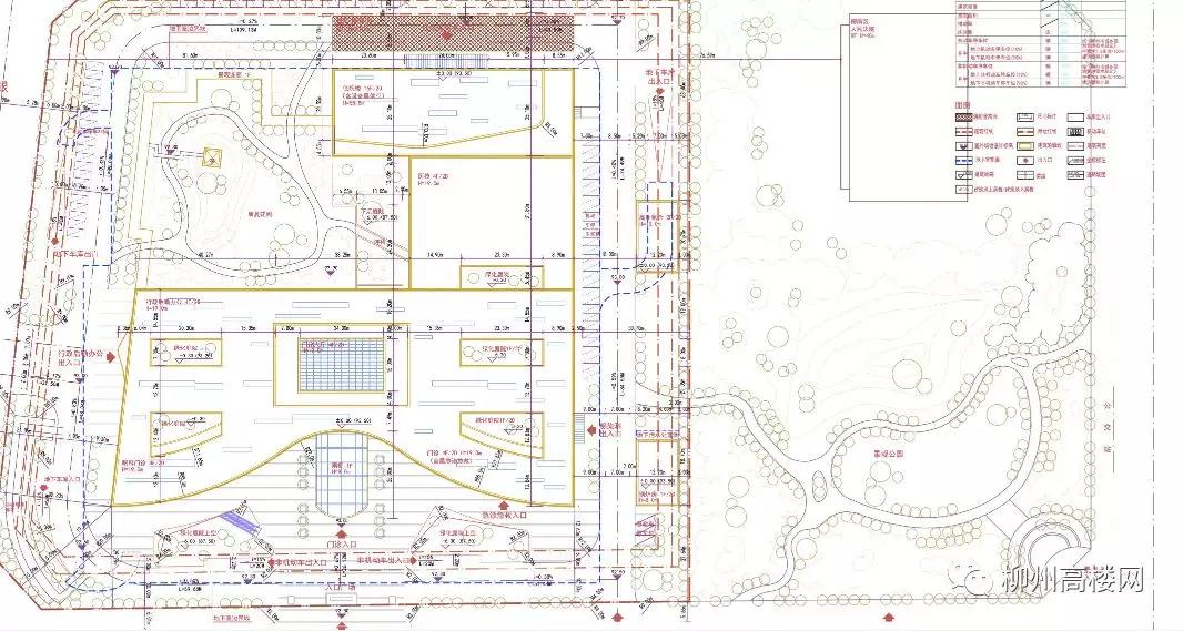
(红十字会医院平面布局)
柳州市红十字会医院迁建项目位于柳州市航三路以北、银海路以东地块,交通便利,场地平整、地形较方正。总建筑面积9900平方米,其中总计容面积:地上55113平方米,包括医疗用房面积54373平方米,锅炉房面积230平方米,高压氧舱面积510平方米;地下3935平方米,即医疗保障用房面〔厨房、餐厅、总务库房、太平间、垃圾站、污廊)。
柳钢医院

柳钢医院新门诊综合大楼效果图

柳钢医院新门诊综合大楼效果图
今年8月,柳州市发展和改革委员会对柳钢新门诊综合大楼项目初步设计进行了批复。柳钢新门诊综合大楼项目位于柳州市雀儿山路9号。项目总用地面积31523平方米,总建筑面积81890.8平方米。

柳钢医院新门诊综合大楼效果图
其中,地上建筑面积52982.4平方米,地下建筑面积28908.4平方米,规划设置床位301张。主要建设内容包括新建一栋门诊综合大楼,配套建设给排水、消防、供配电、道路、绿化等附属配套设施。新门诊综合大楼的建设,将给柳钢职工及柳北区居民提供更优质、更精湛、更便捷的医疗服务。项目预计下个月开工,两年后建成投入使用。