想回家建一栋好看又安全的农村小别墅,小宅一直和大家强调的是专业的重要性, 专业的施工图纸和专业的施工队都是缺一不可的。 以前农村人盖房子,基本是请村里的瓦工和木工以及帮衬的乡亲一起合力盖房,这些人有丰富的建房经验,对于建造传统的砖瓦房可以说说驾轻就熟,但是对于现在的建筑样式却了解有限,花瓶栏杆再装个罗马柱,就算是欧式别墅了。所以也有越来越多朋友开始吐槽所谓的“农村欧”。
但是如果建房有专业的建房图纸请专业的施工队是不是就会很贵呢?今天小宅整理了6套专业施工队的建房案例,一起来看看,专业施工队建房到底需要多少钱?
01 晒家

地址:湖南农村
房主:刘先生
造价:40万
中式小院造价高,那就建一座欧式小院吧!住宅公园ZJ-0662号户型外装采用素雅低调的米色真石漆,搭配屋面灰色瓦片,建筑整体呈现出一种低调大气之感。建筑分为主副房设计,室内动静分区,洁污分离,整体提升了生活品质感和舒适感。





为了建成和效果图一样漂亮的小别墅,也为了让老家的父母少操点心,房主刘先生决定把房子全包给专业施工队。

房子从2018年5月动工,2019年2月完工。主体1200元每平全包给施工队,房屋主体+外墙装饰+外门窗共花费40万。


02 晒 家

地址:河南农村
房主:李先生
造价:1200元/平
住宅公园ZJ-0736户型,三层的欧式洋楼配色清新淡雅,全国建成案例也是数不胜数,经典的挑空客厅搭配落地窗,已经成了农村别墅的标配,顶层还有一个大露台,夏季乘凉,冬季晒太阳,好不快活!




常年关注住宅公园,李先生深知专业的重要性,于是自家建房李先生也是请了专业的施工队来施工。虽然价格相比于村里的工头贵了不少,但房子建好就知道,别说完工效果,光是建房过程的细节就高出不只一个档次!

参考别墅效果图定制的各种装饰构件,加上窗套线、檐口线、山花、花瓶柱围栏的房子,才是欧式别墅。

03 晒 家

地址:河南农村
房主:靳先生
造价:1100元/平
回农村建养老房,若是预算不多,想要盖一栋外观时尚,布局实用的户型,那住宅公园ZJ-0369号户型可别错过。这套二层欧式设计,外墙真石漆装饰大气,整体造型精美,自建一栋定是村里最亮眼的存在。


这套案例来自河南尚品宅建的施工案例,房主靳先生也是通过住宅公园联系到了该施工队,通过见面沟通和参观实建案例,双方的合作很快就确定了下来。

2018年秋季开工,主体只耗费4个月便完工,专业施工队的力量大大节省了建房时间!建房价格1100元每平包工包料(含基础、主体、外装、精装修水电和化粪池),总造价46万。

04 晒 家

地址:四川农村
房主:潘先生
造价:25万
要说最经典的网红户型,那这套 ZJ-0816 号户型至少是前3!经典的田园风小楼,外装配色温馨大方,让人看了一眼就动心,室内布局合理规划,能满足大部分家庭的居住需求,且施工难度低,造价经济,性价比极高!



业主是来自四川的潘先生,在建房之初潘先生就建房的问题和家人达成了一致:房子是用来住的,不是用来攀比的,住得安全舒适就好。于是才选择了参考住宅公园这套设计,最后完工的效果也得到了家人的一致肯定。

房子从2018年5月23日动工,2019年1月20日完工。人工266元每平米;钢筋3900元一吨,买了11吨,花了42900元;水泥490一吨,买了70吨,花了34300元;红砖0.55元一块,砂石150一方。房屋主体完工一起花费25万元。


05 晒 家

地址:四川农村
房主:周先生
造价:1480元/平
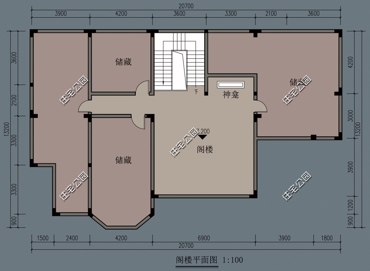
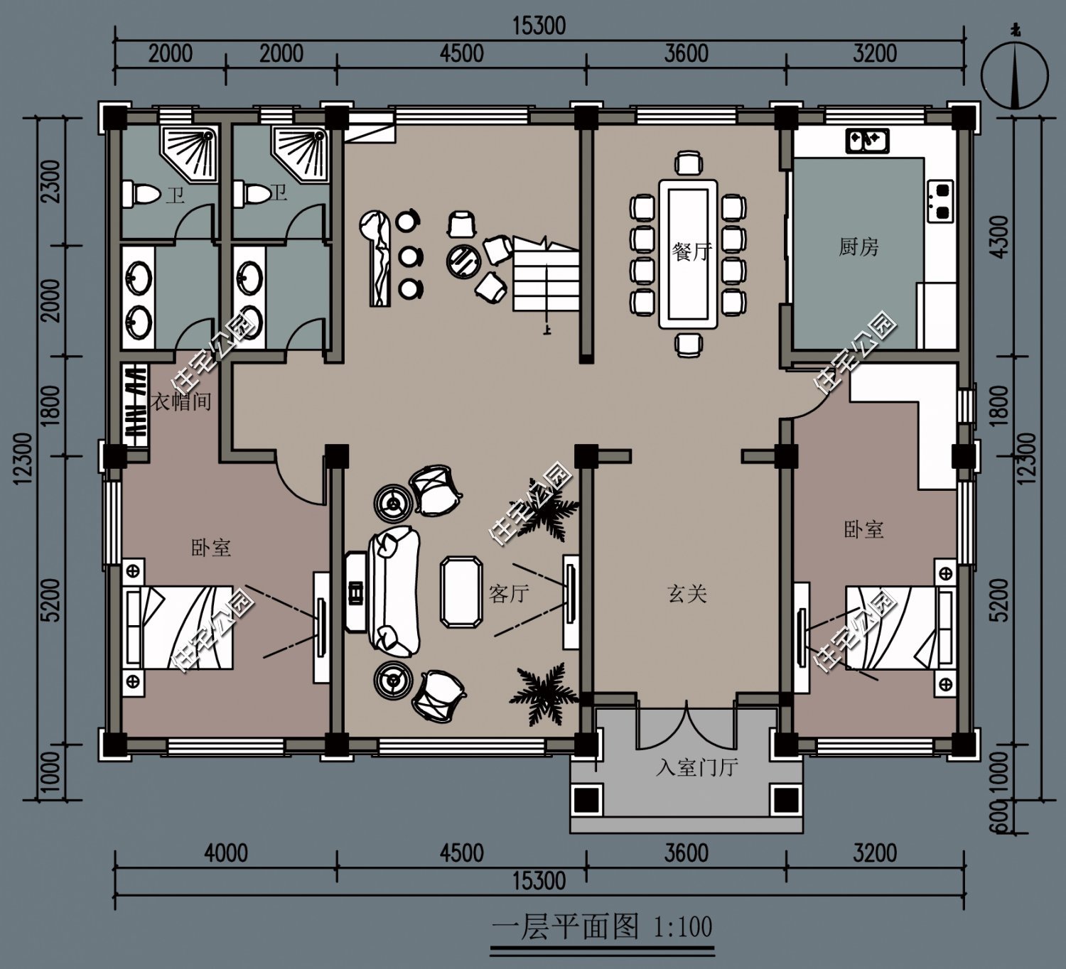
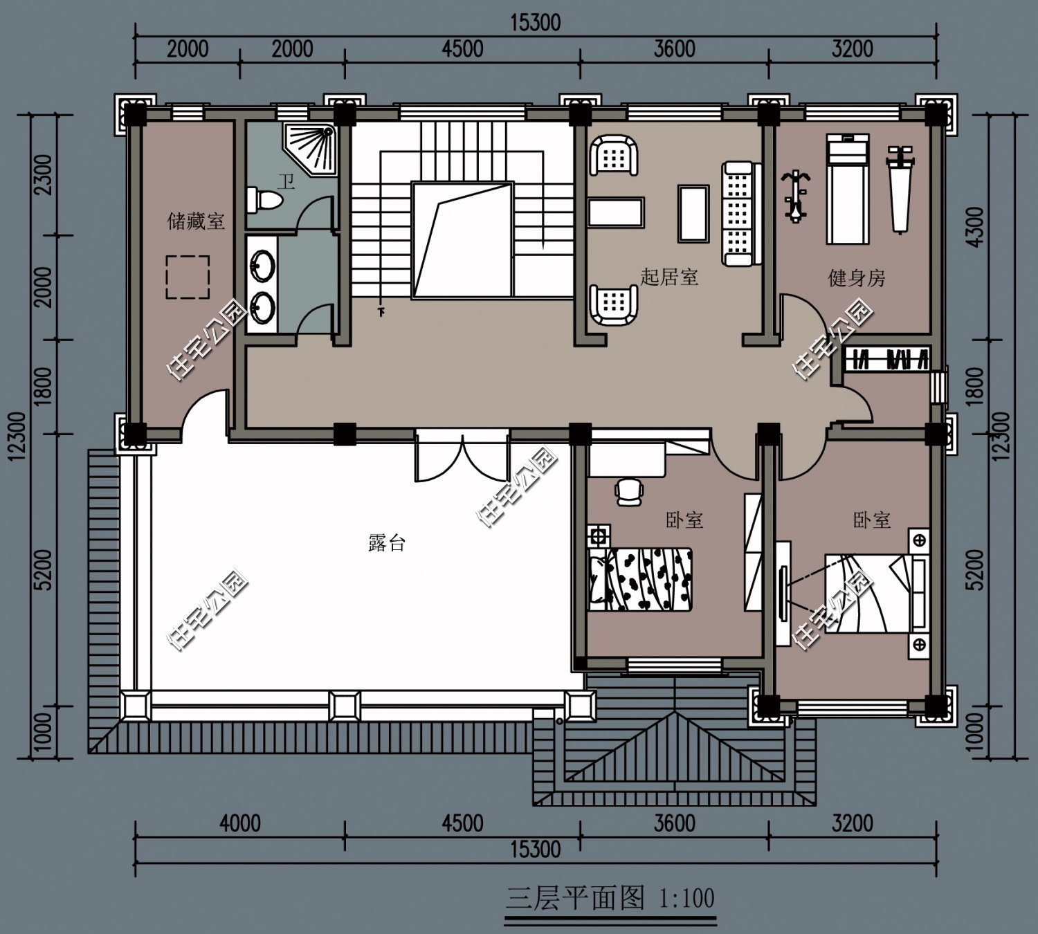
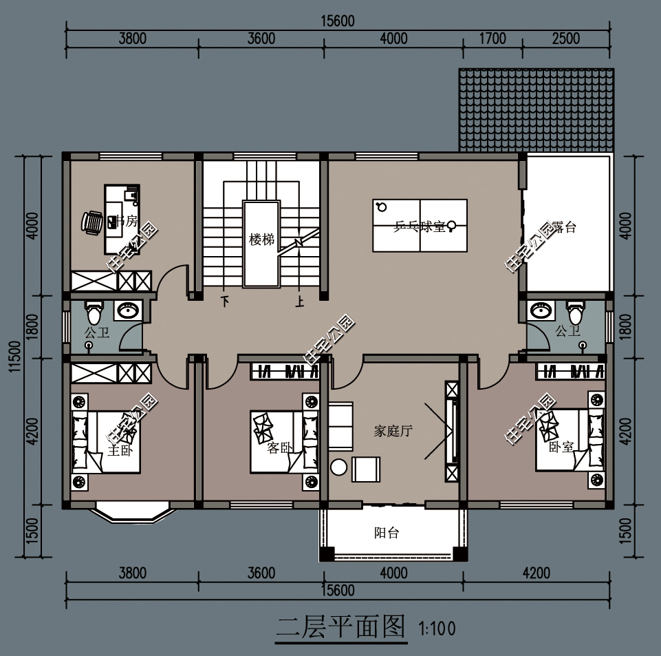
住宅公园ZJ-0948户型,设计之初考虑到农村家庭大多人口较多,逢年过节亲友来访免不了要留住,所以这套户型多设卧室,3层共设8间,大家也可根据自家的实际需求修改图纸。




看到这套案例有的朋友可能会问,前面几套都是专业施工队案例,怎么这套这么贵,要1480元一平?这是因为这套案例是独立基础+框架结构,自然造价高出不少。

房子于2018年2月开工,7月主体完工,整栋房子包工包料交由施工队来负责,主体1480元每平米(不含门窗),从基础到主体共花费63万。


06 晒 家
地址:江西农村
房主:黄先生
造价:30万
住宅公园ZJ-0633户型,大面宽住宅更显气派,特意挑高的门厅,精美的罗马柱,整体形象低调稳重,尽显欧式大别墅风范。室内宽敞,居住品质高,全南向卧室设计带给居住者更好的采光通风。



这套案例是江西黄先生给父母盖的养老房,为了建好这栋房,黄先生请了三支队伍施工,每支队伍各司其职,第一家村里施工队负责主体,第二家专业施工队负责外墙,第三家施工队负责装修水电。
在黄先生老家当地建房外装大多用水泥抹面或者直接贴瓷砖,而黄先生请来的专业施工队则是采用文化石+真石漆的装饰方案,门斗立柱还用了线条来装饰。不仅是施工技术,就能审美也高出当地农村施工队一大截。

房屋主体花费30万,外墙真石漆+文化石花费3万,家具家电花费17万,目前总花费50万。


专业的设计图纸是建房的基础,但也要有专业的施工队,才能让图纸得以实现,这就叫让 专业的人做专业的事 !
关注住宅公园,更多建房图纸,还有乡邻晒家分享!