简美源于八十年代的美国,
是美式古典风格的延续,
也是美国实用主义与英国唯美设计结合的产物。
齐白石曾说过,
艺术创意宜简不宜繁,宜藏不宜显,
这不仅是对简洁的最佳阐述,
也是对简美如此受中国人欢迎的一种解释。
今天给大家分享的案例由力天装饰提供,
整个空间的氛围,透露着一股柔情,
让人卸去武装,沉醉其中!

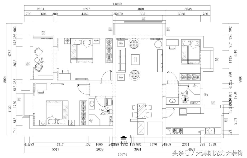
整个户型方正,左右对称,面积有126㎡,
是三室两厅一厨两卫的标准户型。
空间布局合理, 在客厅有阳台,
采光充足,室内空气流通,
主次卫生间分布合理,充分利用了狭小空间。

业主家有两个孩子,一个女孩一个男孩。
客厅的沙发选择了L形的长沙发,
一家人坐在一起丝毫不觉拥挤。
电视背景墙以石膏条圈线,中间搭配印花壁纸,
线条感十足且层次分明。
落地窗,将屋外的阳光与风景,
一齐引进室内,温暖与美景并具,
让家洋溢着阳光的青春气息。
客厅设置了很多淡蓝色的元素,
搭配原木纹理的家具,质感十足,
素净淡雅的清新氛围浸染着空间的每一个角落。

餐厅,延续了客厅设计,
组合装饰画简洁大方,
没有设置复杂的吊顶,
整个空间以白色和米色为主。
餐桌餐椅和客厅家具配套,
木料纹理分明,
结构细致粗略、均匀,
让人忍不住想要抚摸。

餐厅的另一侧是玄关,
顶天立地的储物柜,收纳功能强大。
镂空隔断+鞋柜的设计,
实用兼具美观,且趣味十足。

空间中几乎所有的门和柜体都选用了乳白色,
给人一种低调而精致的感觉。
纹理分明的大理石台面,
淡蓝色AB版的墙砖,搭配腰线,
让小小的卫生空间,
瞬间变得鲜活,
端庄中夹杂着一丝活泼,
温柔中夹杂着一丝调皮。

主卧是业主夫妇的房间,
不仅设置了强大的收纳空间,还设置了观景台。
落地窗搭配藤制休闲椅,惬意而有情调。
床头花式石膏线圈边中间铺贴壁纸,
还设置了一对风景装饰画,
让整个空间都沉浸在浪漫温馨氛围中。

这间卧室是姐姐的,白色的家具床品让空间简洁明亮,
台灯、装饰画、吊灯、抱枕,又为空间增加了一丝童趣。

弟弟的年龄比较小,设计师将其房间设置得比较活泼,
以蓝色为主,增加了部分跳色。
两个孩子,会喜欢对比,姐姐房间设置了飘窗,
所以设计师在弟弟房间也设置了飘窗,
充分展示了公平公正的原则。
简约美式,用素色演绎出惊艳,
混凝土之间的"世外桃源"!