2020下半年,已悄然而至!
苏州楼市编辑团队,在整理汇总苏州上半年的市场成交数据时,偶然发现吴江有一个项目,竟然在同类型产品中悄无声息的拿下成交面积、成交总额双“第一”的好成绩!

数据来源:铎铎房
楼市竞争的激烈,却又能凭一次又一次的热销数据突破重围,“圈粉”能力,让人惊叹!
这个项目就是位于园区南(运东)板块的聚珑阁!

你是不是和小编一样满脸问号?没怎么听到宣传和推广,竟然如此热销!
在好奇心的驱使下,小编特地实地探访,发现了他们的“杀手锏”:
● 产品类型是市场上几近灭绝的loft,挑高4.5米;
● 总价65万起,买一层得两层,性价比突出;
● 重金打造社区生活,是全市罕见具备社区感的loft产品;
● 小区环境优越,居民纯粹,居住体验舒适度高;
● 与择址挑剔的希尔顿酒店为邻,未来回报率高;
● 园区南板块,配套升级,未来潜力无限。
集这些优点于一身的,在同类型产品中真的少见!席位有限,仅剩百余套左右,一旦错过必留遗憾!
了解更多项目信息
添加下方小姐姐微信
更多惊喜在等着你哟

NO.1|壹
性价比突出
产品硬核,超高配置
全市罕见具备社区感的loft产品
在现场置业顾问详细、耐心的介绍下,小编对项目有了大概的了解。
聚珑阁项目位于近年发展大势的运东南板块,是开发商继上海万城银座,天津万豪国际后布局吴江的首个高端综合型社区。
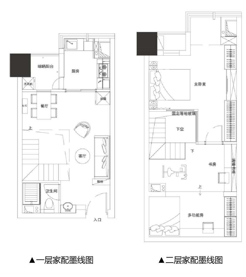
目前在售产品是面积约48㎡-73㎡的loft,仅剩百余套。

要知道,2018年苏州市规划局出台新规!其中条款3.4.9.1中明确提出容积率1.0,层高≤3.9。也就是说,4.5米双层挑高的loft户型已无法规划,复式双钥匙户型等概念也将不复存在。所以有多稀缺,大家可想而知。


更重要的是,项目不管是社区布局、户型打造还是外部环境,都非常有料!
1、多户型选择,生活更多可能性
就拿我们看到的约73㎡户型来说,可以有很多可能。3+2的灵动空间,轻松满足三口之家、二孩时代等多人口式家庭生活。

复式双层结构,生活间与休息的地方就可以分开。上层休息,下层娱乐,动静分离,互不干扰,既循待客之道,又享私密生活。
针对户型本身的空间条件,采用局部挑空,客厅会显得非常舒阔。
U型厨房,配备双卫生间,不仅方便,生活也更私密。
此外,很多空间都是可以根据自己的需求,随意变换,例如太太的衣帽间、孩子的游乐房、先生的健身房,爷爷的书房等都可以实现。

如果资金有限,还有更低总价的户型,约48㎡,非常适合想要留在苏州的追梦人。对于受限购影响无法购买住宅的人群来说,也是最好的过渡产品!

- 4.5米挑高,单层投入,双层回报;
- 双层空间,动静分离,楼上楼下互不干扰;
- 空间更灵动,可以根据自己的需求设定;
- 独立生活阳台,突破loft的局限。

2、全市罕见具备社区感的loft产品
聚珑阁采取全玻璃幕墙立面,呈现大气风范与非凡建筑空间品质,彰显出城市豪宅的高端质感。

公共空间可以媲美五星酒店,舒适大气,私享尊崇体验,打造匠心优居。

楼下的配置真是满满的社区感,太难得了。100米的樱花大道,十字景观轴,花坛广场、景观喷泉、凉亭等一样也不落。这可不是一般开发商愿意花的成本。


外部环境就更不用说了,拥有得天独厚的自然生态环境。距离运东地标——运河文化公园,也就50米,正儿八经的“大公园就在家门口”。

3、更重磅的是现房销售,看中哪套选哪套
以上一点没有夸大的成分,不信你实地去看一看,这个项目另一大亮点就是现房销售,所见即所得,看上哪一套,交易之后就能拿到钥匙,省去不少麻烦事。

NO.2|贰
无可比拟的低总价
均价≈周边新房地价
全款≈周边新房总价3折
像这样的产品,大家一定会认为很贵吧!其实还真没有,大户型均价1.2万/㎡;小户型均价1.3万/㎡,总价65万起就可以入住,性价比特别高!
①周边地价差不多是项目均价
今年,旭辉以总价19.8亿元,楼面价12097.2元/㎡,拍下距离聚珑阁不远的地块,光是楼面价就已经等同于聚珑阁的出售均价。

②周边新房总价的3折=聚珑阁全款
大家都知道运东南住宅的均价大约2万/㎡,如果一个100㎡的房子,总价就在200万左右,然而这些房源总价的3折就可以全款买聚珑阁,还未必能达到聚珑阁的配置,你说,这样的价格香不香!

③总价已经很低,买一层还能得两层
聚珑阁4.5米挑高项目的特点就是所需资金少,购房压力相对更小,而且空间利用率非常的高,买一层得两层,实现生活的各种需求,非常实用。
其实,面对苏州限售限购限贷的三重政策下,有钱买不了房的大有人在,越来越多的人把目光投向了像聚珑阁这类不受限的项目,并且聚珑阁所在的运东即将腾飞,板块价值凸显,这里也不失为一种投资选择!
NO.3|叁
板块未来价值无限
园区南(运东)迎来大发展
投资看重什么?升值潜力!地段价值!聚珑阁所在的板块运东可以说是肉眼可见的速度正在兑现其规划,利好不断,未来潜力无限!
①“新内环”加速融入苏州主城生活圈
运东的高光时刻还要归功于江陵路快速化改造工程。
该路从东西向串联起苏州西环南延、东环南延、吴江同津大道及苏同黎等多条快速路,使其串联成“两环”快速路网。使“吴江内环”与“古城内环”连城一体,成为苏州“新内环”。
为运东片区与苏州古城、工业园区核心区域融合发展成全新“生活圈”创造了条件,相关城市公共配套设施互通共享,运东片区人口吸纳能力和宜居价值得以提升。

另外,在长三角背景下,建成后的通苏嘉甬和沪苏湖两条高铁线在吴江交汇,彻底打破吴江没有铁路的历史。随之而来的高铁经济对于吴江谋划新时期发展格局有重要价值。

②现代配套升级,吸引高端人才
很多大都市都建有“宋庆龄幼儿园”校区,上海的小区有很多明星宝宝在那里就读过,比如陆毅的女儿贝儿、马伊俐的女儿爱马,马景涛的儿子等。

运东板块也规划了这所贵族学校——“宋庆龄幼儿园”,这是苏州除园区外的第二所。入住聚珑阁还可以给孩子一个就近的家,与孩子有更多的时间相处,陪伴更多,成长更健康。

除此之外,附近还规划了一所私立学校——北大新世纪外国语学校,涵盖幼儿园到高中一站式教学,将建成幼儿园6轨、小学8轨、初中8轨、高中8轨,总投资6.5亿!

③为邻的希尔顿酒店——只选全球最有价值的地方!
从洛克菲勒中心、凯旋门、夏威夷群岛到北京王府井、上海外滩、广州天河,百年希尔顿,屡创传奇。所到之处,便是城市核心所在。
每座酒店都会成为地标,与它苛刻的择址要求是分不开的,这也是让希尔顿成为高端酒店传奇的原因之一!苏州仅有两家:第一家择址园区,成为城市瞩目所在。第二家择址运东南,与聚珑阁为邻,足以说明一切。

更有据数据统计,凡是紧邻高端酒店的公寓,租金回报率都会比没有高端酒店的提高20%左右。

随着博洛尼天空之城、北大新世纪苏州外国语学校、运河实验学校、宋庆龄幼儿园、希尔顿酒店等多个项目落地,购房者对运东的印象也发生着积极的改变。
写在最后:
当然,一个板块的崛起速度,与品牌开发商的聚集度也有很大的关系,拔高区域居住档次,提高区域价值!
板块凭借地段的优越,不断吸引着品牌开发商的入驻,如:万科、碧桂园、中交、中建、旭辉、港中旅、绿地、金地、新希望、联发、佳兆业,不仅带来了高端品质的生活,未来2-3年业主们全新入住后,还将带来3-4万人气。

不缺配套、不缺人气,总价低,对于这个高品质项目-聚珑阁,不管是投资还是自住都是一个不错的选择,不过数量有限,仅剩百余套,这么好的机会可别错过了~
了解更多项目信息
添加下方小姐姐微信
更多惊喜在等着你哟