
项目名称:江苏常州陈家新中式别墅
图纸编号:645
建筑面积:334㎡
建筑尺寸:11.9m×9.2m
占地面积:109㎡
户型概况:4室2厅5卫1厨1影音1茶室1健身1汗蒸1衣帽1书房
建筑结构:框架结构
土建参考造价:33~43万元(不包含室内装修费用)
别墅概况

现场照片
项目位于江苏,建筑占地110平米左右。

总平面示意图
图纸设计

地下一层平面图
地下空间相对私密,设计有汗蒸房、健身房、影音室和茶室,相对齐全的功能配合卧室可作业主自用空间。考虑到卧室需要采光,在东侧和南侧设计有高窗,配合围墙的降低,使得地下空间也有极好居住环境。

一层平面图
一层入户空间利用出挑平台克服高差问题,平台作为室外活动区域,与室内环境相辅相成。门厅两侧为老人房和客餐厅。老人房占据东南角采光最好空间,并配有独立卫生间,方便老人日常生活使用。客餐厅一体化设计让公共空间更加大气,多向采光也使得室内干燥通透,更利于身体健康。

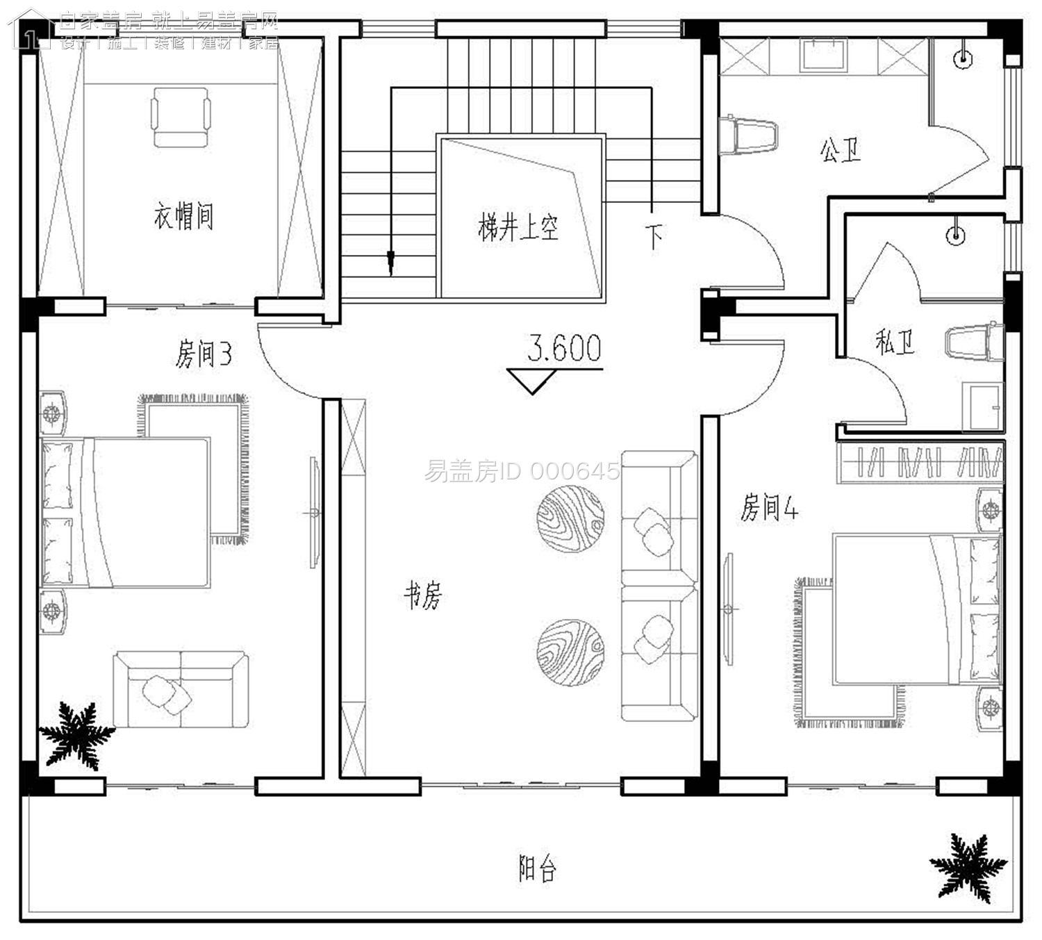
二层平面图
二层为起居空间,共有两间卧室。西侧卧室配有大面积衣帽间,并与书房紧邻,整层阳台采用连通设计,增加各个房间之间的联系,使得平面更为整体。
造型设计

建筑整体为新中式风格,颜色选择上极为淡雅,底部采用面砖配合二层部分的白色真石漆形成舒适视觉感。

屋顶部分在两侧做了屋檐,突出的造型使得较为方正的建筑去掉呆板印象。

玻璃围栏的平台让空间更加通透,并与地下空间和庭院增加交流,使得建筑整体性更好。

二层阳台采用连通设计,卧室对应围栏选用木格栅与书房对应部分通过白墙和不同材质进行区分。


院门采用传统造型,大方的门楼设计十分醒目,有质感的材质使用帮助建筑提升档次。


东立面图

西立面图

南立面图

北立面图