今天来说说保利堂悦。
说之前呢,讲个事儿。今天一个朋友发了一个截图给我,是他去看了两个项目,自己做的同类项的对比表格,通过这个来评判项目的优劣势。我很欣慰,现在的购房者越来越理性了,也越来越专业了。我可以很肯定地说那些嘴上给你打一百个包票说你买房包你赚的那些人,你可以嗤之以笑了,听他们的不如自己做点功课。我告诉你,置业顾问的那些抗性说辞也是这样和竞品一对一做出来的,没有什么神奇的功夫,我们只是方*论法**的搬运工。
保利堂悦分三个部分来说,第一是地块及周边,第二是情怀与产品,第三是128和141两个边户剖析。
1、地块及周边。
2019年7月2日,保利地产底价46740万元摘得[2019]长沙市045号地块,地块位于秀峰街道秀峰山东北侧,用地性质为商住,总用地面积35134.14㎡,规划建筑面积100802.9㎡,容积率≤3.0,折合楼面价4636.77元/㎡。项目设计规划要求须符合安居型住宅管理有关要求,住宅户型面积不超过144平方米,其中120平方米以下的户型不少于60%,优先首套刚需群体购买。住宅(毛坯)最高销售均价为10100元/平方米。
项目位于福晟钱隆世家的南边,秀峰山公园的东侧,左侧是芙蓉北路,右侧是开福大道,属于两条主干道的中间位置。

北邻的兴联路最近也比较热闹,据规划是在兴联路修建一条过江通道,可能是高架桥的形式,于是紧邻这条过江通道的创远湘江壹号的业主不干了,他们担心兴联路大桥一修,对于他们的物业会有影响,房产会贬值,就去政府那里维权,要求改为过江隧道以对他们的房产影响最小。
说到这个维权,还要提到地铁1号线北延线的维权。地铁1号线现在只修到汽车北站这里,北延线早就说要修建了,采用的是地上高架的形式,旁边的恒大业主不干了,认为高架一修,对于他们的房产价格不利,也去维权,结果使得北延线停滞了几年。
这个地块距离1094地块很近,说这个意思是商业是这个片区的弱项,现在片区的商业中心主要就是福晟mall。住东去是香江集团搞的1000万方的高岭商贸城,以批发为主。
教育这块北面有周南中学和周南秀峰学校,南边中欣楚天御府自己建了长郡开福中学。
以前我一个朋友在这里负责福晟钱隆世家这个楼盘,价格挺低的,只有4000多吧,现在这个片区价格也涨上来了,这个地块毛坯限价10100元/平米,不远处的五矿万境潇湘毛坯限价9200元/平米,中欣楚天御府现在卖12500元/平米。而这个项目据说是卖毛坯的,不做精装,在总价上还是有优势的。
今年地铁1号线北延线将会动工,1094地块也要拿出来出让了,这对于片区的利好是明显的。1094地块不知道会被谁拿下,如果整体拍走,应该是长沙的总价地王了。目前有实力拿下这块巨无霸地块的开发商估计不多,想想如果华润把自己万象城搞过来,或者龙湖再在这里建个开福天街,或者就是保利来个开福MALL,都挺不错的。
2、情怀与产品
保利当年合并了中航旗下的地产项目,在长沙就是南城天际岭附近的中航城。这个项目中航从郡原地产手里买过来没有多久,最开初这个项目叫郡原美村。郡原是浙江的开发商,是从南都地产出来的一部分组建的这个公司。南都地产被万科地产收购掉了。
说这个呢,是因为浙江的那些开发商都是很讲情怀的。郡原美村入口的那些商业、别墅我们以前曾经去观摩学习过好多次,认为这是极有情怀的作品。
但是这些情怀都随风而去了。
现在有情怀的项目像北戴河阿那亚、成都麓湖、郑州理想国等,都已经是珍稀物种了,没有办法去规模复制的。
就像原来原株洲有个项目叫湘水湾,在小区里面做的运动健身馆我就觉得真的是大手笔,但是后来听说由于去化不是很好,开发商想转让这个项目,真的是让人叹息情怀与变现是需要思量的。
说这个呢,是对于像保利这些头部开发商迭代的能力表达敬佩。看了堂悦的产品后,我觉得保利这种开发商真的是有可能不能那些小开发商活路的,就看保利今年在长沙新开的项目,今年保利的销售业绩在长沙可以确保在前3的位置了。




昨天我还在说恒伟星雅韵的产品,有些空间的尺寸考量的不够,比如140平米次卧室的开间做不到3米宽,而你对比一下保利堂悦130平米的次卧室、儿童房,面宽都做到了3米,客厅面宽做到3.9米,这些尺寸我相信是依托于强大的客研系统做出来的结论,而不是每做一个方案都要去跟设计院磨好多轮。
我们可以把这些尺寸罗列一下,这些都是经验积淀而成的,可以拿来对比其他的楼盘尺寸是否合理。

这些在市场中检验出来的经验形成了标准化产品,可以迅速拿过来复制,加快了推盘的节奏,这意味着可以占领更多的市场份额。
不管是碧桂园、龙湖,还是保利、中海,这种基于大数据得出来标准化产品,才是打败对手的核心机密。
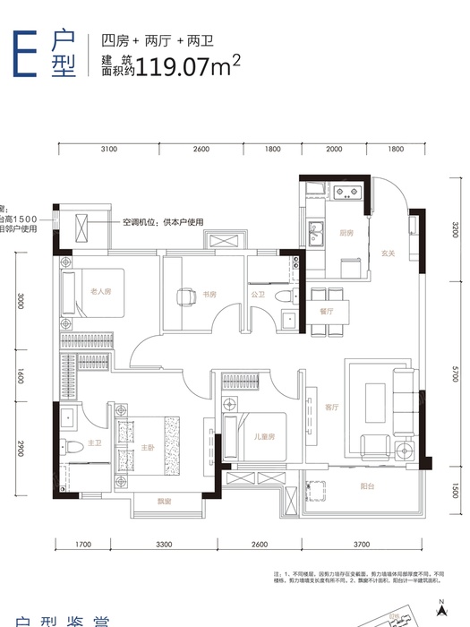
3、两个南北不通透户型的思考
保利堂悦产品设计是两梯三户的产品,以现在正在认筹的1#栋为例,产品面积分别为128+119+133及133+119+141,这是两个单元的组合。之所以两个单元不是镜像关系,有可能跟地块的形状有关系,其实128和141的户型结构是一样的,只是在局部尺寸有差异。
有朋友就说很不喜欢这个户型,细长条,跟那种板楼差得比较远。我能理解这种想法,如果把两个端户都做成133那个户型,接受度确实比现在这种户型要好。市场上现在这样的140平米的户型是很多的。堂悦设计成这样的标准层,可能跟地块东西长不太够有关系,只好牺牲边户南向面宽,把进深做大。
先说这两个户型的缺点。
第一,最显而易见的是两个户型南北不通透,只做到了两开间朝南,客厅和主卧室朝南,其他2+1房都是朝北的。这个进深比较长,面宽较短,但由于是边户,采光没有太大问题;
第二,客厅东向或西向全部是玻璃窗,沙发背后没有靠的,在人的安全心理上是不利的,人要靠着墙坐才有安全感;如果是西向的,尽管可以观山景,西晒可不是一个小问题。我有一个朋友曾带我去看了一个6层的楼梯房,顶楼是复式,面积在172平米,客厅就是整个玻璃窗都是西向的,下午大太阳照进来,实在令人难受,拉着窗帘都晃眼睛。
第三,我在看抖音视频时曾刷到一个十种房子不能买,有两条内容,一条是说西北缺角的房子不能买,因为在八卦方位里西北是乾位,属家里男主人,缺角对男主人不利;第二条是说厨房居中不能买,因为会犯中心火。当然这都是以前的迷信说法,第一条的破解是说要买一个泰山石,压一下就好了;第二条呢,让厨房的门不要对着入户门,错开一下位置,不占中心就好了。这个就当戏言吧。
其实我个人觉得这个户型的设计是有比较好的设计逻辑在里面,在这里谈一下理解。
第一,这个户型做到了集中设置公共活动空间,餐客厅一体化设计,空间显得很大;厨房朝向餐厅、客厅,使得做家务的人与在客厅的人可以有交流,你可以设想一个场景,妻子在厨房里洗菜,孩子在餐桌上写作业,丈夫在客厅里给妻子削水果,这样其乐融融的不是很好么? 另一个西晒的问题,在长沙就是东边户在夏天也一样要开空调,现在随着材料的迭代,新材料可以缓解这个问题。这种户型的设计做了超大的飘窗,是将风景引入室内的用意,同时也赠送了更多的面积。
第二,主人房与孩子房分开设置,互不干扰,尊重不同的作息习惯,这样设计挺好的。北面2个卧室加1个阳台的空间可以随生活人口的增加去变化。如果家里有两个小孩,北边可以布置成2个卧室加1个书房;如果家里有1个小孩,加上老人住的话,可以将1个卧室变成老人房,将卧房和书房打通,变成套房;
第三,这样的户型基本做到了独梯,因为两个电梯是通过连廊连接的,128/141户型是独自使用一个电梯厅,而119和133的户型是两户共用一个电梯厅;还有就是主卧室的卫生间是朝南的,有窗户可以通风,不利于滋生细菌,有益身体健康;而且这个卫生间比起119的户型是床头后面是卫生间设置来说,风水更好一些。