别人的爱情,
都是青(cong)梅(xiao)竹(wan dao)马(da)
为什么你却总是撩不到妹?
因为不懂什么是爱?
单身只因丈母娘要房要车?
那你就OUT了!
现在的农村小伙,
都是靠一快(块)递(地)抱得美人归的!
看农村人怎么用块地撩妹!
右上角点关注,每天一套最新农村别墅图纸,还有建房省钱秘籍。点击主页左下方【图纸中心】还可以*载下**建施图哦!

1:90后农村穷小伙10年奋斗,1块地+1快递撩倒女神
占地尺寸:13.8 ×13 米
建筑面积:342.7 m2
河北90后农村小伙小李,曾经是一个学渣,家境普通。初中毕业后就出去跟人学做生意,从小业务员做起。
老婆是同村青梅竹马长大,初中毕业后就在一起了,现一结婚7年,11年时间,两人一起创业,现在成了大老板。

今年终于给妻子建起农村别墅,35万有大庭院,有游泳池!再加上15万内装10万家电,总花费60万,用自己的努力打造自己的小确幸!

平面布局:
一层堂屋,一层预留老人房,还有单独的洗衣房和棋牌娱乐室。

二层户型图

彼此的初恋,在一起第一个十周年,不仅仅建别墅,情人节再送老婆一台车,香车配别墅,完美的爱情,完美的家!

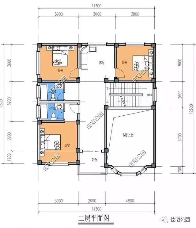
2:神户型,各省农村抢着建
占地尺寸:13.3m×14.6m
建筑面积:302㎡

不同宅基地大小,有十数个户型布局!这是其中之一。


湖北30万建主体,40万做装修实建案例

欧式外观配中式内装,只因为太喜欢这个户型!

陕西24万自建案例

湖南去年底完工,简单装修20万,因为工期短,浪费了不少人工。带后面单独厨房以及全套家装45万。

实建案例4:

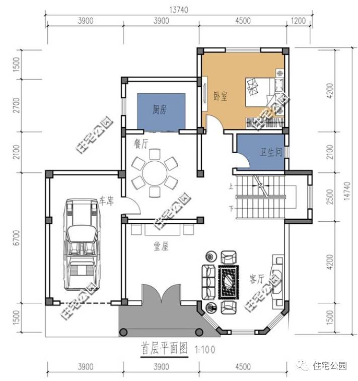
3:时尚跃层二层农村别墅,一套比一套美
占地尺寸:11.3m×11.9m



湖南衡阳30万简装实建

湖北30万实建案例


甘肃实建案例

四川25万实建案例,房主在家建,全钢化玻璃只花25万!内装没做。

▼山东临沂

4:大气三层农村别墅

湖南叔侄共建双拼案例:
主体加外装的人工费、材料费、机械费、水电费等等一共才花了35万!

贵州自建案例:

5:经典欧式二层小别墅,多套平面布局
占地面积:15m×14m / 15.6x12.7m

平面布局

湖南怀化实建

户型方案2:

四川泸州实建

6:带阳光房中式二层小院
占地面积:15.5m×18.5m
建筑面积:287㎡



7:东南亚风情农村别墅
占地尺寸:16mX15.2m
占地面积:185平方米

四川成都45万自建


8:典雅泰式小二层

四川老哥离村20年,回乡32万盖农村别墅,空着没人住!究竟为啥?

9:时尚三层

河南实建案例:


10:小清新现代别墅
方圆2里无人烟,重庆小伙却50万山里建现代别墅,为面子还是啥?

山里建房,12万修路,38万建房,是你会建吗?然而他建了,而且看了逗人都说做得好,背后有什么样的故事?

11:两层半高端现代三层

海南实建的案例,在效果图的基础上,装饰点缀部分不用真石漆,而是改用文化石,搭配黑色石材,建成比效果图大气很多。

12:宜居平层


湖南60万建一层农村别墅,完胜同村150万3层豪宅?门槛险被踏破!

13:托斯卡纳风情别墅
浙江110万,自建气度非凡的美院大宅

浙江姜先生是一名80后上班族,工作数年小有所成,本想在城里买房安家,可夫妻二人都是普通农村家庭,在市区买一套100平方的房子要100多万,加简单的装修也得130万。对于他们二人来说,着实不容易。

效果图实景图,傻傻分不清楚!

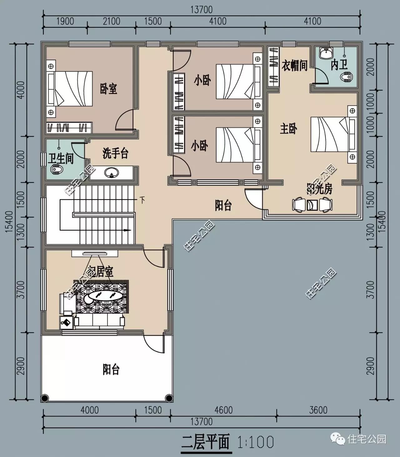
14:最美三层
占地面积:14.7x13.7米
建筑面积:382㎡


实建案例1:

实建案例2:

实建案例3:

你最喜欢哪一套?
右上角点关注,每天一套农村别墅图纸,还有乡邻晒家。我们一起,让农村更美!点击下方“了解更多”有全套建施图哦!