装修方式:528套餐+个性化
装修风格:混搭
小区户型:140平三室两厅
装修造价:14万

玄关

客厅全景

沙发背景墙

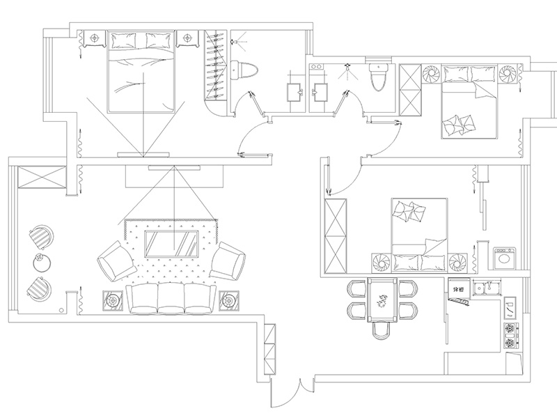
平面布局

餐厅
装修方式:528套餐+个性化
装修风格:混搭
小区户型:130三室两厅
装修造价:10万

玄关

电视背景墙

餐厅

平面户型布局

客厅阳台布局
如果您喜欢这样风格装修,或者其他风格装修都可咨询:13673657122 可加微信
仅限河南
装修方式:528套餐+个性化
装修风格:混搭
小区户型:140平三室两厅
装修造价:14万

玄关

客厅全景

沙发背景墙

平面布局

餐厅
装修方式:528套餐+个性化
装修风格:混搭
小区户型:130三室两厅
装修造价:10万

玄关

电视背景墙

餐厅

平面户型布局

客厅阳台布局
如果您喜欢这样风格装修,或者其他风格装修都可咨询:13673657122 可加微信
仅限河南