【室内设计胶囊】

你是否有见到过一些薄的让你难以置信的墙体,不禁发问,隔墙能够做到这么薄,是怎么实现的?
其实人们对于“薄”的追求,从来没有停止过。一次次刷新着人们的认知,引发深化设计师更多思考,给施工技术提出更高的要求。
今天,咱们就来好好讲讲超薄隔墙,主要解决下列问题:
1、隔墙究竟能够做到多薄?
2、为什么一直追求更薄的隔墙?
3、隔墙厚度想做到小于100mm,就没有办法了吗?
01.
超薄隔墙,究竟能够做到多薄?

现在最常见、也是应用最广泛的2种隔墙:轻质砖隔墙和轻钢龙骨隔墙,所能实现的最薄厚度分别为轻质砖隔墙120mm、轻钢龙骨隔墙可实现75mm,但是这两种并不适用于所有的情况。
下面,咱们就以卫生间隔墙为例,讲解设置隔墙的要求:
1、卫生间区域设置隔墙,需要满足以下3点要求:
a、防水
b、防潮
c、足够的承重性
能够满足以上3点要求的超薄隔墙,可以适用于众多的空间中,这也是我们今天重点讨论的超薄隔墙。

△超薄隔墙常规做法
2、构造解析
a、在现场焊接钢架,再使用混凝土灌浆,墙体的骨架就做好了。
b、挂钢丝网,进行水泥砂浆粉刷,保证墙体的平整度和强度。
c、湿贴石材。
这种超薄隔墙的做法,可以将墙体厚度控制在100mm。构造稳定性好,应用场景众多,在五星级酒店的卫生间就得到了广泛运用。
02.
为什么一直追求更薄的隔墙?

许多人一直在思考如何将墙体做薄,却忽略了这个问题背后,更深层次的问题。
我们为什么要做的更薄?推动这个需求背后的核心原因是什么?我分析出以下3点原因:
1、墙体占用空间小
在房价居高不下的今天,空间内的每个平方都弥足珍贵。为了满足功能需求,又不可避免的需要设置隔墙划分空间,压缩墙体厚度是最好的方法。
2、空间布置更灵活
更薄的墙体,使设计师更自由的规划空间。减小隔墙厚度对于平面功能的的制约,最大程度保证空间的净尺寸。尤其在卫生间这种功能集中度高,面积小的空间,能够最大化发挥作用。

3、超薄隔墙,颜值更高
在追求更轻,更薄的今天,薄是对施工工艺的挑战,是颜值的革命。与笨重的厚墙体相比,超薄隔墙无疑具备更高的颜值,使用者不会有压迫感,营造更好的空间氛围和使用体验。
以上是个人的分析,有时候思考为什么这样做,会给我们带来一个更加清晰的认识,对超薄隔墙也能有更深刻的理解。
03.
隔墙厚度<100mm,就没有办法了吗?


<100mm的超薄隔墙,我整理有3种解决方案。
方案一:

构造解析:
a、墙体骨架选择钢架+木方的形式,钢架保证墙体的强度,木方保证墙体足够薄。
b、将5mm的基层板固定在木方上。
c、最后,粘贴石材饰面,增加固定件固定在石材与方管之间,最大化保证构造的稳定性。
方案二:

构造解析:
a、将10#的吊筋丝杆拉直,与顶面和地面连接固定。吊筋间距<400mm,保证墙体的强度。
b、灌入水泥砂浆,带水泥砂浆凝固,形成水泥墙。
c、粘贴石材饰面。
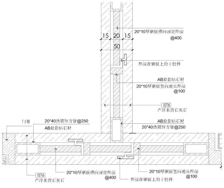
方案三:

△横剖图

△竖剖图
构造解析:
a、墙体骨架使用方管+钢板的构造(墙体外框架焊接方管固定,内部设置20*10mm厚的钢板,间距<100mm。上下焊接,增加骨架的稳定性。
b、在钢板上固定干挂件。
c、使用干挂+胶粘结合的方式,安装石材,实现牢固安装。

三种解决方案比较:
稳定性: 3> 1 > 2
防水性:3> 2 > 1
施工便捷性:3 > 1 > 2
构造成本:3 > 1 > 2
Ps:以上分享的三种50mm超薄隔墙的工艺做法,为追求更薄的隔墙,提供了解决方案。
但是,墙体厚度变薄,势必会导致墙体的整体稳定性变差。考虑到隔墙的稳定性和质量要求,强烈建议将墙体加厚,使用100mm厚的常规超薄隔墙做法。
小结.
最后,咱们通过一张图来回顾下本期的重点内容:
