都说“女爱粉红梦幻,男爱黑白冷酷”,现在的90后装修新房,谁都有想法,谁都不妥协。
那可怎么办?想想,粉红色的工业风,这画面自己都要“哆嗦”。
还好,这家的房子够大啊。女生占两层,男生占一层。谁都不影响谁,真是够过分了。就像我们听说,在上海夫妻能够分床睡,那可是品质生活的象征,说明他们家大啊!
分得开,才是重点。OK。话不多说,我们看看这个家的精彩。
地址坐标:台湾垦丁,温暖与浪漫的海边,可能也赋予屋主和设计师最生活的想象力。
改造说明:这套自建房总共三层,就像之前说的,一二层是为女生打造的粉红世界。一楼规划为客厅会客室、二楼是卧室、卫生间、休闲室,三楼为男生的私人天地。

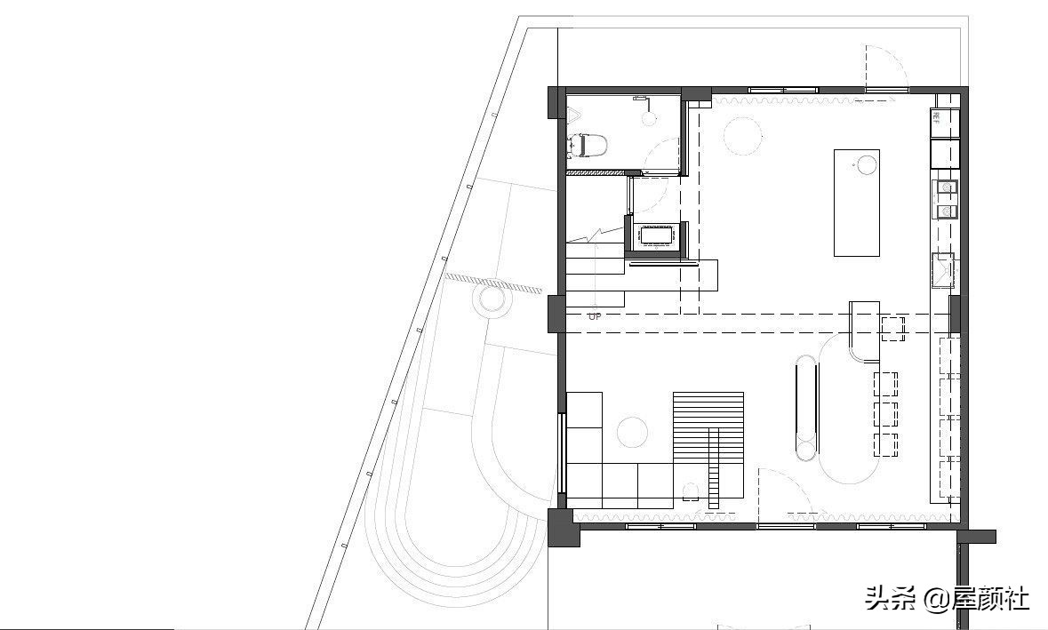
▲ 一楼平面图

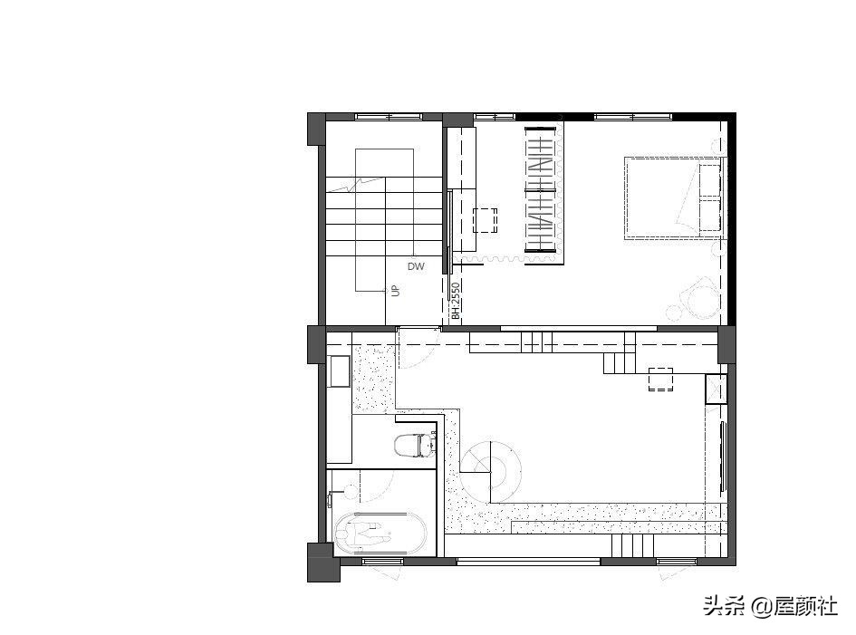
▲二楼平面图

▲ 三楼平面图



▲改造设想: 除了在风格、颜色的营造之外,如何确保采光良好、楼梯设计合理、生活起居配置重整等等,都需要考虑周全。此外,家里还有一位猫主人,屋主也特意关照要便利猫猫的生活习惯(又是位猫奴)
改造后:


一楼,足够大的室内空间,不仅保有生活客厅原有的功能,更像一个大型的亲朋好友聚会中心。
设计师不仅要融入完善的生活机能,更设计成了“艺术走廊”和“私人物品展览室”,女主人童心未泯,从小保留的公仔玩具,都得以完整展示,同时也留好空间以便未来再添上新的藏品。
特别定制的两面皆可乘坐的沙发,足够十几,二十个朋友的聚会,毫无拘谨。主客人在每个角落都能面对面谈天,没有了距离感,相互间的关系更为融洽。

厨房区域,通过拱形门和更低矮的天花板造型进行区分,以原木材质做整体构建,感觉清新舒适。橱柜超多,操作台特长,中岛吧台够大。
还是,房子大才舒服啊。两个玩偶应该也是女生喜欢的卡通人物,造型可爱,惟妙惟肖。

邻近楼梯的一侧,还有隐藏式卫生间,干湿分离。洗手*独台**立于外侧,同样是可爱圆润的粉红造型。水磨石材质,让墙面添加了不少活泼度,柔和的融入原木地板的氛围,演绎不一样的感官体验。

二楼空间的规划有休闲区、衣帽间、卫生间和主卧等,相对于一楼整个区域就需要分割的更细碎。所以,设计师运用通透的玻璃材质,让空间保留整体的贯通和视野畅达。
至于必需要隐私的卫生间,则放置在2层的角落,用水磨石半墙和粉红玻璃做了视线隔断,独立的浴缸,设在窗下,气流通透,这个享受太舒服了。

二楼设计了众多阶梯式的台阶,不仅人可以坐着,猫猫也可以攀爬玩耍。休闲区宽敞明亮,扔掉了沙发茶几,有显而易见的阔绰。
代表大空间的专属玩具,室内秋千也整起来了。几个毛绒布垫,类似温泉中心常用的靠垫——坐着,躺着,靠着,趴着,怎么开心怎么来。家具的功能性更为自由、多元。
粉红色依然是二层的主色彩,室内依然是女孩的梦幻场。粉红色温柔点缀在不同材质之上,粉红色的玻璃、粉红色的台阶,粉红色的椅子,粉红色的垫子。所有一切,传递最独特的空间氛围。

主卧室倒是采购了蒂芬尼蓝的大床。估计也得要照顾照顾老公的感受吧,哈哈。说实话,也恰到好处避免了颜色堆积带来的压迫,与软萌的粉色产生完美的化学反应。
三楼,终于来到了男生自我的生活区。铁件、水泥、木质等自然纹理取代粉色调,成为室内的主要材质,这才是直男的选择。质感和纯粹至上,可以简单但一定要有型。
靠着墙壁的铁架子,应该以后会放些个人物品和书籍等等,目前依然空空如也。其他室内家具更是全无。说实话,男生也真用不着啥家具,有床有地方坐坐差不多了。
比如,通往三楼露台的室内外台阶,坐着看书、喝咖啡、吹海风,屋颜君很羡慕了。

淡粉色马赛克砖贴附的卫生间区域,简约而不简单。有黑色的台面及水龙头,还有隐藏在灰色水泥墙面上的卫生间门,三个不同的颜色,都有硬朗的内涵,达成一种和谐的平衡美。对于钢铁直男,混泥土黑色永不过时。


夫妻两人完全不同的喜好,建立在同一个空间的分区。生活或许就是这样吧,即使亲密如家人,也需要自我的私人领地。这不是独断或专行,恰恰是关系融洽的调和剂,也是相互尊重的高情商。
人与人的接触更是如此,相互间的认可,并不是无原则的同属,而是保有独立的见解和思考,和而不同,君子之道。不过话说回来,这家屋主太幸福,这么大的房子随便整呀。