今天这套农村小别墅,位于四川省某乡村,是住宅公园合作伙伴——“田园雅墅”施工队的作品。
别墅建成不仅比效果图还漂亮,施工过程也很是规范,值得点赞!我们特将这套小别墅从基础、主体、封顶、外墙美化等施工过程完美呈现给大家,赶紧一起来看看专业的农村别墅施工队的水平吧!
▼别墅效果图
明亮柔和的别墅配色、错落有致的坡屋顶,打造出一座典雅大气的乡村别墅。

▼建成实拍图
别墅的实际建成效果跟效果图相比可谓不相上下,可见农村别墅要建好看,光有好的图纸还真是不够,有一个好的施工队也很重要!

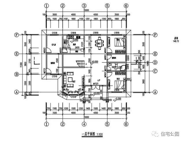
▼平面布局图
室内布局遵循实用的原则而设计,贴合农村的生活习惯。

四面设窗、南北通透,别墅内采光通风肯定不错,为房主一家带来最优质的居住感受。

▼拆除老房

▼平整地基

▼开挖基槽
基槽一定要挖至老土层,并且进入老土层深度不应小于20cm。

▼垫层施工
基槽浇筑一层10cm厚的素混凝土垫层,使其表面平整方便绑扎钢筋,也能起到保护基础的作用。

▼支模
支模时,应按工序进行,在模板没有固定前,不能进行下道工序。

▼现浇混凝土

▼基础养护
当冬季施工时,混凝土构件要采取覆盖保温的方式进行养护。

▼砌筑砖基础

▼现浇条基

▼基础回填
回填时采用机械碾压进行夯实,施工时要分层铺土、碾压密实,回填土建议用房屋周围同类土。

▼一层砌筑施工
接长构造柱钢筋后,采用粘土实心砖进行主体的砌筑。
在砖混结构中,承重墙作为主要的承重构件,在砌墙时一定要保证基本的横平竖直、砂浆饱满、灰缝均匀、上下错缝、内外搭砌、接槎牢固。

▼构造柱施工
构造柱与圈梁一同连接,形成房屋的“框架”。
在进行构造柱施工时,要设置马牙槎和拉结筋,使构造柱和墙体更好的连接起来,从而增加房屋的稳定性,加强房屋的抗震能力。

构造柱一般设置在外墙四角、楼梯四角、错层部位横墙与外纵墙交接处、较大洞口两侧,大房间内外墙交接处等。

▼构造柱支模
构造柱的施工工序是,先绑扎钢筋,再砌墙体并应留有马牙槎,最后再浇筑混凝土。

▼室内楼梯支模

▼满堂支架


▼构造柱拆模
混凝土达到设计强度的70%以上,方可拆模,并且不能野蛮拆除,以免损伤模板造成混凝土构件缺棱掉角。

▼一层楼板支模

▼绑扎楼板钢筋

▼预埋水电管线

▼钢筋细节
楼板布置双层双向钢筋,板底部的短向钢筋放在下部,长向放在上部,充分发挥钢筋作用。

▼砖块垫层

▼马凳筋垫层
农村建房时很多时候都不设置马凳筋,这是要不得的!
不设马凳筋在施工时,很容易将双层钢筋踩踏至同一平面上,使钢筋起不到应有的作用;而且浇筑完混凝土,拆模后容易出现露筋现象。

▼马凳筋细节
一般在板厚大于150mm以上时需要设置马凳筋,使上下两层板钢筋的中间保持间距,固定上层板钢筋。

▼现浇一层楼板

▼二层砌筑施工

▼拆模后的楼板
混凝土现浇楼板一次成型,增强房屋的整体性,可以看到拆模后的楼板无蜂窝、麻面等不良现象,施工质量不错!

▼封顶

▼屋面支模
楼板、屋面均采用现浇,虽然耗费的人工、建材更多,但老百姓建房,房屋安全才是最重要的!

▼绑扎屋面圈梁钢筋
屋面同样需要设置圈梁, 提高房屋整体刚度,防止由于地基发生不均匀沉降而对房屋产生破坏。

▼绑扎屋面板钢筋
屋面钢筋同样是双层双向,这质量,杠杠的!

屋面板钢筋与圈梁钢筋锚固连接,面板的下层钢筋锚入到圈梁内,上层的钢筋从圈梁上面穿过,并用扎丝扎牢。

▼现浇坡屋面
现浇的坡屋顶最难在于如何振捣密实。因为坡屋面多且坡度较大,混凝土在浇筑时难免会往下滑,振捣不好屋面容易形成蜂窝麻面。

▼坡屋面养护
可以看到,完工后的坡屋面板光滑平整,无麻面、起壳、起砂等不良情况。


▼铺瓦
盖瓦都是请的专业瓦工师傅,时间快,效率高,质量和观感都相当不错。

▼外墙抹灰、安装花瓶柱栏杆

▼外墙美化施工
一层采用文化石,二层采用乳胶漆。

并安装外墙装饰构件,梁托、窗套线、檐口线、腰线、墙裙线、山花,使得别墅造型更加丰富。

文化石样式较多,房主选定了一款风化石,装饰效果很是不错。

▼花瓶柱

▼安装门窗

▼露台围栏喷漆美化

▼拆除脚手架

▼别墅完工
看见自家的小别墅盖得这么漂亮,房主和父母也是高兴得合不拢嘴!

▼别墅侧面
不管从哪个角度来看,这栋别墅都别具美感。

没有多余造作的建筑装饰,用色彩以及外墙用料来传达出别墅的设计感。这样高性价比的住宅,特别适用于大部分农村地区建造。


▼文化石
文化石因其自身特有的纹理脉络,充分的展示了天然石材的质感与艺术性。而且文化石质地坚硬,用作外墙装饰不仅耐脏,也非常耐用。

▼别墅造价
这栋四川农村的小别墅耗时120天终于建成了,别墅建筑面积为280平,总造价为42万。价格包含主体、外装饰、窗户、室内水电安装、四白落地。

如果是你,愿意回乡建一栋这样的别墅吗?
关注本号,更多别墅户型、建房省钱经验分享!