今天带来的案例是鑫友装饰设计的实景案例解读,房子位于沈阳市。业主需求:厨房想做封闭式,但厨房门口过小;厨房内需要蒸烤箱,双开门冰箱、净水器;卫生间做干湿分开,洗衣间需要一个舒适的位置。
#本案设计师滕凯伦

设计师滕凯伦
从业6年,毕业于沈阳建筑大学,
拥有高级室内设计师资格证CIDA,
软装设计师资格证,CAD等级证,
擅长极简风格,轻奢风格,意式风格等
房屋信息
户型:三居室
使用面积:114㎡
房屋位置:沈阳市
小区:名骏雅居
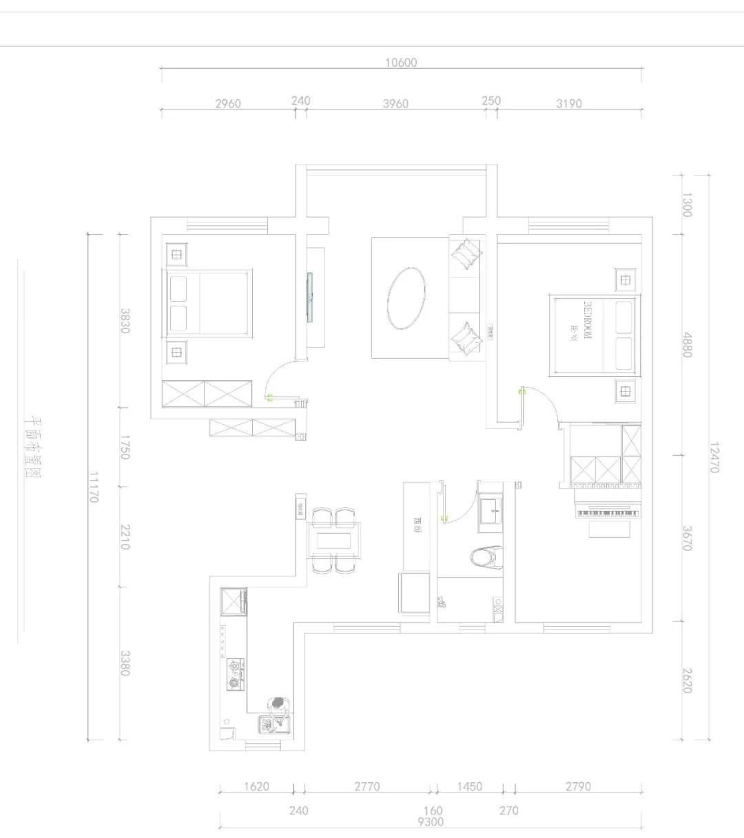
#户型图

原始平面图

平面布局图
户型优劣势: 户型是114平三房一卫配置,赠送南阳台,南面通风采光好,厨卫在北,是相对来说利用率较高的空间。
户型劣势: 各个空间布局相对紧凑。
设计师设计思路:
1、增加厨房的使用面积,实现中西厨,实现客餐厅一体化;
2、卫生间为下沉式,淋浴区做干湿分离,让采光与气流更加对流;
3、增加主卧室衣帽间功能,使空间更加合理化;
4、增加进户鞋柜的储藏空间,进户后扩充走廊景深。
#玄关
原本一梯一户,三房两厅的户型,大横厅的设计让空间更加的开阔,但考虑到入户门厅的空间相对比较局促,无法满足正常的餐厅所需空间,所以将入电梯前的空间规划为鞋柜区域,同时也减少了入户门厅的拥堵感,进户后空间更加地开阔;

▲ 实景图
进户后北面餐厅增加西厨,中厨和西厨分离减少公共空间的油烟问题也满足了业主对于餐厅和西厨的钟爱,餐厅与厨房紧邻也大大缩短了家务动线。
#客厅

▲ 实景图
在白色的客厅设计中有明亮、平坦的放大空间,最大化地将自然采光引入室内,橘色包裹白色为空间增加了些许温暖感。

▲ 实景图
形式追随功能,利用餐厅与客厅连接的折角空间定制一组“L“型装饰柜,不同材质柜面的组合运用,丰富了设计的多样性也轻松分离了不同柜体的功能使用。

▲实景图
阳台纳入客厅打破了空间的边界感,让视觉感得以延伸,一植一物都透露着自然悠闲的气息,让人沉浸其中汲取宁静,感受阳光洒下的痕迹。
#餐厅

▲ 实景图
将空间面积浪费较大的餐厅增加西厨,实现了业主梦寐以求的中西双厨功能,顺势改变了原本入户的拥堵感,以灵活的功能和动线组合,极大地提升了空间平效,营造了丰富的生活视角。
#厨房

▲实景图
厨房延续整体空间的现代格调,表现出一种高冷范儿。通体白色定制橱柜搭配白色台面和深灰色地砖,让厨房看上去更加整洁明亮。

▲ 实景图
暗拉手的设计让橱柜有着硬朗雅意质感,减少吊柜的收纳将储物主要规划在地柜,拿取更安全方便,让人可以尽情享受烹饪本身的乐趣。
#卧室

▲ 实景图
主卧室更注重实用和舒适性,第一视感淡雅舒适、清新明快,原木床品低调有质感,低纯度布艺床品营造出一个富有视觉钝感的睡眠环境。衣柜柜门内隐藏步入式衣帽间,尽显简约品质生活。

▲ 实景图
卧室的面积也比较宽阔,通风采光都不错,舒适感也是卧室最主要的功能。
#卫生间

▲ 实景图
一个高颜值的台盆区,实现功能与品质兼具的二分离次卫。皓白的台面、木色抽屉、深灰色置物层板,由浅到深的材质递进,建立明晰的功能层次。
合理地利用空间是我们一直坚持的,充分理解客户的需求也是我们所必须的。在沟通风格意向的时候,我们需要去沟通、理解客户喜欢的点在哪里,比如这套作品你喜欢哪一个点,是这个色彩搭配得很好看,还是仅仅只是喜欢这里面的一幅挂画,从一次次的沟通中掌握客户真正的需求。
看完这个细节满满的案例,你对家的设计是不是又增加了新的灵感,喜欢本案可以扫描下方二维码,设计同款,一起交流家装那些事,赶快行动吧。