泗泾,外界将它称作是上海之根、千年古镇,是上海唯一一个古镇鱼米水乡。
但对于本地人来讲,这里说白了,就是乡村。
近几年,随着城镇的发展,这里成为了众多刚需甚至是部分改善类购房者非常青睐的地段,据统计在2019年上半年新房成交总套数TOP10中,泗泾板块总成交套数最高,达1639套。

近日,凤凰网房产实地走访了泗泾板块,发现由于前几年过量的土地供应,如今的泗泾板块新房市场供应已有所下滑,特别是刚需类产品几乎为零,市场正逐渐往改善方向倾斜,与此同时,区域内改善楼盘由于价格高等原因,面临去化困难的窘境。
01
板块配套:虽完善 但能级不高
泗泾地处松江、青浦交界处,直线距离大虹桥大约10km,属于大虹桥的辐射区之一。
从板块自身配套来说,无论是商业、教育、医疗都是比较成熟的状态,但是总体能级并不高,尤其是商业和教育方面实属一般,高端消费需要跑到松江万达或者七宝莘庄,好一点的学校也主要集中在松江新城。
交通方面,泗泾板块集轨道交通、地面道路、高速公路于一体,地铁9号线穿插而过,1845、1846、186、沪陈线、松江46路、松江47路等多条公交线路集中分布。

值得注意的是,泗泾的人口密度较大,9号线拥挤已是常态,而且泗泾地铁站早高峰限流。
商业方面,以泗泾地铁站旁的三湘生活广场和保利悦活荟为主,内含多家品牌餐饮、电影院、大润发、苏宁易购等,是泗泾居民比较常去的商业广场,不过总体能级较低。

如需高端消费需求,还得前往松江万达或者周边板块如七宝、九亭、莘庄等地。
医疗方面,泗泾医院,一家二级乙等医院,是泗泾板块内的主要医院,可提供基本的综合医疗服务。如需更高的医疗条件需前往松江区内的三级甲等医院松江新城第一人民医院。

教育方面,目前板块内泗泾幼儿园、泗泾小学、泗泾二小、松江四中等中小学资源,能满足小孩从幼儿园开始到中学的教育需求。
虽然板块内教学资源比较多,但是缺乏优质的教学资源。
02
新房:库存有待补充
截止到现在,泗泾板块内在售的新房仅有同济晶萃、绿波景园两个项目,待售的新盘有格力项目、招商项目、华发项目。
01
同济晶萃:普普通通的去化率
同济晶萃位于泗泾板块北部,地处泗陈公路和刘五公路交叉口,距离9号线泗泾站步行距离1.4公里。
项目目前在售建筑面积约76-106㎡洋房,精装交付,均价44508元/㎡。

据了解,项目最新一次开盘时间是在4月20日,房源数574套,开盘当天去化约200套,去化率35%。
这一销售成绩看似亮眼,但是与此前板块的金地项目相比却有些惨淡。据悉,金地项目2019年8月开盘,199套房源,420组认筹,开盘当天近乎“日光”。
高房价和交通不便成了同济晶萃去化路上的一道坎。
02
绿波景园:存在感最低的楼盘
与板块内其他楼盘相比,绿波景园可谓是存在感最低的一个楼盘。既没有强大的后台支撑,也没有光鲜亮丽的数据。
据了解,项目目前在售建面约91-136㎡房源,均价约3.6万/㎡,虽然价格低,但是项目去化却很惨淡。

网上房地产显示,从2016年9月项目二期开盘至今,404套房源还剩147套在售,三年多时间,去化率仅36%。
实地探访发现,项目位于沪松公路2972弄,与泗泾古镇相连,距离泗泾镇中心仅有几分钟的距离。
但是最重要的一点来了,项目距离地铁9号线泗泾地铁站2.6公里。
要知道泗泾的人口导入和发展是围绕着9号线进行的,9号线才是泗泾的命脉。
03
格力项目:入市时间成迷
2016年5月,松江泗泾板块诞生的双子地王刷爆了地球人的朋友圈。那一役,众多房企激烈争夺,竞争之疯狂堪称出动了“中国地产界的半壁江山”。
最终,格力与融创分别摘取了双子地王:泗泾镇SJSB0003单元10-05号地块和12-01号地块。
虽然同日拍出,但两幅地块节奏却截然不同。12-01号融创地块,拿地不到4个月出规划方案,不到半年即开工建设,18年底拿证入市,19年7月售罄,今年6月份交房,节奏可以说非常快。

反观10-05号格力地块,拿地14个月才出规划方案,19个月开工建设,目前虽然所建楼栋已全面封顶,塔楼造型也已初见雏形,但至今备案名和推广名都未公布,入市时间仍成迷。

其实,10-05号地块的缓慢进程并非个例。据了解,格力地产前滩38-01地块的开发也是一段漫长的时间,2014年12月24日拿地,至今仍未入市。
除了项目的入市时间成迷之外,从项目的实景图来看,项目为塔楼,且都并非正南朝向,而是东南朝向。

(项目效果图 来源:格力地产官网)
虽然目前项目暂未公布户型,但是塔楼往往是围绕楼梯或电梯为核心布局,因此部分户型可能会是蝶形户型,套内空间无法做到十分方正,也有可能会出现暗室。
04
华发项目:要引入建发共同开发?
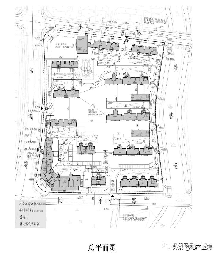
相较于格力项目3.7万/㎡的楼面价,华发项目的楼面价要低许多,仅2.1万/㎡,地块的开发节奏也相对比较快速。资料显示,项目拿地2个月后,规划方案就已经公示。

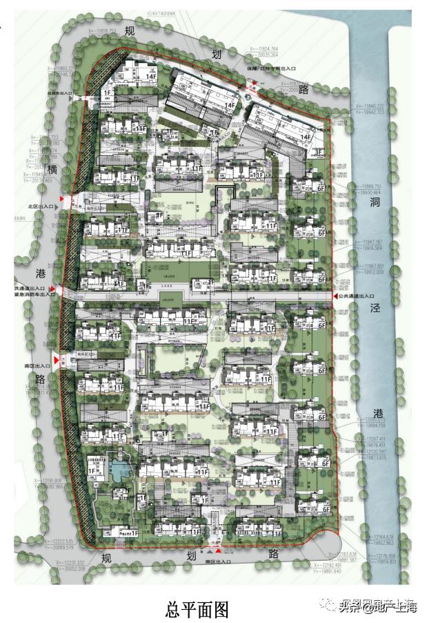
规划显示,项目由洋房、小高层和高层组成,其中2-9#为总高6层的花园洋房,10-30#为总高11层的小高层住宅,31-33#为总高14层的高层住宅。

目前,项目围挡已搭建,但是施工铭牌并未公示,还处于整平待挖地基阶段。

此外,在走访时,还有了新发现,在地块围挡上展示的效果图上发现“建发玺樾”的楼盘名,让人忍不住猜想,这是要引入建发联合开发吗?

05
招商项目:方案曝光 还未动工
与17-01号华发地块相比,11-01号招商地块动作稍显落后。从松江区规划和土地管理局网站看到,招商项目规划方案在今年3月20日才公示。

规划显示,项目一共有12栋主体建筑,其中自持住宅、保障房各一栋,剩余10栋为可售住宅,规划住宅套数876套。10栋可售住宅中,其中1-2#层高11层;3-7#、9-10#层高14层;8#层高10层。

结语
走了一圈泗泾,变化确实很大。对于泗泾的新房来讲,除了价格因素外,9号线无疑是去化难易的命脉,它让许多在市区工作的人愿意把家安在这里,毕竟这里半个多小时就能直达徐家汇。
来源凤凰网房产上海