本案位于成华区·华润二十四城柒公馆43层,俯瞰成都的地理坐标,采光通透。业主喜欢轻奢风,不喜千篇一律,期望新居富有张扬的色彩和独特的个性,为此,本案明星设计师 蒋婷 老师为他量身定制了一套个性造家方案,致力打造 色彩丰富 、 个性十足 、 兼具品质与时尚 的轻奢理想家。
户型解析
本案户型方正,入户即是足够开阔的视野。

▲原始户型图
客餐厨动线清晰,主卧、次卧格局分明,美中不足的是厨房操作空间较为狭小,计划变更为双开推拉门增加厨房采光,将厨房扩至生活阳台空间,做L型橱柜,增加足够的烹饪区域;主卧、次卧拆除多余墙体,增加定制柜储物收纳空间。

▲厨房空间变更示意图

▲次卧空间变更示意图

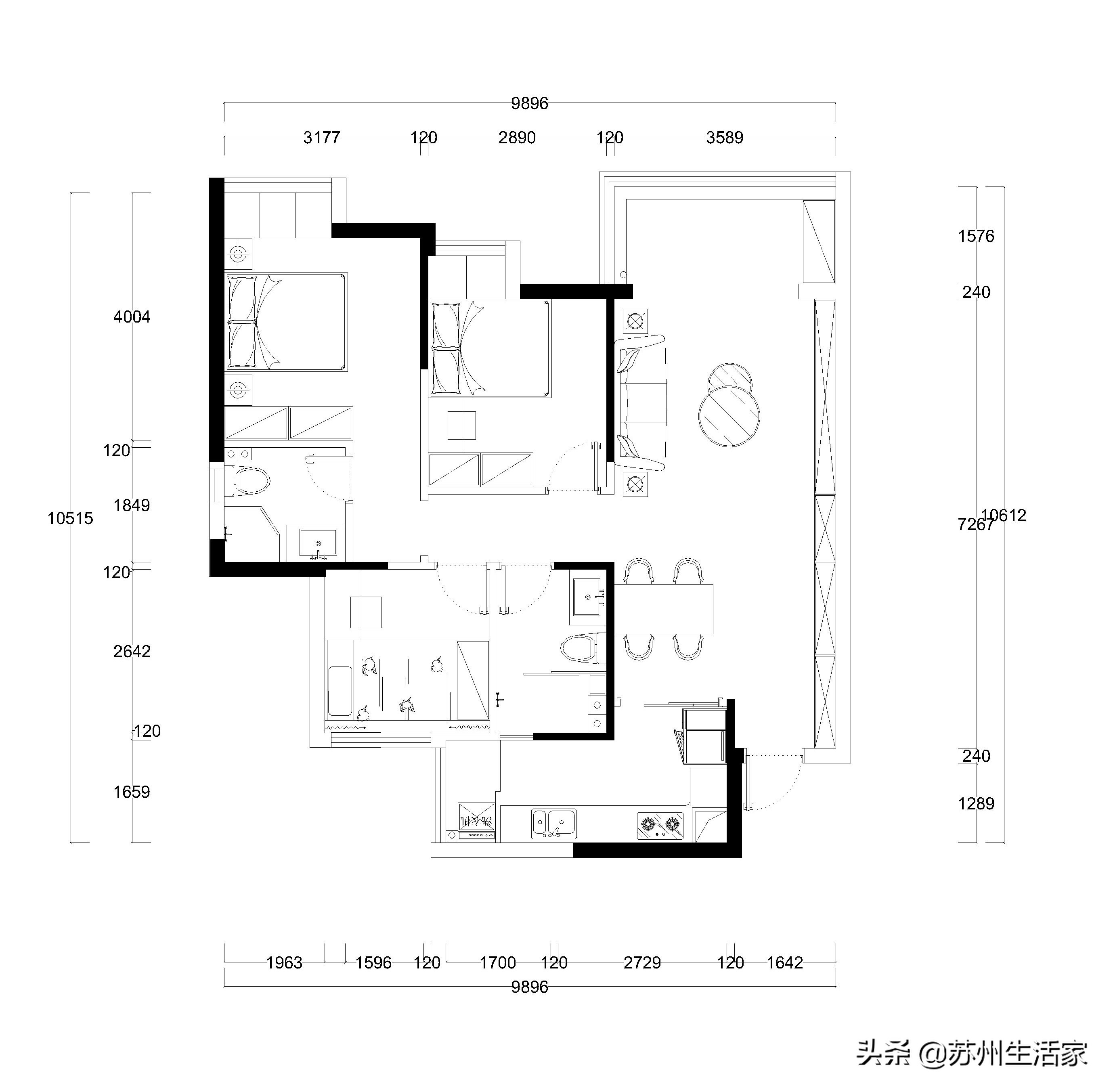
▲改造后平面布置图
客厅 | Living Room


选用灰色与咖色作为空间主色,凸显沉稳,木格栅饰面增加空间纹理感和层次感。


泼墨般的大理石散发自然的光泽,为空间带来艺术的诗意。客厅里安谧的一隅,给予人稳定温和的包容感。


电视柜美观与实用并重,可容纳丰富的柜藏,展现主人的格调与品位。
入户 | Porch

简约的柜体富有丰富的储藏功能。
餐厅 | Dining Room


墨绿色餐椅与沙发相映衬,为空间增色。简约艺术灯饰作衬,打造精致奢华的质感。
厨房 | Kitchen


厨房空间深浅色瓷砖交错拼贴,别有趣味。大L型橱柜增加充足的收纳,大理石台面大气且方便打理,长虹玻璃柜门凸显高级气质。
卧室 | Living Room


纳帕纹皮普蓝色金属线条背景墙,为空间奠定轻奢的格调,无主灯设计带来柔和淡然的光线,打造舒适静谧的睡眠环境。

石纹饰面定制衣柜为卧室空间丰富了细节,与客厅的泼墨大理石墙面遥相映衬,大气质朴且细腻。
同纹样星空饰面床头柜,与普蓝色背景墙相映衬,展现出独特的艺术美感。
儿童房 | Children's room

色彩鲜亮、清新典雅的儿童房,承载孩子的梦与想象。

“家是多样的,不可复制的。它不仅仅是材料的组成、家具的摆陈,更多意义上,它承载了很多隐秘的情感,是身心的休憩之所。为业主设计家,就是为居住者的梦找一个独立的、现实的载体,通过它,走向每一个家庭的美好生活。”蒋婷老师说。