方案概况
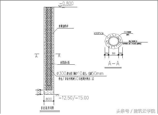
本工程进行基坑开挖时采用自流深井降水。自流深井采用800型正循环回旋 钻机成孔,井距8至15米不等,详见设计,为避开桩、承台、后浇带等部分井位稍有变动。成孔直径为800mm ,井壁管采用Φ300PVC波纹管,井底标高为-16.500米,井管口高出地面0.3m。井管与井孔之间灌填加工砂,灌填范围为井底向上至地表面为止。井壁管制作采用在波纹管上用电钻钻Φ10@100小孔,在管外包扎2层60 目铁丝网。基坑降水设计要求:基坑降水在满足施工要求的前提下,应尽量减少降水深 度,以减缓基坑降水对周围环境的影响。深井降水周期:基坑开挖前7天内开始降水运行,在所有结构回填完成后比 计算许可才撤泵停止降水。

管井施工方法和技术要求
管井施工工艺流程 测放井位→挖泥浆池→钻机到位→钻孔→清孔换浆→下井管→填加工砂→井口封闭→洗井→安泵调试→联网抽水
施工准备
调查场地周围明沟排水位置,清除沟道淤泥,安排排水通道。组织项目人员进行开工前教育和安全、技术交底。水、电齐备,场地平整后,人员、材料、设备进场。 连接水、电,安装调试设备。规划现场平面布置,合理安排成井施工设备和施工顺序。
测放井位 根据设计要求和降水井井位平面布置图测放井位,当布设的井点受地面障碍物或施工条件影响时,由设计指定,对现场作适当调整。挖泥浆池 根据现场条件,泥浆池设置在J48阀门井南侧10米空地上。废浆及时进行外运。安装钻机及成孔 机台应安装稳固水平,大钩对准中心,大钩,转盘与孔的中心三点成一线。 降水井开孔孔径为Φ700,均一径到底。钻进开孔时应吊紧大钩钢丝绳,轻压慢转,以保证开孔钻进的垂直度,成孔施工采用孔内自然造浆。 清孔换浆 钻孔钻进至设计标高后,在提钻前将钻杆提至离孔底0.50m,进行冲孔清除孔内杂物,同时将孔内的泥浆密度逐步调至1.10,孔底沉淤小于30cm,返出的泥浆内不含泥块为止。下井管 管子进场后,应严格按照设计要求制作滤水管。下管前必须测量孔深,孔深符合设计要求后,开始下井管,下管时在滤水管上下两端绑扎固定半径小于孔径5CM 的尖头木块,以保证滤水管能居中垂直,下到设计深度后,井口固定居中。填加工砂 填加工砂前在井管内下入钻杆至离孔底0.30m~0.50m,井管上口应加闷头密封后,从钻杆内泵送泥浆进行边冲孔边逐步调浆使孔内的泥浆从滤水管内向外由井管与孔壁的环状间隙内返浆,使孔内的泥浆密度逐步调到1.05,然后开小泵量按前述井的构造设计要求填入加工砂,并随填随测填加工砂的高度。直至加工砂灌填高度达到设计要求为止。 井口封闭 为防止泥浆及地表水从管外流入井内,在滤水管外边用水泥浆封孔。洗井 :成井后,借助DN50泥浆泵清除孔内泥浆,至内完全出清水为止,再用DN20污水泵反复进行恢复性多次抽洗。洗井应在成孔4小时内进行,以免时间过长,护壁泥皮逐渐老化难以破坏,影响渗水效果。安泵调试 :污水泵用粗绳吊放,泵的端部至井底距离不小于0.50m。安装并接通电源,每井附近设置电闸箱,预埋电缆,做到单井单控电源。排水 洗井及降水运行时应用管道将水排至场地四周的明渠内,通过排水渠将水排入场外市政管网。

降水运行
试运行:试运行之前,准确测定各井口和地面标高、静止水位,然后开始试运行, 以检查抽水设备、抽水与排水系统能否满足降水要求。在降水井的成井施工阶段应边施工边抽水,即完成一口投入降水运行一口, 力争在基坑开挖前,将基坑内地下水降到基坑开挖面以下0.5m深。水位降水设计深度后,即暂停抽水,观测井内的恢复水位。降水运行:基坑内的降水应在基坑开挖前10天内进行,做到能及时降低流量计井内基 坑中的地下水位。坑内降水井抽水时,潜水泵的抽水间隔时间自短至长,每次抽水井内抽干 后,应立即停泵,对于出水量较大的井每天开泵的抽水的次数相应要增多。降水运行过程中,做好各井的水位观测工作,尤其要加强对观测井的水位 测定,及时掌握承压含水层水头的变化情况。以降低下部承压水头,保证施工时基坑底板的稳定。在降低下部承压水头的降水运行过程中当承压水头降至设计要求时,可适 当调控抽水量来控制承压水头的下降幅度,以减少因降水而引起的地面沉降。降水运行期间,现场实行24小时值班制,值班人员应认真做好各项质量记 录,做到准确齐全。降水运行过程中对降水运行的记录,应及时分析整理,绘制各种必要图表, 以合理指导降水工作,提高降水运行的效果。降水运行记录每天提交一份,对停抽的井应及时测量水位,每天2次。
降水施工保证措施
施工质量保证措施:现场成立降水管理组,由专门技术人员进行现场管理,对施工过程和施工质量严格控制。布设降水井时,井位应严格按设计要求选定,须避开地下结构和欲埋设管线位置。降水施工期间应保证连续供电,在发生供电障碍时应立即启用现场发电设施供电,避免因停电造成井内水位上升,影响施工。降水井在施工完成后和降水期间,井口加设井盖,防止落入杂物,在井位插警示标志,防止其它施工对井管造成损坏,并由专人进行维护。现场必须备用不少于3台潜水泵,维持降水人员随时检查水泵的工作情况,及时更换运转不良的水泵。加强观测工作,对地下水位、水流动态、地面沉降等进行详实记录,并及时进行汇总、分析。
辅助降水措施 在基坑内沿槽边挖排水沟,并间隔一定距离挖集水坑,坑内下入Φ300PVC管,管外填充级配砂石,在管内下泵抽水。
其它施工措施
临时用电措施:建立健全现场临时用电管理制度,电工值班巡查制度,落实临电管理人员,明确其职责。做好施工用电安全技术交底。所有电动机具、机械、电气设备必须由专职电工或持证的操作手进行操作和维修,非电工或操作手不得随意动用机电设备。雨天要遮盖各种机电设备,并随时检查。电工要做好值班及维修日记。工地使用的所有电器必须保证质量合格。
机械管理措施:)建立健全现场雨季施工机械管理制度,落实机械管理人员,明确其职责。所有机械必须由专职操作手操作和维修,按操作规程操作,严禁非操作人员随意动用机械。机械管理人员必须对操作手做安全技术交底,并做好记录。所有机械做好使用及维修保养记录,必须每天检查确定机械设备的安全使用。操作人员应做好交接班记录。 机械管理人员要注意做好雨天对机械设备的遮盖,并检查电源、电路是否安全,以防漏电伤人。料具管理措施 :建立健全现场料具管理制度,落实料具管理人员,明确其职责。现场料具堆放必须按规定的位置,严禁乱堆乱放。根据进度要求,提出材料需用计划,及时组织进场。凡雨天运输困难的材料,要考虑有一定量的储备,防止出现停工待料现象。石料集中堆放,并要用苫布遮盖,同时做好周边的排水,以防止施工时堵塞料管。每道工序完工必须做到活完料净场地清,按指定的地方码放好。

安全防护措施
现场要有健全的安全领导小组和安全管理制度及措施。施工前应进行技术安全交底,施工中应明确分工,统一指挥,设专人负责。施工现场用电应严格按照用电安全管理规定,加强电源管理,预防发生电器火灾。对基坑周边的检查,发现隐患及时上报,并加强该地段的安全措施。做好现场文明施工。
技术资料管理
降水井洗完井后,应及时检查降水井实际深度并做好记录,降水期间应每天检查抽水情况,观测基坑周边地下水变化情况并做好记录。资料填写字迹清楚工整,内容符合要求,签字手续齐全。 每天的观测记录按甲方和监理要求报送。建立健全现场临时用电管理制度,电工值班巡查制度,落实临电管理人员,明确其职责,电工要做好值班及维修日记。施工现场用电应严格按照用电安全管理规定,配电箱要采取防雨雪措施,并安装漏电保护装置。施工前应进行技术交底和安全交底,施工中应明确分工,统一指挥,设专人负责。