
混凝土挡墙
我们常见的混凝土挡墙,如上图所示,采用支模浇灌的方式, 混凝土做为主体材料的一种挡墙。
混凝土挡墙现在应用十分广泛,除非有特殊要求,一般的挡墙都会设计成混凝土结构的挡墙。混凝土挡墙无论在结构稳定性还是安全性上都有绝对的优势。
混凝土挡墙按照其结构形式,可分为重力式、衡重式、悬臂式、扶臂式、锚杆式、桩(柱)板式、等类型。
当然,这些混凝土结构的挡墙也分配筋和不配筋的。
下面我们就来看看他们究竟是什么样的吧!

重力式挡墙

衡重式挡墙

折背式挡墙

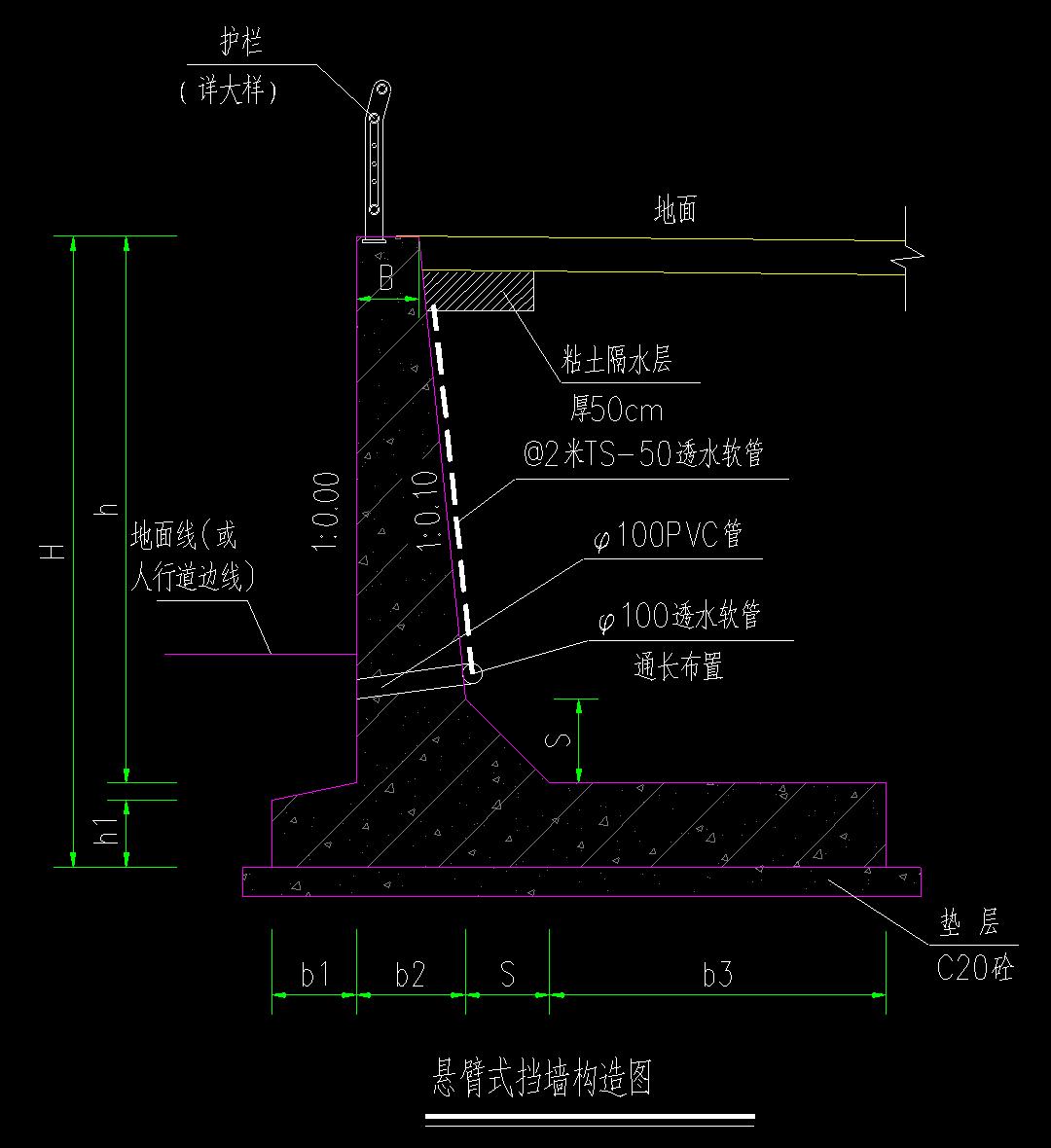
悬臂式挡墙

扶壁式挡墙

仰斜式挡墙

混凝土挡墙
我们常见的混凝土挡墙,如上图所示,采用支模浇灌的方式, 混凝土做为主体材料的一种挡墙。
混凝土挡墙现在应用十分广泛,除非有特殊要求,一般的挡墙都会设计成混凝土结构的挡墙。混凝土挡墙无论在结构稳定性还是安全性上都有绝对的优势。
混凝土挡墙按照其结构形式,可分为重力式、衡重式、悬臂式、扶臂式、锚杆式、桩(柱)板式、等类型。
当然,这些混凝土结构的挡墙也分配筋和不配筋的。
下面我们就来看看他们究竟是什么样的吧!

重力式挡墙

衡重式挡墙

折背式挡墙

悬臂式挡墙

扶壁式挡墙

仰斜式挡墙