
花园名称: 安徽|秋水庭
地址: 安徽宿州上河城外滩
设计单位: 无觅造园卓一卓设计团队
面积: 35m²
不知不觉,秋天已经到来很久了。天气也没有夏天那么燥热,渐渐地,温度慢慢降了下来。
记得刚到安徽的时候,天色阴沉沉的。踏在这清凉的土地上,内心不由自主的也变得低落。幸好到业主家的时候,一家人的热情感染了我们。业主家是一对老夫妻加一个女儿,家庭和睦温馨,这次的邀请是他们女儿向我们发出的。

“ 先生,我平时上班比较忙,没有太多的时间陪伴父母。看到他们喜欢种种东西,打理植物,就想着建造一座花园,陪着他们一起度过空余但舒心的时光。”

“ 同时,也可以有地方让他们邀请老朋友一起过来聚聚。希望院子能够建得简洁、有意境一些,要有水,有休息的地方。”
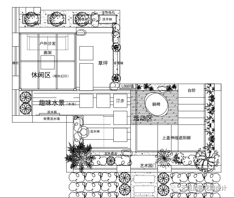
“ 女士,根据您的需求,我们建议入户做简单的铺装,往左走就做一个大型静水池,养上几条鲤鱼,平时老人家还可以喂喂鱼。最里面建造一座休息凉亭,中间用汀步链接,人就从水池上慢慢走到亭子。旁边用简单的草坪铺地就够了。”

经过一番的沟通,主人对无觅造园的设计想法和理念特别满意。
整个沟通是在院子里进行的,沟通的过程中,无觅造园合理分工,对花园进行勘测和拍摄现场照片以及记录数据等。


显而易见,这是一座半成品的花园,简单做了一点硬化,但大部分还是原始的土地,只不过划分成几块菜地。土壤是安徽一带特有的黄褐土,泥土不会过于松散也不太容易板结。


由于整个过程比较顺利,勘测数据也很完整,无觅造园很快就设计出了方案。
除了在与业主沟通时所构思的设计上,无觅造园对各个功能区进行细化和适当的增减,最终形成如下方案。

在垂直空间上增加层次感,对色彩进行把控,以及构思怎么给空间适当留白。花园设计当然少不了动静结合的运用,在满足客户需求的基础上,运用专业的知识,对花园进行布景规划。






王维的在《辋川闲居赠裴秀才迪》曾写道 “ 寒山转苍翠,秋水日潺湲 ”。正好符合现在的景色,故取名“ 秋水庭 ”。
入户的台阶保持原貌不变,一旁无觅造园使用芬兰防腐木铺设,增加了一个躺椅,上面设置伸缩雨棚,防止日晒雨淋。平时躺在椅子上,就可以观赏到流水钵的水,缓缓流入水池里。

休息凉亭对面做了一个镂空流水景墙,往右堆砌种植池,配上花境,种上一棵造型飘逸的红枫,再添上几块嵌有苔藓的石头。 水上飘红枫,夜晚再向水面赊几分月色,痛快地赏月饮酒。

剩余的空地铺设草坪,周边用灰色砾石过渡,放置耐候钢景墙,搭设洗手台,空的地方适当点缀几棵植物,放上景石,一块模仿自然生长的草地就做好了。

灯具的放置是不必可少的,大门添上壁灯,水池旁放上照明灯,为了安全也给夜景增添了氛围感。

傍晚,在落日的映照使得秋水显得格外明亮,太阳余晖在远山中间慢慢消失。靠在柔软的靠枕上,临风听暮蝉。

-END-
创造生活 创造美好
WUMIZAOYUAN
无觅造园的贴心小提示 : 在忙碌的同时,别忘了常常问候家里的亲人哦~