
春眠不觉晓,处处闻啼鸟。
天已大亮。
窗外重峦叠嶂,林海浩瀚。

楼下,爱人正在晨泳。


快步下楼,在露台上享用丰盛的早餐,


△©无间设计△
上午要去杭州谈点生意,
和苍茫的群山说声再见。

从大山大水到人工花园,瞬间切换,


从群山环绕到高楼大厦,一个小时。

这里是市值6500W的绿城安吉桃花源未来山 Ⅱ 。
未来山系是BA最早的作品之一,也是绿城第一个现代山地别墅。
01.
新风格的诞生是自然与商业的共同选择
湖州安吉位于长三角腹地,
是一个山清水秀的好地方。
1999年,李安在这里拍摄《卧虎藏龙》,

△《卧虎藏龙》△
2005年,科学论断在这里提出,

△科学论断△
2012年,宋卫平在这里建起了现代桃花源。

△绿城安吉桃花源△
绿城安吉桃花源位于灵峰山景区,园区内山峦起伏,溪流潺潺。
“山水之间,悠然之居”。
2013年,宋卫平为安吉桃花源写下这句定位语,一座世界级水准的度假生活小镇开始建造。
悦榕庄,悦榕街,国际学校,别墅组团拔地而起,清一色白墙黛瓦的中式建筑。层层叠叠的茶园,散落隐蔽的小院,良田美池桑竹,一幅现代桃花源的画卷缓缓展开。

虽然中式产品得到了市场的认可,但创造新风格的需求还是提上了日程,主要基于两点考虑:
1、美酒再好,切莫贪杯,持续开发同类产品会迅速消耗客户群体,还容易引发项目内部竞争。
2、安吉桃花源占地近万亩,项目内山峦水系众多,地貌复杂,地形适应性较差的中式建筑捉襟见肘。

2014年,新别墅组团项目位于地形陡峭植被茂密的山脊,定位森林山居,如果继续建设中式风格组团,则意味着需要平整场地,不但产生较大的土方,增加开发成本,而且原始山林也会遭到破坏,非常可惜。
于是,现代风格山地别墅应运而生。
2014年,BA蓝城设计开始着手设计现代山居。
02.
相地:自然生长的现代性
设计从相地开始。
未来山系(Ⅰ Ⅱ)共分为17个地块,红线(建筑用地范围)形状均为点或条状。

规划形态上,可选方案并不多,一字长蛇,线性布局是最好的选择。

△未来山Ⅰ← → 未来山Ⅱ△

用地海拔从64米到123米,在山腰至山脊均有分布。
未来山Ⅰ被两座山谷分隔为 I V 两块条状用地,多位于山腰或山脊,地形较陡,坡度在10%到60%之间。
V 形用地 / 部分坡度35%~60%,是项目地形最为陡峭复杂的区域。

未来山Ⅱ分为15块用地,多位于群山山头,地势相对较缓,坡度在15%-30%之间。

项目现场山峦起伏,茂林修竹,不见村庄,不见稻田,时间静止,有一种属于山林的宁静。

这片宁静,可能是人们来到这里山居的唯一理由。
如何尽可能的保存这种纯粹?
03.
消隐
保持纯粹的第一步,
就是尽量少出现在画面中。

玻璃的透明消解边界,落地玻璃,将山林引入室内,让自然气韵充满山居的每个角落。



玻璃又把自然与现代生活微微隔开,像在一个巨大的玻璃泡中俯瞰自然。

△莫比斯《伊甸园》△
玻璃的反射模糊了边界,山林的影像在建筑立面上浮现,你中有我,我中有你,让建筑的边界不再生硬,将建筑与自然融合在一起。

玻璃屋的魅力,1950年,密斯设计的范斯沃斯住宅已经展现的淋漓尽致。

但玻璃带来的隐私问题让范斯沃斯小姐非常苦恼,那想象一下几十座玻璃屋摆在一起……

这谁扛得住?
还好,森林与山地,给处理隐私问题提供了可能。
借助高差,设置墙体,隔墙,延长挑板,或增加绿化,未来山的设计既保持了通透,又很好地解决了邻里视线问题。



04.
悬浮
项目基地人迹罕至,是一片处女地,犹如“外星球”,建筑单体的玻璃泡在此降落,伸下机械足,停稳落地,不破坏一丝一毫的植被,未来山像宇宙飞船一样悬浮在林海上空,乘风破浪。


其实这种悬浮的设计既现代又传统。
中国西南山区传统的半干栏式建筑,俗称吊脚楼,是苗族等少数民族的传统民居,节约土地,造价低廉。上层通风、干燥、防潮,住人,下层关牲口或用来堆放杂物。

而未来山居依据度假的属性做出了新的诠释,上层居住,观景,下层花园,享受林间静谧。



露台,在建筑主体之外包裹了一层自然与建筑暧昧的空间,是一方小院,也可俯瞰山谷。



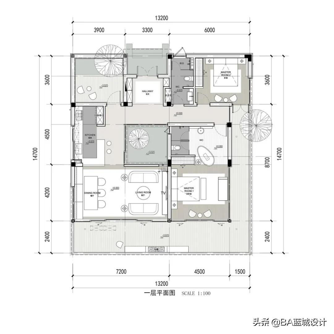
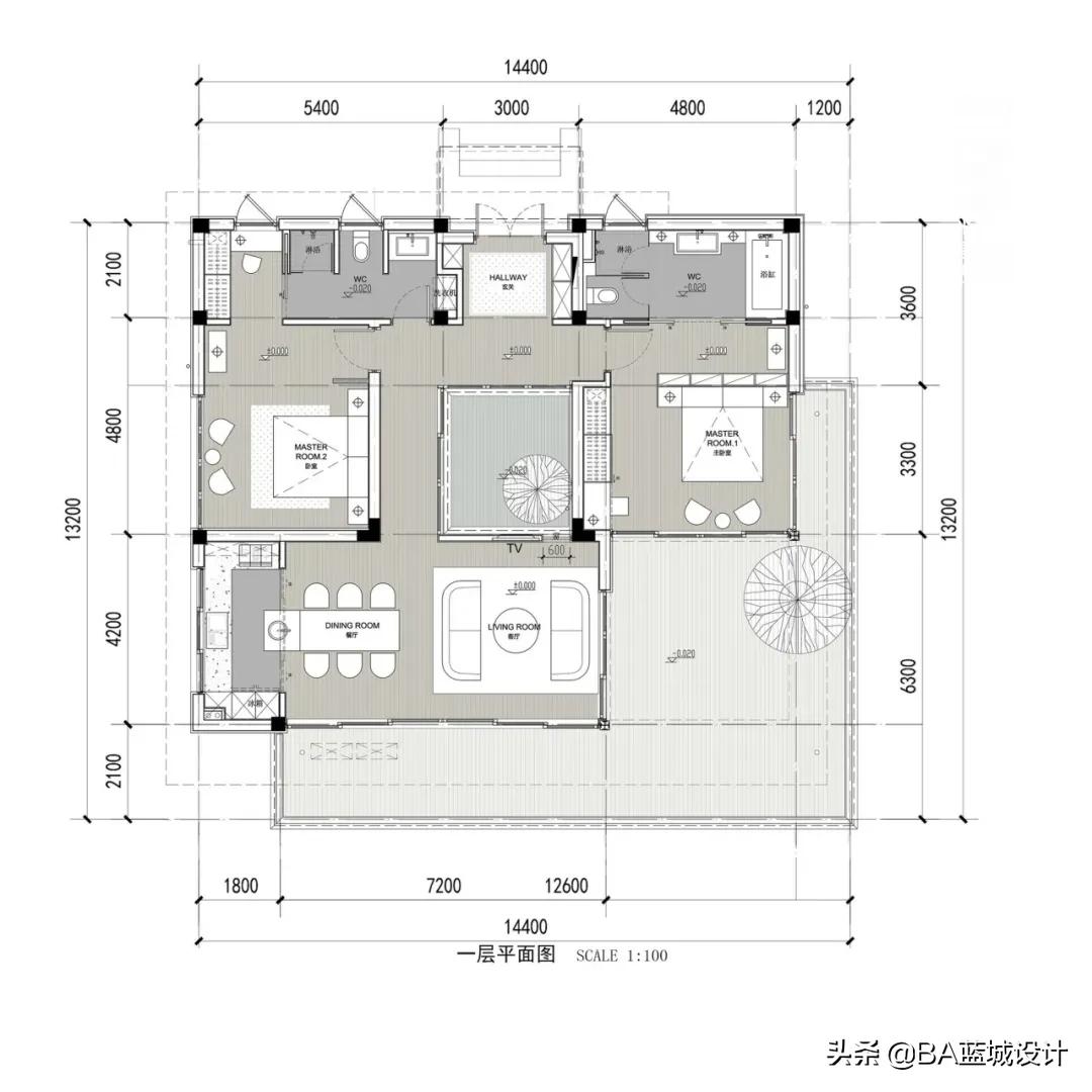
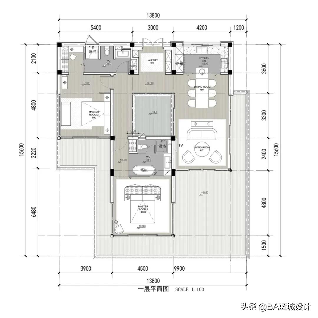
未来山Ⅰ的户型集中在120㎡和190㎡两个面积段,通过中庭组织流线,拥有一种山居独有的舒展,让绿色与天光充满居室的每个角落。









05.
雕塑感
未来山Ⅱ的建筑用地多集中于山头,坡度较缓,吊脚楼的感觉并不明显,通过分析户型动静分区,梳理功能体块,解构,穿插,获得了另一种“悬浮”。


卧室体块的二层,与公共区的一层,十字交叉,二层体块轻轻落在V字形结构上,体量感与非标准结构之间形成了一种张力,获得了一种举重若轻的雕塑感。




05.
造价与呈现
未来山系是一种全新的类型,平衡效果与成本是创新项目成败的关键。
未来山Ⅱ白色是主色调,立面上蓝灰色石材提供了设计的暗部。
最开始选择的是大理石蓝眼睛,可惜封矿了,替代材料珍珠蓝又太贵(纯材料450元/方)。于是设计师奔赴各石材产地,搜集了越南蓝钻,宝山灰,654等替代石材,经过样板墙比选,最终确定了效果不错,价格适中的宝山灰,成功控制了成本。


未来山Ⅱ坐落于山顶,从低往高看是一个重要的视角,充满力量感的大跨设计也对吊顶的材料提出了更高的要求,因此,吊顶的营造是成败的关键。

BA设计师尝试了多种跳色配置,比选了木质与铝制,最终选择了菠萝格木,通过自然的木色深浅,配置五种跳色,来形成自然质感的吊顶肌理。



06.
结语
如果用一句话来评价未来山:
“这个房子巧妙借助外面的山景,实现了建筑与自然的融合。”
————宋卫平
观看视频,戳
BA作品 | 未来山