小白下面从八个方面全方位剖析此楼盘的产品细节,分析观点维持客观,中立,第三方。

先上规划总图

(图中楼栋间距标注均取整)
总图排布特点分析:
1、地块相对规整,西侧地块横向布置四排,东侧地块横向错位布置三排,从这点上来说,西侧地块的横向面宽较足;
2、楼栋朝向上主要为南向;
3、楼栋之间间距主要为35米左右,由于地块内主要为小高层,间距指标较好;
4、两地块楼栋均为北低南高,类似一把小椅子。
1、指标分析


(来源:自规局官网)
D地块小区分布12栋小高层,综合经济技术指标可得出:
1、住宅地块容积率为2.4,绿地率40.94%,建筑密度20.64%,整体指标数据较好(地块大,人口少,绿地率高);
2、商住比为0.9%,几乎为纯住宅地块;
3、未见明显的人防设施,可咨询下是否设置;
4、住宅地库车位配比为1:1.33,车位较为充裕(应考虑购买大面积段人员的购买力);
5、户型面积大于150㎡的占比为66%,主要瞄准改善人群。
E地块小区分布11栋小高层,综合经济技术指标可得出:
1、住宅地块容积率为2.4,绿地率40.86%,建筑密度19.85%,整体指标数据较好;
2、纯住宅地块;
3、未见明显的人防设施,可咨询下是否设置;
4、住宅地库车位配比为1:1.12,车位基本满足需求;
5、户型面积大于150㎡的占比为29%,主要瞄准刚需人群。
2、区位分析

(示意图)
片区及地块本身素质:此地块位于长沙县星沙区,位于星沙核心配套区且临近松雅湖湿地公园,地块素质较好。

(示意图)
地块周边主要节点:
1、1.2km左右:星沙文体中心站(地铁3号线,步行15~20分钟左右);
2、项目北侧:松雅湖湿地公园;
3、直线800m~1.6km左右:吾悦广场,长沙县文体中心,华润置地广场,星沙天虹购物中心。
综上所述:地块离地铁口有点距离,去市中心或上下班可能需换乘交通工具;在生活配套上,周边商业综合体较多,比较便捷;南侧不远为长沙县文体中心,有较好的公共资源配套(如图书馆,文化馆)。
3、交通分析

高速路网 :往东可达长沙绕城高速(6.2km左右),往西可达星沙互通进入京港澳高速(3.7km左右),通达省内外较为方便;
城市路网 :往西可达星沙大道(2.5km左右),与雨花大道、三一大道相接,可便捷通达芙蓉区、开福区、雨花区等。
4、小区流线

人行、车行出入口: 各开口详见上图示意,下面只讨论相关问题;
两地块均在北侧开设人行次入口,去公园较为方便;

D地块西侧的地库出入口需从支路进入,可咨询下这条路是不是与小区同时交付,否则需从小区南侧出入口绕行进入,极为不便。

可咨询下D地块南侧人行出入口前坪,是否存在地面停车位横向穿行,导致与人行流线交叉。

E地块东侧人行入园流线与地库车行流线可能在前坪存在一定交叉,交通较为复杂。
5、教育配套

(示意图)
学校配套方面:配建幼儿园,项目自建学校签约麓山国际+长郡双语。周边有松雅湖第二小学、大同星沙第二小学、松雅湖中学、特立中学、长沙师范学校、星沙文体中心等,具体教育配套以楼盘公示为准。
6、地块细节分析


(示意图)
垃圾站:D地块位于D4#(距12.6m左右)与D5#(距14.3m左右)之间,E地块位于E1#(距18.5m左右)与E4#(距14.1m左右)之间。


(示意图)
公厕:D地块位于D13#二层,E地块位于E5#北侧(临近物管大堂),总体便于清洁,设置合理。


(示意图)
居家养老、文化活动站、物管用房:位于D1#~D6#之间。
幼儿园、托儿所:位于E1#与E2#之间。
两者均凹进园区,占用较多楼栋中央园林空间。

(示意图)
地面停车区:E1#南侧设置小型地面停车区(距6.1m左右)。


(示意图)
地上停车位:两地块局部设置,可了解下后期怎么管理,是否投入使用,人车是否分流等。



(示意图)
消防扑救场地(需采用硬质铺装):D7#~D12#、E6#~E11#、E2#与E5#之间的登高场地在一个面,导致在有限的间距内,硬质铺装较多,软景配植较少,后期景观打造较为局限。
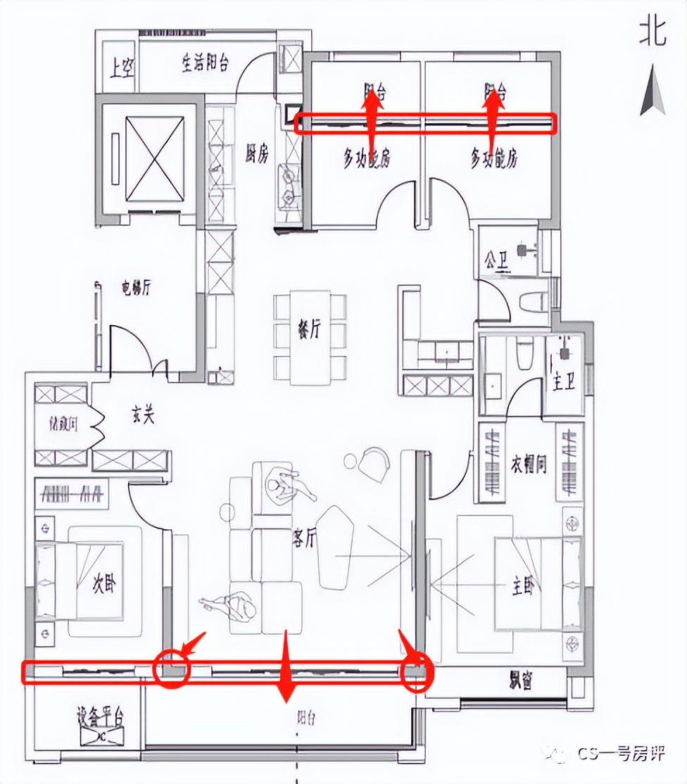
7、小区典型户型分析

112户型亮点:
1、户型紧凑方正,房间大小比例较好;
2、主卧与主卫南北纵向布置,采光通风较好,但是主卫门正对床头,感官稍差;
3、厨房餐厅虽然不大,但空间利用效率较好;
4、双面宽阳台,尺度较大。
户型遗憾:
1、公卫设置小拐角,空间观感稍差。

(框选为去墙后、空间连通示意)
户型可改造性:客厅、次卧与南侧阳台之间可推出,扩大室内空间,但中间有承重墙垛(上图红圈处),自理受到一定程度限制;
客厅与次卧可联通,做成横厅;
主卧与次卧之间可连通,做成主卧套间;
书房与北侧套内花园可连通做成房间,但应注意两者之间是否设置梁位。

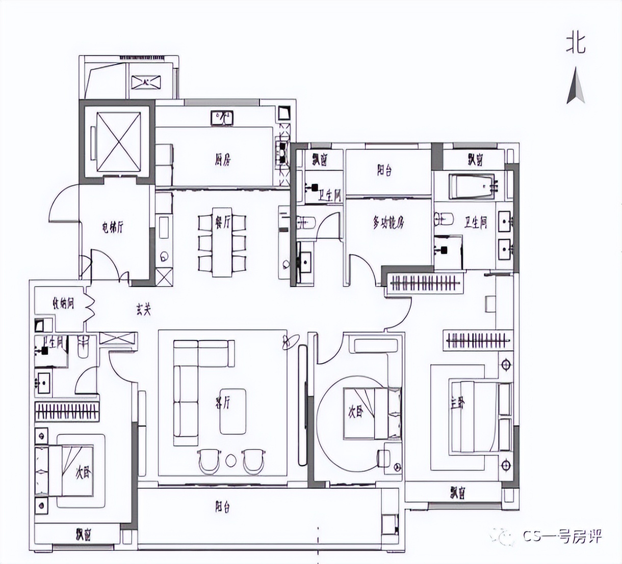
131户型亮点:
1、整体框架其实与112户型较为类似。
户型遗憾:
1、户型进深较长,总体不是很舒展;
2、厨房内部尺度较小,冰箱置于外侧,使用上有点不便;
3、书房推出后,剩余设备平台较小,如做中央空调可能会有点挡卫生间窗。

(框选为去墙后、空间连通示意)
户型可改造性:
客厅、次卧与南侧阳台之间可推出,扩大室内空间,但中间有承重墙垛(上图红圈处),自理受到一定程度限制;
客厅与东侧次卧可联通,做成横厅;
主卧与西侧次卧或者北侧多功能房(与套内花园分隔顶部是否设置梁位)之间可连通,做成主卧套间;
书房如要自理推出,也应注意顶板是否设置梁位(如有的话,房间中间有梁,居住感官不佳)。

148户型亮点:
1、入户玄关设置储藏间,对于女主人,较为实用;
2、玄关处设置老人房,可满足一定的分区居住需求;
3、北侧设置生活阳台,可满足一定的晾晒需求;
4、客厅与餐厅较为方正,装修效果好。
户型遗憾:
1、厨房需兼做通往阳台通道,本身空间实用性降低;
2、餐厅位于交通核心区,空间不够独立;
3、玄关处次卧开门在一定程度上影响客厅的完整性;
4、次卧外设备平台如推出,扩大室内空间,则户型整体缺乏备用设备平台。

(框选为去墙后、空间连通示意)
户型可改造性:客厅与南侧阳台之间可以打通,扩大户内空间,但中间有承重墙垛(上图红圈处),自理受到一定程度限制;
多功能房与北侧阳台之间可自理为房间,但应注意两者之间顶部是否有结构梁(房间顶部有梁的话,影响居住体验)。

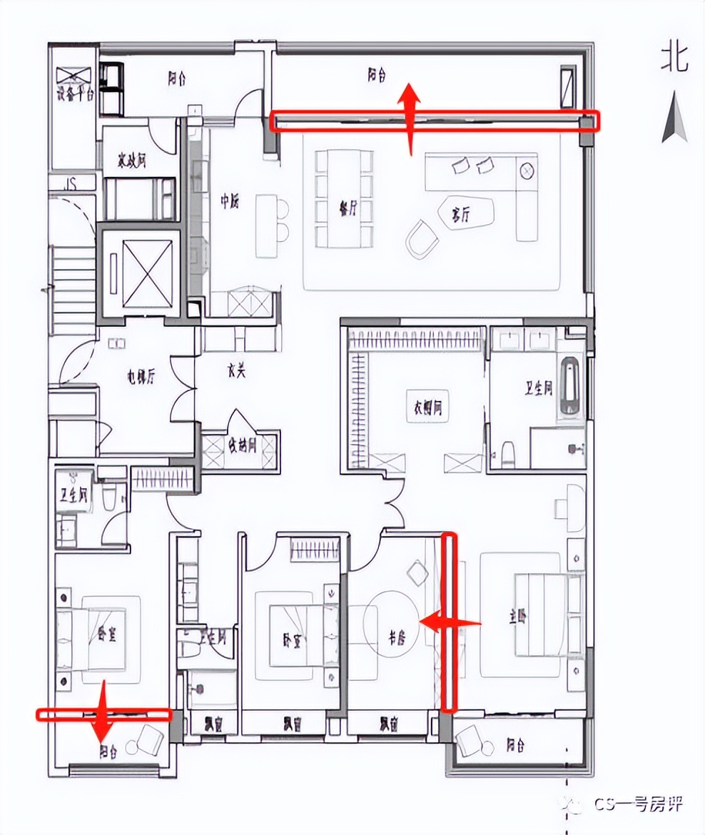
189户型亮点:
1、单电梯入户,归家仪式感较好;
2、玄关处设置收纳间,比较实用;
3、玄关处设置老人房且带独立卫生间,可满足家庭分区居住需求;
4、阳台横跨两个面宽,尺度较大;
5、主卧与主卫南北纵向布置,采光通风较好,但是主卫门正对床头,可通过后期软装遮挡。
户型遗憾:
1、厨房横向布置,长方向开窗,影响吊柜布置,空间实用性降低;
2、玄关处柜体空间较少。

(框选为去墙后、空间连通示意)
户型可改造性:客厅、次卧与南侧阳台之间可以打通,扩大户内空间,但中间有承重墙垛(上图红圈处),自理受到一定程度限制;
主卧与西侧次卧、北侧多功能房(可咨询下与阳台之间的顶板是否存在结构梁)可联合做成主卧套间(设置两房或者三房套间)。

240户型亮点:
1、户型南北分区,卧室均布置在南向,居住体验较好;损失客厅本身采光通风需求,是为了松雅湖的景观面,所以还是较为合理;
2、单电梯入户,归家体验佳;收纳间与玄关柜使用便利;
3、主卧套间各功能分区较为独立,布置合理。
户型遗憾:
1、户型整体进深较长,面宽不够,所以每个空间都显得比较长条;
2、厨房长度较长而面宽较窄,实用性上欠佳(操作流线不畅);
3、南侧次卫较长但面宽较窄,实际布置很难出彩,空间比较鸡肋;
4、客厅的观影方向是朝南,而景观资源在北向,完全相反,二者不可得兼。

(框选为去墙后、空间连通示意)
户型可改造性:客厅、餐厅与北侧阳台之间可以打通,扩大起居空间;
主卧与西侧书房可联合做成主卧套间。
8、总结
地块综合:此地块位于星沙区,主打景观资源的同时,周边配套也比较完善,地块本身品质不错,但是为了最大化利用景观资源,做高溢价,在做240户型的时候,缩窄面宽,导致户型不够舒展,此终极产品做的有些差强人意。
适合人群:周边上班族或偏爱此处区位的改善需求。
如何选:从入园品质(外侧有大门构架,中间有广场,里面有物管大堂,三层递进关系)、地块形态,地块综合指标来说,D地块的素质更佳;如要选核心产品,还是沿湖一线。
文章不做任何引导性购买建议,纯粹从客户角度分析项目。
文中户型改造部分均为示意,如需采纳实行,应找具有资质的装修单位做详细施工方案。
纯干货软文编写不易,欢迎点赞、关注、转发。