北科建泰禾丽春湖院子是由新中式院落别墅打造者——泰禾集团与国有企业、科技地产前辈—北科建集团,于西北五环外联袂打造的“院子系”全新升级之作。项目北承西山气象,南荟江南园林风情,溯源院子系坊巷规制,规划“五坊八巷”,礼序“三进门第”,在三山五园旁,造一座“院子里的江南”。
北科建泰禾丽春湖院子以文化筑居中国的理念,匠心造院,以精益求精的工匠精神,筑就中国式居住理想。加推独院产品,建面为440-568平。对此别墅楼盘比较感兴趣的购房朋友,可以跟着小编一起来了解看看北科建泰禾丽春湖院子装修案例,以及项目的基本信息介绍,有助于大家选择到适合的住所,一起来了解看看吧!

(楼盘外景效果图)

(楼盘外景效果图)
基本信息:
价格:约2500万元/套起
物业类别:别墅
项目特色:低密居所,特色别墅,豪华居住区,水景地产
建筑类别:独栋,叠拼
装修状况:毛坯
产权年限:
独栋:70年
叠拼:70年
环线位置:五至六环
开盘时间:15#、16#等已于2017年2月11日顺销
交房时间:叠拼、独院、大院预计2018年12月30日交房
开发商:北京瑞坤置业有限责任公司
楼盘地址:西北五环外沙河地铁站向南800米处丽春湖北岸

(楼盘景观配套效果图)

(楼盘景观配套效果图)

(楼盘景观配套效果图)
周边设施:
地铁:临近地铁昌平线,沙河站下车,距离项目800米
自驾:京藏高速小汤山出口出,右转进入百沙路,沿百沙路行驶2公里,右转进入丰善东路,行驶1.4公里,到达河堤路,沿河堤路向东1公里即到
三纵:京藏线、京新线、规划中的南丰线。这三条线路是连接北部的核心干道,项目距离京藏高速仅4公里,而毗邻的南丰路是继八达岭高速、立汤路后,通往市区的又一条交通主干路,构建新城便捷的交通网络将起到关键作用
三横:北清路、北五环、北六环

(别墅景观效果图)

(别墅景观效果图)
综合商场:永旺购物中心、珠江摩尔国际中心、华联商厦、高教园区商业、龙德广场、家乐福、翠微百货
医院:积水潭医院(回龙观分院)、 北京市昌平区中西医结合医院、北京市昌平区沙河医院
其他:北京红枫湖高尔夫俱乐部
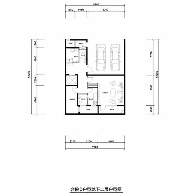
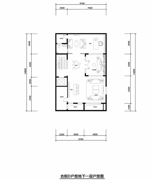
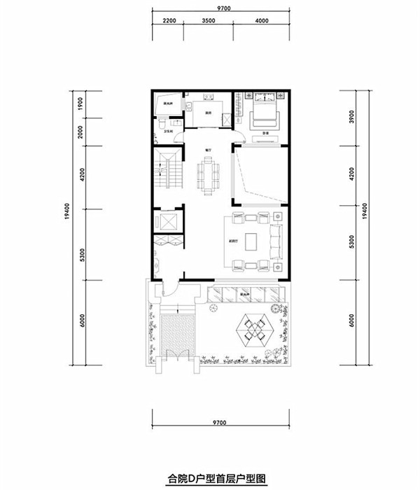
北科建泰禾丽春湖院子户型图(D户型,500平米):

D户型,500平米

D户型,500平米

D户型,500平米

D户型,500平米

D户型,500平米
北科建泰禾丽春湖院子装修案例:

吧台-客厅

客厅-餐厅

书房-客厅

卧室-卫浴间
文章内容所介绍的就是关于北科建泰禾丽春湖院子装修案例及项目的基本信息,相信大家在看了此楼盘小区信息的相关介绍之后,对于选择适合的小区有一定的参考作用。
免责声明:本站发布的所有内容旨在为用户提供更多的楼盘信息及装修案例,并非广告(以上信息均为网络资料,未经核查证实,请各位读者以政府部门登记备案为准)。