教育是民生的头等大事
昨天无锡公布了2020年
小学施教区和初中招生对口方案
(点击查看详情)
即将进入新的学期
随之而来的
还有无锡一波高颜值新学校

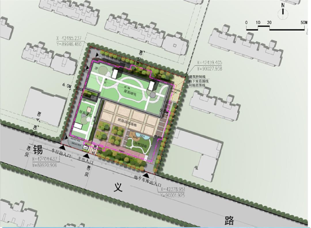
新城初中

新城初中计划于5月底完成教学楼装饰工程,9月1日正常开学。新城初中规划建设地点位于南湖大道以东,吴都路以北,和畅路以南。总建筑面积约5.97万平方米,现全面推进教学楼、行政楼、餐厅等装饰、机电、智能化施工,以及室外市政管线的施工。

无锡市滨湖区双语实验中学

滨湖区双语实验中学位于无锡市滨湖区蠡园街道环港路18号,观湖路与环港路交叉口东北侧。这所学校为无锡市河埒中学西校区,命名为无锡市滨湖区双语实验中学,今年9月就要迎来第一批新生啦!

办学规模
学校占地面积4.5万平方米,建筑面积2.9万平方米,设计规模为12轨36个教学班,最多可容纳1800名学生。
办学性质
学校为义务教育公办学校,隶属于滨湖区教育局,由无锡市河埒中学教育集团负责办学,采用“河埒品牌+河埒管理+双语特色”的集团化办学模式。



东湖塘实验小学


东湖塘实验小学位于东港大道以北,金港大道以东,占地面积为64973平方米,新建校区建筑面积约3.18万平方。办学规模为10轨60班,容积率为0.5,按绿色二星建筑进行设计,包含教学楼、专业教学楼、行政综合楼、多功能报告厅、学生食堂、体育馆、游泳馆等。

东湖塘实验小学2018年1月开工,2019年10月竣工,由江苏伟丰建筑安装集团有限公司承建,总投资约18971万元。计划2020年秋季学期正式投用。
怀仁幼儿园

怀仁幼儿园位于创新路以南,金港大道以东,占地面积19955平方米,建筑面积为1.2万平方米。办学规模为8轨24班,容积率为0.6,包括幼儿活动单元、教师办公、多功能厅、共享连廊空间、厨房餐厅等各类辅助功能,按绿色二星建筑进行设计。

怀仁幼儿园2018年6月开工,2019年10月竣工,由南通华龙建筑安装工程有限公司承建,总投资约7204万元。计划2020年秋季学期正式投用。
南京理工大学江阴校区

经过20个月的紧张施工,位于江阴临港开发区的南京理工大学江阴校区,33万平方米主体结构已全面完成施工!室内装修和室外工程建设正在加紧收尾。
目前,校区主干道路路基基本完成,市政管道主管道基本完成,水电安装、暖通机电施工已完成工程量的90%以上。此外,校园内的特色景观学子湖主体开挖已经完成,万杉林已完成80%的种植面积。
南理工江阴校区将于今年9月迎来第一批学生。

除了上述这些学校
不久后
还有这些学校全新“上线”

无锡外国语春城幼儿园

6月1日,无锡外国语学校与新吴区人民政府江溪街道办事处联手,成立无锡外国语春城幼儿园。
体制上
无锡外国语春城幼儿园依旧为公办性质,按照公办幼儿园标准收费。
管理上
外国语学校将派驻业务素质高、管理水平强的专业团队进驻幼儿园,力争达到区域内一流的教学质量,让孩子们可以享受优质民办园的服务。
洛社镇杨市中心小学

洛社镇杨市中心小学改扩建工程规划设计方案审查批前公示。该项目位于惠山区洛社镇杨市社区,星火东大街南侧。建设单位为无锡市惠山区洛社镇人民政府,用地性质为小学用地。

该项目总可建设用地面积约3.73万平方米,总建筑面积约2.18万平方米,主要设计内容为教学楼、行政楼、食堂、风雨操场、图书馆、地下室等。



光电园配套九年一贯制学校

5月22日,无锡市自然资源和规划局公示了,无锡光电新材料科技园配套九年一贯制学校工程项目规划设计方案批前公示。

项目目位于梁溪区,用地范围东至皋桥路、西至会岸路、北至河道、南至规划道路,总可建设用地面积约47448.1平方米,用地性质为九年一贯制学校用地,建设单位为无锡市梁溪区教育局。

规划设计方案中显示:项目总建筑面积约5.1万平方米,其中地上建筑面积约3.1万平方米,建筑密度23.6%,容积率0.66,绿地率35.1%。


梅村中心幼儿园崇德分园

5月7日,梅村中心幼儿园崇德分园工程项目规划设计方案批前公示。
梅村中心幼儿园崇德分园位于新吴区梅村街道锡义路北侧、新洲路东侧、花半里小区西侧地块,建设单位为无锡市新吴区人民政府梅村街道办事处。

可建设用地面积约0.72万平方米,用地性质为幼儿园用地。总建筑面积约1.2万平方米,容积率、建筑密度等相关指标符合规划要求。

无锡市新吴实验中学

5月8日,无锡市新吴实验中学项目规划设计方案批前公示。
新吴实验中学,位于新吴区江华路与锡士路交叉口西南侧,建设单位为无锡市新吴实验中学。

地块可建设用地面积约62104平方米,规划用地性质为中小学用地。项目总建筑面积约5.5万平方米,容积率、建筑密度等相关指标符合规划要求。

无锡市旺庄中学

项目位于无锡市旺庄中学内,利用现有土地扩建12班教学楼及学生餐厅等,建设单位为无锡市旺庄中学,规划用地性质为中学用地。项目扩建部分建筑面积约7500平方米,容积率、建筑密度等相关指标符合规划要求。

宜兴市进修幼儿园

宜兴市进修幼儿园紧邻宜兴市实验中学北校区东侧。项目总占地面积27605平方米,幼儿园北侧广场设置停车场及道路,面积约9600平方米,约240个车位。幼儿园总建筑面积11152平方米,北面入口为晨检等功能大厅区,西面为服务管理用房,东面为多功能服务用房,往南为教育区及户外活动操场。

目前,土建主体结构已完工,计划7月进行内部装修,争取今年年底完工交付。项目建成后,停车场区域将极大的缓解教育路车辆停车压力,同时幼儿园的基础设施也得到极大的提升,为就读的幼儿创造更好的学习环境及条件。
江南大学宜兴校区

日前,江南大学宜兴校区项目建设学生公寓和学生食堂主体正式封顶,一号科研楼桩基已完成,正在进行承台施工。体育馆基本完成临时设施搭建,国际交流中心也将于近期正式招标。

作为宜兴产业强市的重要智力保障,江南大学的签约落户,不但弥补了宜兴高校资源空白,还将为宜兴引进更多的科技资源、科研人才,提升城市能级。
江南大学江阴校区(一期)


建设地点:江阴市夏港街道蔡西路南、夏东路西、澄杨路北侧用地面积:322416. 58平方米

江阴市人民东路小学


建设地点:江阴市澄江街道果园路东、澄山路南侧用地面积:40455.61平方米(详见规划选址图)

江阴市实验小学青阳分校


项目拟选位置:青阳镇规划道路东、青峭路西、规划道路南、青霞路北拟用地面积:总面积总面积29164平方米(建设用地29164平方米)
拟建设规模:不大于23331.20平方米

来源:无锡滨湖教育、锡山发布、无锡太湖新城集团、无锡市自然资源和规划局、江阴发布、无锡本地宝等
责编:亚梨