
本文将预计解决以下3个问题:
1、矿棉板都有哪些属性?
2、矿棉板按表面分类都有哪些?
3、矿棉板的做法节点都有哪些?
01.
这些矿棉板的基础知识
你都了解吗?
在学会运用一款材料前,你必须要充分的了解它的特点和属性,因此我们就先来矿棉板的特点以及相关属性。
矿棉板很早就应用于各种室内空间,矿棉板一般指矿棉装饰吸声板,是以矿物纤维棉为主要原料,加适量的添加剂,经配料、成型、干燥、切割、压花、饰面等工序加工而成的。


矿棉板都有哪些特性?
为什么矿棉板被广泛运用在室内中,看了它的性能和特征你应该就明白了:
· 降噪性:
矿棉板以矿棉为主要生产原料,而矿棉微孔发达,可减小声波反射、消除回音、隔绝楼板传递的噪声。
· 吸音性:
矿棉板是一种多孔材料,由纤维组成无数个微孔,声波撞击材料表面,部分被反射回去,部分被板材吸收,还有一部分穿过板材进入后空腔,大大降低反射声,有效控制和调整室内回响时间,降低噪声。
· 隔音性:
通过天花板材有效地隔断各室的噪声,营造安静的室内环境。
· 防火性:
防止火灾是现代公共建筑、高层建筑设计的首要问题, 矿棉板是以不燃的矿棉为主要原料制成,在发生火灾时不会产生燃烧,从而可有效地防止火势的蔓延,是最为理想的防火吊顶材料。
· 装饰性:

矿棉吸声板表面处理形式丰富,板材有较强的装饰效果。表面经过处理的滚花型矿棉板,俗称“毛毛虫”,表面布满深浅、形状、孔径各不相同的孔洞。
另一种“满天星”,则表面孔径深浅不同。

经过铣削成形的立体形矿棉板,表面制作成大小方块、不同宽窄条纹等形式。 还有一种浮雕型矿棉板,经过压模成形,表面图案精美,有中心花、十字花、核桃纹等造型,是一种很好的装饰用吊顶型材。
矿棉板都有哪些常见规格呢?
最为常见的矿棉板多数为方形,那么矿棉板还有其它的规格吗?下面给大家接绍一下其他的规格:
常用的产品规格有600×600mm、600×1200mm、300×1200m、300×1800mm等。厚度上也是可以根据不同需求制作的,一般为14~20mm厚。
02.
矿棉板有哪些
常见分类?
按照表面处理分类:
不同的厂家,对矿棉板表面处理的手法均有不同,但是,主流的厂家基本上都会有这些表面处理形式——毛毛虫孔、大小孔、高密度孔、喷砂和覆膜等。
当然,也有一些更为艺术性的处理,如表面条形凹槽板、方格板、瓦楞板等。
下面简单看看这些处理方式:
· 毛毛虫:

这是最常见的矿棉板花纹,吸音效果很好,开放型的表面处理方式,因其形状类似于毛毛虫而得此俗称。
· 针孔花纹矿棉板:

表面排布密集的针孔,增加矿棉板的吸音能力,也让矿棉板更美观。大针孔花纹矿棉板比较常见。
· 喷砂矿棉板:

喷砂矿棉板比较高档,是在矿棉板表面喷涂一层密集的砂状颗粒,表面与真石漆类似,适宜做各种造型,不仅美观,而且提高了矿棉板的防潮能力。
· 条形花纹矿棉板:

主要目的为吸音,需要基层,粘贴上去,达到美观、吸音等功能。
· 浮雕立体矿棉板:

也是粘贴为主,与条形板类似,表面凹凸不平,达到很好的吸音效果。
03.
矿棉板吊顶有
哪些固定方式?
· 明龙骨式:


△矿棉板安装实景图

因为明架吊顶一般情况下为不上人吊顶,龙骨底边露在板面外,一般称为明架吊顶。吊顶板板头企口,龙骨底边卧在吊顶板全口凹槽内,形成半明架,透称默级吊顶。


△节点图

△矿棉板明架吊装系统T型烤漆龙骨
从外形上看由于选配的T型龙骨型号不同,产生的效果也不相同,我们可以根据需求进行选择。

△明龙骨安装三维示意图

我们不难看出明架是龙骨外露式的吊顶方式,明架吊顶由于吊顶板是浮损在T型龙骨上,吊顶板可托起,便于检修。
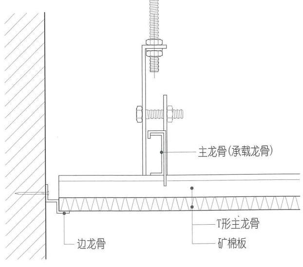
· 暗架T型龙骨吊顶

暗架T型龙骨也是咱们在项目中经常遇到的。采用T型龙骨将中开槽矿棉板逐一插入T型龙骨架中,板与板之间用插片连接的暗架法是不可开启的暗架方式。

△暗架T型龙骨吊顶平面示意图



△暗架T型龙骨吊顶三维示意图
这种安装方式需要做检查口,不建议在有设备检修需求的房间使用。

吊装时首先按规定要求吊装主龙骨,不上人吊顶采用C38主龙骨及配件。
· 明暗龙骨结合式
明暗龙骨结合式安装听到这个叫法,大家应该就有画面了。暗装式会让吊顶看上去闲的更精致,同时在做灯具和风口时,也可以更好的做好收口。



△节点详图



△明暗龙骨结合式安装三维示意图
s:重型灯具以及电扇、风道等有强力震动荷载的设备,需独立吊挂,严禁安装在吊顶龙骨上。
04.
矿棉板在室内的表现如何?
下面我们看下一些实景照片吧!

















好了,本期的主要内容讲完了,稍微总结一下今天的主要内容:
1、矿棉板一般指矿棉装饰吸声板,是以矿物纤维棉为主要原料,加适量的添加剂,经配料、成型、干燥、切割、压花、饰面等工序加工而成的。
2、矿棉板具有吸声、不燃、隔热、装饰等优越性能,广泛应用于各种室内吊顶。
3、不管矿棉板的节点和龙骨再怎么变化,但最基本的构造我们可以理解分为“明龙骨”与“暗龙骨”两种类型,不同的类型,匹配不同的龙骨,仅此而已。