作者:住西安

这次是近期粉丝朋友关注的几个曲江、航天城热点楼盘,跑盘路线是金地中心风华-万科公园大道-康桥悦蓉园-大华翰林华府。还是按照跑盘顺序一一介绍,最后再点评提供参考。
1
金地中心风华

金地中心风华项目位于西安市曲江新区裴家崆路以南、航天大道以北、新开门南路以东、西康高速西辅路以西,总占地面积112亩,分两个地块开发。是金地集团“风华系列”在西安的首次亮相,立志打造更时尚的东方美学。
小区规划篇:
占地面积:74674.3㎡
建筑面积:269087㎡
容积率:2.8
绿化率:35%
物业类型:高层、花园洋房,别墅
总户数:1526户
车位配比1:1.3
物业公司:金地物业
物业费:2.0元/㎡/月

在售地块规划:
目前开发的为项目一期(新开门南路以东,航天大道以北),总建筑面积约27万㎡,住宅面积约20万㎡,商业面积约5000㎡。共规划19栋住宅,1-5#楼为高层产品,6-19#楼为洋房产品。
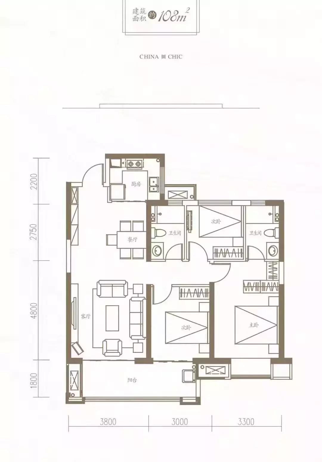
预计2019年4-5月份推售4#5#楼,为精装修高层产品,约528套房源,户型面积约108-128㎡,预计价格1.4万㎡。

项目配套篇:
交通配套:
项目位于西安市曲江新区裴家崆路以南、航天大道以北、新开门南路以东、西康高速西辅路以西,距离地铁四号线金滹沱站2km,903路区间,918路,920路,k920路经过,连接雁塔区,碑林区和长安区;10分钟即可沿新开门南路到达绕城高速,通达全城。
教育配套:
项目2公里范围内有曲江小学、曲江中学、曲江三小、曲江四小、航天城第一小学、春临小学和品格大华幼儿园、航天城第一幼儿园、曲江香都幼儿园;其中与曲江小学、曲江中学仅一街之隔;距离曲江三小仅980m,教育资源丰富。
医疗配套:
距离西安市人民医院1公里、西北妇女儿童医院2公里,均为公立三级甲等医院;医院学科建设齐全,专业特色突出。
景观配套:
曲江文化运动公园占地13.1万平方米,以运动为主题,以国际化、人文化、生态化为设计理念,引领时代生活的运动风尚,既有适合中老年人的健身步道、健身广场,更有用于青少年儿童培训的击剑馆、冰球馆、足球场、网球场等体育场馆。
户型分析篇:

优势:
户型方正,南北通透采光良好;
动静分区,布局合理;
餐客一体,营造开敞空间布局;
北向次卧可根据需求自由调整,灵活多变;
观景阳台,连接客厅客卧,视野开阔;
卫浴干湿分离;
套间卧室配有卫浴、衣帽间、飘窗,自带私密空间;
劣势:
走廊过道存在浪费面积。

优势:
全明空间,方正舒适三房;
南向7m景观阳台,采光良好;
卫浴干湿分离,设计合理;
功能阳台,设下水系统,居家更方便;
U型厨房,动线合理,空间利用率较高;
劣势:
玄关预留空间过小,实用性较差;
观景阳台存在浪费面积。
【跑盘点评】
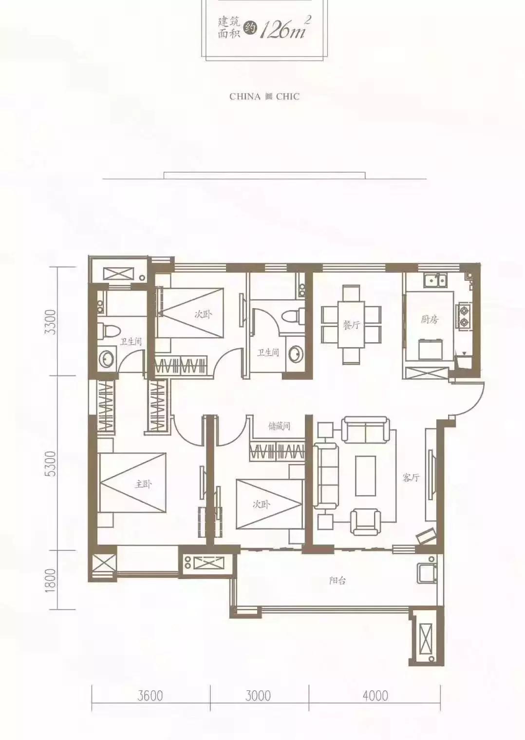
金地中心风华位于曲江二期南边界,航天大道北侧,小区有高层和洋房产品,精装高层面积126,113两种,两梯四户,总高33层,全部南北通透,中间带有连廊,下一批5号楼预计四月份拿预售证。上次开盘高层均价14000-14500,还是比较贵。小区北边是公办曲江中小学,距离最近的地铁口四号线金呼沱站2.2公里。
总结:价位比较高,主要卖点是属于曲江二期,能享受到曲江教育资源。小区要注意的不利因素是人车不分流。
2
万科·公园大道

万科·公园大道位于西安市航天基地航天大道与航天东路十字西南角,占地约5万㎡,总建筑面积19.5万㎡,共计房屋957户。以低容积率、高绿化率的低密社区形态为业主提供更舒适的居住体验。
小区规划篇:
占地面积:49950㎡
建筑面积:195000㎡
容积率:2.8
绿化率:40%
物业类型:板式高层、多层
总户数:957户
车位配比:1::1.6
物业公司:万科物业
物业费:2.2元/㎡/月
项目规划篇:
规划建设13栋楼,957户。其中3栋高层、8栋洋房、1栋公寓、1栋廉租房,还有约2万㎡的商业——“天空之树”商业街。
1-3#楼为高层,总高34层,2个单元,2梯3户设计
4-11#楼为洋房,总高9层,3个单元,1梯2户设计
12#、13#楼为公寓和廉租房。
目前3#、10#、11#楼已售,预计2019年全年销售1#2#、4-9#楼,户型面积约99-143㎡。
项目配套篇:
交通配套:
公交线路:920路、525路、903路、918路
地铁线路:楼盘距离地铁4号线 航天大道站约2公里;
教育配套:
西安市曲江小学、曲江三小、曲江四小、曲江池小学、曲江南湖小学、金泘沱小学、曲江三中、西安市曲江中学、航天第一幼儿园、航天小学、航天城第一小学、航天第一初级中学、航天中学等;
商业配套:
金辉环球广场 、金地广场、正荣彩虹谷;
医疗配套:
西安市人民医院、西北妇女儿童医院、航天总医院;
景观配套:
曲江文化运动公园、曲江池遗址公园,寒窑遗址公园、唐城墙遗址公园,西安新植物园、杜陵遗址生态园、航天中湖公园、星河运动公园、航天揽月阁广场;
内部配套:
项目内部配套“天空之树”商业街、约500米的有氧慢跑道,约300米的热身短跑道,星座运动场、星际探险乐园等。
户型分析篇:

优势:
整体户型方正,活动区域开阔,居住舒适度高;整个空间全明通透,采光良好,同时利于居住空间通风;整个户型空间布局合理,做到了干湿分离,方便后期生活;居住体验便利。
劣势:
纯南户整体室内通风不畅;餐厅尺寸过于紧凑,后期活动空间狭小;卫生间无窗,不利通风采光;入户门朝向客厅,私密性差。

优势:
各个空间户型方正,后期空间利用率高;整个空间全明通透,采光良好,同时利于居住空间通风;居室布局合理,通风良好,动静分离,兼顾到了卧室和卫生间的私密性;
劣势:
北向卧室窗户尺寸较小,影响欣赏社区景观;如厨房排烟做不好,油烟易飘向客厅,影响室内空气质量。

优势:
各个空间户型方正,后期空间利用率高;整个空间全明通透,采光良好,同时利于居住空间通风;居室布局合理,通风良好,动静分离,兼顾到了卧室和卫生间的私密性;
劣势:
主卧卫生间干湿不分离,次卫生间为暗室,影响采光、通风,易产生异味儿,影响室内空气质量。

优势:
各个空间户型方正,后期空间利用率高;整个空间全明通透,采光良好,同时利于居住空间通风;居室布局合理,通风良好,动静分离,兼顾到了卧室和卫生间的私密性;客餐一体,活动区域开阔;厨房U型操作空间,方便后期使用;次卫干湿分离设计。
劣势:
厨房窗户尺寸偏小,影响室内通风,油烟易扩散至客厅。
【跑盘点评】
万科公园大道,位于航天城航天大道与航天东路十字西南角,距离四号线航天大道站2公里。是一个占地不大的小面积楼盘,北临首创楠香郡,距离航天城公办中小学有一段距离。
33F/34F高层,带装修两梯三户,99-142平,均为三室,均价12500元。8F/9F洋房,带装修两梯两户,143平,四室,均价14000元。
总结:主要卖点是万科品质有保障,与金地中心风华一路之隔,洋房和金地的高层一个价。
不利因素:属于航天城板块,学校比曲江弱一些,小区内有一栋安置楼。
3
康桥·悦蓉园

康桥·悦蓉园项目系落地西安的首个项目,总占地124亩,总建面31万㎡,容积率2.8,建筑密度24%,属中等规模、中低容积、中低密度,洋房为主的中高端改善型项目。
小区规划篇:
占地面积:82666.71平方米
建筑面积:310000平方米
容积率:2.8
绿化率:40%
物业类型:高层、小高层、洋房
停车位:车位数量2367个,地下2130个,地上237个
总户数:1738户
物业公司:康桥物业
物业费:高层、小高层1.5元/㎡·月 ,洋房未定

项目规划篇:
康桥·悦蓉园项目共规划4栋33层2T4高层,1栋17层2T2小高层,10栋1T2洋房7-9层不等;
康桥·悦蓉园项目首先推出的是16#精装高层33F,2T4,2个单元,264套,95,117,134㎡11.12#毛坯洋房7F,1T2,3个单元,84套,144㎡;
预计3月份17#楼将会销售,户型面积约95-129㎡,约264套房源,预计均价12691元/㎡。

项目配套篇:
区位优势:
位于航天基地一期核心位置 ,北边紧邻曲江二期,CCBD成熟板块,区位优势明显;
交通配套:
三面临路,通达性好。西侧京东大道未来5分钟直达曲江二期。地铁4号线飞天路站900米,18年底通车;
教育配套:
与航天一中、一小仅一路之隔,项目自带康桥社区幼儿园,教育配套完善;
医疗配套:
东侧1公里范围在建西安市人民医院,周边有航天总院及西北妇幼等三甲医院;
商业配套:
项目自带1.7万㎡独栋商业,直线3公里范围有金辉环球广场,碧桂园商业、宋城商业等助力区域繁华。
户型分析篇:

优势:
各户型空间方正,后期利用率高;三面宽朝南向,采光通风面大;厨房U型操作台,方便后期使用;卫生间干湿分离设计。
劣势:
入户门无缓冲,室内私密性差;纯南户,通风效果一般。

优势:
整体户型空间方正,后期方便家居摆放;南向宽境阳台,社区景观尽收眼底;南北通透户型,利于室内空气流通;客餐一体,活动区域开阔;卫生间干湿分离,便于后期使用;
劣势:
进深狭长,影响北向房间采光。

优势:
整体户型方正,不浪费面积;南北通透设计,通风采光效果好;客餐一体,活动区域空间阔绰;南北双阳台,生活空间得到延伸;L型厨房操作间,符合人居习惯;卫生间干湿分离设计。
劣势:
室内动线过长;开放式厨房操作间,油烟易飘至客厅。

优势:
各个户型方正,利用率高;全明户型,居住舒适度高;南北通透设计,通风采光效果好;客餐一体,活动区域空间阔绰;南向阔景阳台,社区景观垂手可得;入户玄关设计,私密性好;卫生间干湿分离设计;厨房与客厅在设计上巧妙避开平行,油烟可控性好。
劣势:
次卫门朝向客厅,私密性差。
【跑盘点评】
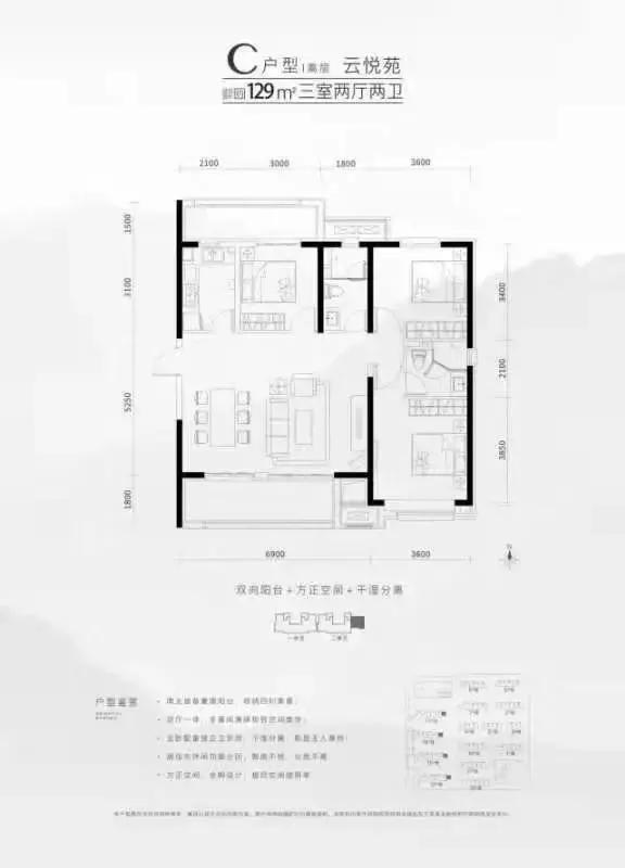
康桥悦蓉园,位于航天城京东大道与飞天路十字东北角,是近期关注度很高的热点盘,有高层、小高层、洋房。33层高层96-130平,两梯四户带连廊,带装修均价12700左右。7层洋房144-160平,毛坯均价13700左右。
下一次开盘在三月份,开高层17号楼。上次摇号十分火爆,刚需中签率70%,普通30%,预计下次中签率不高,有兴趣的快快准备资料。
总结:主要卖点是康桥悦蓉园距离地铁四号线飞天路站800米,小区北边过马路就是航天一小、航天一中。康桥是开发商进入西安的第一个项目,装修标准较高,厨房烟机灶具品牌是方太老板的,个别柜子也带。
不利因素:同样因为是开发商第一个进入西安的项目,担心品质没有保障,另外小区内有一栋安置房,影响洋房品质。
4
大华翰林华府

大华翰林华府项目,即大华锦绣前城,位于神舟四路与启航路交汇处,是上海大华集进入西安的第三大典范力作,大华锦绣前城总建面约80万㎡,一期由7栋景观高层和8栋花园洋房、1栋幼儿园组成。
小区规划篇:
占地面积:69562平方米
建筑面积:136099.94平方米
容积率:3.2
绿化率:35%
物业类型:高层、洋房
总户数:1834户
物业公司:华晟物业
物业费:高层1.9元/㎡·月 ,洋房未定

项目规划篇:
项目分东、西两个地块开发,产品分为洋房和高层产品,首推1号楼高层96-139㎡产品,23层,2梯4户共2个单元。
西安市第83批商品住房价格公示,大华翰林华府5#6#9#10#楼洋房产品赫然在列,层高8-10层,2-3个单元,都是1梯2户设计,户型面积约142-168㎡,均价约10912-11880元/㎡,共172套房源。
项目配套篇:
交通配套:
公交线路:189/177路公交至神舟四路口站下车;
地铁线路:距离地铁4号线东长安街站约750米,神舟大道站约1.1公里;
教育配套:
西安航天城第一幼儿园、西安航天城第二幼儿园;
中小学西安航天城第一小学、西安航天城第二小学、西安交通大学附属小学;
商业配套:
长安广场、真珠港购物中心、华润万家购物广场;
医疗配套:
西安市人民医院、长安医院、长安中医院、航天总医院、西北妇女儿童医院;
景观配套:
航天中湖公园、星河运动公园、西安航天文化生态园。
户型分析篇:

优势:
各个空间户型方正,方便室内家具布置;全明户型,各部分空间均有窗,可保证整体空间采光和通风,居住舒适度好;整体空间布局合理,能够保证动静分离和居室通风,方便使用;各个功能区的尺寸比例规范,布局合理,能很好地满足日常功能需求,整体空间开阔,采光充足,居住舒适度好;
劣势:
入户无缓冲,室内私密性差;开放式厨房,油烟易污染室内空气;卫生间干湿没有分离,后期居住体验不佳;室内动线长,有浪费面积之嫌。

优势:
各个空间户型方正,后期空间利用率高;全明通透户型,居住舒适度较高,整个空间采光充足,利于后期居住;整个户型空间布局合理,做到了干湿分离、动静分离,方便后期生活;卧室厨卫等各个功能区的面积大小都比较合理,居住体验便利,整体舒适度高;
劣势:
卫生间未做到干湿分离设计;进深较长,影响北向房间采光;次卫面积过大,浪费面积。

优势:
各个空间户型方正,后期空间利用率高;全明通透户型,居住舒适度较高,整个空间采光充足,利于后期居住;整个户型空间布局合理,做到了干湿分离、动静分离,方便后期生活;卧室厨卫等各个功能区的面积大小都比较合理,居住体验便利,整体舒适度高;
劣势:
次卫门朝向客厅,私密性差。

优势:
各个空间户型方正,后期空间利用率高;全明通透户型,居住舒适度较高,整个空间采光充足,利于后期居住;整个户型空间布局合理,做到了动静分离,方便后期生活;南北双阳台,整体舒适度高;
劣势:
同样是卫生间,没有做到干湿分离,影响后期居住体验。
【跑盘点评】
大华翰林华府是备案名,宣传名叫大华锦绣前城,是同一个楼盘。位于航天城神舟四路与启航路十字东南角,距地铁四号线神舟大道站500米,交大附中航天分校旁边,学区应该是航天二小。
产品有高层、小高层、洋房,34层高层两梯四户,面积98-144平,21层小高层两梯四户,面积99-129平,带装修备案均价11800元/平。洋房毛坯备案均价12500元/平。
装修没有看到,样板间已经关闭了,据说装标还可以,厨房烟机灶具是老板,卫生间马桶卫浴五金是科勒。也是很火爆的盘,摇号中签率刚需70%,普通30%。毕竟确实便宜。
总结:主要卖点:性价比超高,1万2的洋房哪里找。户型不错,比大华公园世家好。
不利因素:太远了,周边配套还不完善,适合在附近工作生活的人群。