长年在外工作的屋主夫妻,随着迎接宝贝女儿的诞生,决定自己的城市定居开启人生新章节,曾经到访丹麦旅行的他们,期盼实现北欧随性且舒心的日常,于是心心念念新房的装修也要北欧随性简约的风格。
室内面积128平米/格局3+1房2厅2卫/居住人数2大2小

<屋主需求>
1.对Loft楼中楼情有独钟,指定北欧纯净简约风格;
2.女主人热爱烘焙,需要开放且宽敞的作业平台,以便未来与亲友共学料理;
3.男屋主期盼拥有一处阅读、听音乐与娱乐的放松空间;


丰富的异国生活体验,造就夫妻俩对国外loft通透格局情有独钟,因而被坐拥高挑视野、透亮日光128平米的楼中楼深深吸引,在与设计装修师傅讨论过后,决定拆除铁梯、隔间回归原始毛胚状态,改以旋转圆梯、楼井串连互动。

全室采用纯白基调为主色调,温润木质与玻璃镜面营造轻暖气息,一楼以女主人梦想的厨房为核心,二楼则化为男屋主专属娱乐天地,使各楼层均具备十足功能与美感,让家更贴近生活样貌。

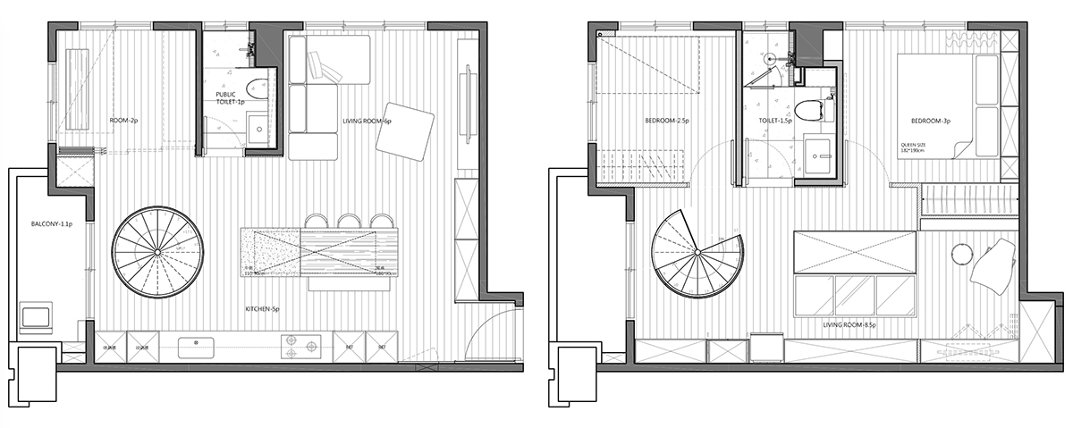
楼中楼必须先决定出影响垂直动线的楼梯位置,再来调整二楼封闭式卧房,进而从上至下敞开平面楼层的规划,开放公共空间则依据屋主需求与使用习惯,划分合宜格局。

为真实的呈现北欧生活感,调整了黑灰白比例,将80%白色呈现在大面积壁面、收纳柜与楼梯结构,经由金属、大理石丰富层次变化,考量上梁较为低矮压迫,跳脱间接照明与封板手法,裸露灰泥纹理修饰,其他以温润木地坪、黑色元素与玻璃镜面砌筑更为的舒心感。

1.玄关设计: 玄关为了避免开门见窗窘境,以厨房一字型厨柜做为回避,使空间感更具层次感,并运用纯白门板修饰变电箱,形成简洁连贯视感,对向的墙面以大面积镜面,引入日光消除廊道紧促感。

2.餐厨设计: 女屋主讲求烹调环境,于是一楼布局以餐厨为设计轴心,拓展无碍的动线视野。

超耐磨木地板入室,一字型橱柜妥善将收纳平台、电器高柜与层柜整并,为了维系干净的厨房观感,活用纯白门板隐匿冰箱、抽油烟机与洗碗机等配备,塑造简洁下厨空间,赛丽石台面内凹配置结晶石水槽,选配银灰ARWA水龙头五金,精致内敛大气。

得知女屋主热爱烘焙,因而加入大理石纹中岛拓展工作台面,一家人可以一起动手做的美味的食物,下方设计有内推开放木质层柜,随手储放锅碗瓢盆简单方便。

另一侧是餐桌订制Z字脚座木质餐桌,不受限制容纳任何椅凳,选搭鹅黄、粉蓝色等餐椅,享受活泼悠闲的用餐时光。

从二楼贯穿至餐厅的楼井,串连一家人的亲密交流的区域,并悬吊多盏义大利Foscarini雾白玻璃吊灯,不仅增添日夜明亮度,圆润的漂浮造型,宛如从天轻轻洒落的棉花糖的意象。

3.客厅设计: 纯白收纳柜将日用品与鞋柜完善并整一起,柜内加装旋转五金,放大两倍鞋履收纳量,考量天花横梁较低矮压迫,用灰泥涂料修饰化解。

客厅主要诉求简约舒适,以雕刻白大理石布满电视主墙,用滑面质感衬托自然日光,下层摆置极简影厅矮柜,纳入男主人喜爱的B&O音响,完整温润沉静的景致,其中选择充裕座深的米灰沙发,当阳光经由百叶窗倾洒而入,带动一楼明亮度。

4.旋转楼梯设计: 因为拥有双面绝佳采光,舍弃旧有衔接一二楼的楼梯设计,改以节省空间的旋转圆梯取代,还原挑高明亮的视野。

稳固圆铁柱矗立其间,以犹如缎带的白色环状结构往上蔓延,细心考量实际使用安全,扶手除了以纤细线条减轻负重感,并交错运用扁铁与圆条围绕包覆,来确保小孩子的行走安全性。

举步至二楼则转变为圆弧无框玻璃围栏,延展无阻断的视线。

由于男主人身形较为高大,特别精算木质脚踏板间距高度与尺寸,强化安稳牢固、方便走动的梯间构造,使圆梯兼备安全与美学。

5.多功能休憩室设计: 为顺应男主人期盼,二楼除了卧房,多功能空间以无框玻璃筑起安全围栏,楼井局部以玻璃做为地坪,营造清透空中步道,让爸妈随时可看顾小孩一举一动,也拉近两层楼独立且亲密的距离。

邻窗以大面收纳柜妥善隐藏mini bar,井然有序的摆放着屋主藏酒与器皿,白色烤漆铁件切齐上梁,延伸为轻盈的落地书墙,强大打的足够容纳孩童玩具、藏书与亮眼SMEG冰箱,显现功能十足且不厚重的巧思。

内侧续接折叠门扇,敞开后即蜕变为电视墙格柜,围筑男主人与孩子游戏共乐,看动画片和打电动的乐活天地。

后端则紧贴墙面以白色木作拓增开放层架,对映隐藏于门后的储藏室,展现大容量储放机能。

6.主卧设计: 隐于暗门设计的主卧,考量夫妻俩的生活习惯,舍弃繁杂设计元素,以舒适简约的睡寝氛围为主。

床头背墙为了消解风水疑虑,从横梁延伸出悬吊柜与置物平台,大幅提升使用便利度,邻侧则以门片隐匿双人衣柜,营造洁白极简的一体视感。

7.卫浴设计: 顾及耐脏污和日常的清洁需求,浴室墙面与地坪皆铺展仿石材磁砖,杂点纹理、渐层云理砌叠轻柔基底,经由玻璃切割开来的干湿分离,地面采用无门槛设计,地面降板处理使流水顺畅排除,不易残留积水造成湿滑,此外,活用内凹的畸零空间增辟层架,妥善置放毛巾、盥洗用品。

这样的楼中楼新房装修设计大家觉得怎么样呢?希望能够对大家有所帮助。最后谢谢大家看完!