
案例工程简介:
1、基础结构形式:人工挖孔桩、长螺旋挖孔桩、独立基础、条形基础、承台基础。
2、主体结构形式:框架结构、钢混结构。
3、孔桩部分:长螺旋桩及人工挖孔桩桩身钢筋采用焊接。
4、基础及主体部分:φ16及以上的钢筋使用机械连接,直径小于16的使用绑扎搭接。
01
1、基础底板钢筋绑扎施工流程:

1)在底板钢筋绑扎前,先按照设计要求钢筋间距,算出底板需用的钢筋,根数,在垫层上放出底板钢筋摆放的位置线,(包括地梁钢筋位置线)和墙柱插筋位置线。
2)承台钢筋绑扎先铺底板下层钢筋。根据设计和规范要求,决定下层钢筋哪个方向钢筋在下面,参照16G101-1第66-70页安装,绑完下层钢筋后,按间距0.8m 左右设置钢筋马凳,马凳及附加钢筋应支设在下层钢筋网上,不得直接落在保护层,在马凳上摆放纵横两个方向定位钢筋,钢筋上下次序及绑扣方法同底板下层钢筋。马凳高度H=承台高—混凝土保护层厚—上层双向钢筋直径—下部钢筋单向钢筋直径,桩承台采用下图的钢筋马凳)间距800mm 左右设置,如下图:点击>>工程资料免费*载下**



马镫使用14的钢筋进行加工
2、基础底板绑扎方法
在绑底板的同时做好底板梁的绑扎,即先先绑东西向后绑南北向的方法排列钢筋。其接头位置“下层铁在跨中,上层铁在支座”。梁板式基础部位钢筋接头必须按50%错开,要严格按照配料单的顺序及位置准确排放基础底板下铁保护层为40(50)㎜,上铁为30mm。板上、下铁中间用马凳铁支起,间距800mm,马凳高度=底板厚-上下保护层-上层双向钢筋直径-下层单向钢筋直径。

马镫使用14的钢筋进行加工
3、底板钢筋的施工要求:钢筋绑扎要满扣绑扎且相邻绑扣为“八”字扣,扣头应向结构板内侧弯入。在绑扎钢筋前要用墨线弹出钢筋摆放间距线,按线绑扎。上层钢筋绑扎前要摆设好马凳铁,再绑上铁。
4、本工程基础底板(防潮板)厚度为350mm。
02
工艺流程:弹柱子线 → 剔凿柱混凝土表面浮浆 → 修理柱子筋 → 套柱箍筋 → 安装竖向受力筋 →画箍筋间距线 → 绑箍筋 →安装垫块。
1、按图纸要求间距,计算好每根柱箍筋数量,在柱子钢筋上用粉笔划出箍筋间距。
2、从上往下套箍筋,将其与主筋采用缠扣绑扎。箍筋与主筋垂直,箍筋转角与主筋交接点均要绑扎,主筋与箍筋非转角部分的相交点也应全绑扎。箍筋的接头(即弯钩叠合处)应沿柱子竖向交错布置。
3、柱筋保护层:使用塑料卡环,,按照竖向间距500mm卡在柱角位置,水平方向按照400mm 设置,以保证主筋保护层厚度的正确。
4、绑扎端柱时应注意其锚固必须满足设计图纸及国标16G101-要求。
5、在柱、梁的交接点处,柱的箍筋与梁的主筋应配套进行,将梁主筋穿好并绑扎成型后,再绑扎该处的柱箍筋。

6、按抗震要求,柱箍筋端头应弯成135°,平直部分长度不小于10d(d为箍筋直径)。
7、柱基、柱顶、梁柱交接处箍筋间距应按设计要求加密。柱上下两端箍筋应加密,加密区长度及加密区内箍筋间距应符合设计图纸要求。如设计要求箍筋设拉筋时,拉筋应钩住箍筋,见图:
点击>>工程资料免费*载下**

拉筋布置示意图
柱子优先采用塑料卡环垫块,其纵横间距不得超过600mm。砖墙拉接筋伸出部分向上弯起,紧贴在模板之上,拆模后,砖墙砌筑之前将其剔出;柱插筋筋应至少设置定位支架定位支架用钢筋焊制。
框架柱钢筋绑效果扎示意图如下:

03
本工程梁断面尺寸:250*400、250*500、200*500、250*600、300*800、200*300、250*800、200*400
1、首先在梁模板上按图纸要求画好箍筋间距。
2、穿框架梁主筋套入箍筋 穿次梁主筋并套好箍筋放主、次梁架立筋隔一定间距将梁底主筋与箍筋绑牢绑架立筋最后绑扎主筋。
3、箍筋弯钩的叠合处,在梁上表面应交错绑扎,箍筋弯钩为135°梁钢筋锚入柱内长度应符合设计要求。
4、主、次梁钢筋,要在主筋下垫好垫块,以保证主筋保护层的厚度。
5、本工程梁的技术要求:
当梁与柱墙外皮齐平时,梁外侧纵向钢筋应稍作弯折置于柱墙主筋内侧,并在弯折处增加二道梁箍筋,其间距50mm。
当梁净跨大于5m时模板应按跨度的2~3‰起拱,跨高比大者取大值;悬挑梁当L≥2m时起拱3‰。
主次梁相交处主梁附加筋构造见结施图纸附图二;当次梁高度大于主梁时,主梁附加箍筋构。
04
1、工艺流程
清理模板→模板上画线→绑板下部受力钢筋→机电管线安装→设马凳筋→绑上层钢筋→验收→浇筑砼
本工工程地上主体板厚为:100mm、120mm、150mm、160mm。
(1)清扫模板上刨花、碎木、电线管等杂物。用粉笔在模板上画好主筋,分布筋间距。
(2)画好间距,先摆受力钢筋,后放分布筋、预埋件、电线管、预留孔等及时配合安装。
(3)钢筋搭接长度、位置要符合施工规范及图纸设计要求。
(4)绑扎一般用八字扣,除外围两根筋的相交点全部绑扎外,其余各点可隔点交错绑扎(或全部绑扎)。如板为双层钢筋,两层筋之间须加钢筋马凳以确保上部钢筋的位置。为确保上部钢筋的位置,在两层钢筋间加设马凳铁间距800mm。h=楼板设计厚度—上下保护层—上层双向钢筋直径—下层单向钢筋直径。

马镫使用12的钢筋进行加工
(5)绑扎负弯矩钢筋,每个扣均要绑扎。绑扎时在负弯矩筋端部拉通长线进行就位绑扎,保证钢筋端部平齐,在同一条直线上。楼板钢筋保护层采用混凝土垫块间距800mm呈梅花型布置。
2、混凝土现浇顶板钢筋的技术要求:
(1)板的底部钢筋,短跨钢筋放下排,长跨钢筋放上排,并尽可能沿板跨方向连跨通长配置。板面钢筋在角部相交时,短跨钢筋放在上排,长跨钢筋放在下排。底部钢筋需要截断时断点应设在支座处。
(2)当板底与梁底平时,板的下部钢筋伸入梁内,并置于梁下部第一排纵向钢筋之上。
(3)板上孔洞除结施图已标注的大洞外,尚应配合各专业图预留,当孔洞尺寸不大于300时,钢筋绕过洞口,参照图集16G101-1第110页;孔洞尺寸大于300小于1000时,应按参照 16G101-1图集第111页,采取洞边加强措施。
(4)水、电管道井范围内待设备安装完毕后封板,梁(墙)中预留钢筋。钢筋直径、间距详各层结构平面图。
(5)楼面板负筋的架立筋采用一级钢6.5@200;分布筋采用一级钢6.5@200(板厚≤100mm)、一级钢6.5@180(板厚110~120mm)、一级钢6.5@150(板厚130~140mm)、一级钢8@200(板厚150~160mm);屋面板无负筋范围均应设置一级钢6.5@200(双向)分布钢筋与板负筋
搭接或交错连通。
(6)当板短向跨度≥3m时,模板应按跨度的2~3‰起拱。
(7)填充墙下无梁时,应在板中增设2根三级钢12通长钢筋(置于板底),两端锚入支座La。
05
铺设楼梯底模→画位置线→绑平台梁主筋→绑踏步板及平台板主筋→绑分布筋→绑踏步筋→安装踏步板侧模→验收→浇筑砼
在楼梯段底模上画主筋和分布筋的位置线。
根据设计图纸主筋、分布筋的方向,先绑扎主筋后绑扎分布筋,每个交点均匀。
06
本工程地下室外墙厚度为250mm。
1)施工工艺流程:修整预留钢筋→绑扎垂直梯子铁→绑扎垂直钢筋→绑扎定位横筋(梯子铁)→按照梯子铁的分档绑扎横筋→挂绑拉钩→挂绑垫块
2)本工程剪力墙均为双排双向钢筋,双排钢筋间用拉筋呈梅花形拉接(拉筋间距详见结构设计总说明)。地下室外墙采用机械连接,地上部分仍采用搭界连接,在同一截面钢筋接头的面积小于钢筋总面积的50%,竖向筋相邻接头中心位置应错开35d,水平筋相邻接头端头位置间距应不小于500mm,墙竖筋横筋起步筋距节点边50㎜。地下室外墙在两层钢筋间设置撑铁,以固定钢筋间距,撑铁用直径12mm的钢筋制作,长度等于两层网片的净距。剪力墙连系梁上、下纵向钢筋伸入墙内的锚固长度不得小于设计要求及施工规范。
3)绑扎前要将顶板断面的软弱层剔凿完成,钢筋上的水泥浆用钢丝刷刷净才可进行绑扎施工。剪力墙水平钢筋在两端头、转角、十字节点、连梁等部位的锚固长度及洞口周边的加固筋要符合规范要求(抱肩)。对人防(支座)部分的墙体钢筋及洞口加筋必须按图纸要求做好,保证人防抗冲击波的能力。
4)对于剪力墙与楼梯休息平台、空调板、外飘窗板及坡道板面的预留钢筋要按标高统一放置,与墙立筋及水平筋绑好,并与墙面保持平行,预留钢筋锚固长度符合设计及规范要求。由工长、质量员验收合格后,方可先合靠近预留筋一侧的模板。合模时随时观测预留筋位置是否移动,若出现位移应立即派人隔着墙筋在另一侧修整好后,才可合另一侧模板进行固定。
5)剪力墙与框架柱连接处的剪力墙水平筋要按构造要求锚固到框架柱内。
6)混凝土施工时要留有钢筋工看守,对移位钢筋及时调整,以保证钢筋的位置准确、无偏移。
6、部分墙体钢筋节点构造做法见图集说明。
7、垫块:垫块使用要符合施工规范要求,其厚度要满足规范中钢筋混凝土保护层厚度,正确使用垫块,确保钢筋保护层厚度。梁、板构件拆模后根据《施工试验计划》对梁、板构件的钢筋保护层进行试验。
8、车库外墙孔洞补强钢筋构造参照16G101-1图集第83页进行设置

07
(1)除图中有专门说明外,混凝土结构构件的环境类别的划分详见图集(16G101-1)第56页,钢筋的混凝土保护层最小厚度如下表:

注:保护层厚度不应小于钢筋公称直径,当梁柱中纵向受力钢筋保护层厚度大于40应在混凝土保护层中构件表面10处全面增设φ4@200*200钢筋网片。独立基础、条形基础及地梁的保护层厚度为40mm,地下室及水池、长螺旋桩、人工挖孔桩、桩帽、地梁、承台的保护层厚度为50mm。
(2)梁、板中预埋管的混凝土保护层厚度应不小于25mm。
(3)各构件中可采用不低于相应混凝土构件强度等级的素混凝土垫块控制主筋保护层厚度。
(4)支承防火分区分隔墙的梁及与其有支承关系的梁、防火分区分隔墙顶梁均应采用厚度为30mm的水泥砂浆抹面,防火分区分隔墙的位置详建施各层平面。
(5)各构件保护层技术措施
1、柱钢筋保护层技术措施
保护层采用成品塑料卡,在柱子模板合模之前,按照竖向间距500mm卡在柱角位置,水平方向按照400mm设置。
柱子定位筋措施
制作方法:采用14二级钢焊接,按照柱子主筋间距焊接卡槽,卡槽应比钢筋直径略大,内径制作尺寸为H-2d-2h(d为柱子主筋直径,h为柱子保护层厚度)。
使用说明:柱子定位筋设置在楼板结构标高以上300㎜~400mm处,在浇筑梁板砼之前将定位钢筋套在柱子上,绑扎牢固,待楼板混凝土浇筑完毕后取下,周转使用。
柱定位筋大样图:

2、板钢筋保护层技术措施
1)、板筋上铁铺放在专用马凳上,马凳的钢筋直径应确保承受荷载不变形,马凳位于上下铁之间成梅花形布置,马凳与上下铁之间必须绑扎牢固。马凳筋直径取12,间距800mm布置。马凳示意图如图所示:

2)、下铁(垫块)
板下铁钢筋保护层措施:根据设计及规范要求的混凝土保护厚度,铺设板下排钢筋混凝土垫块,安装简便,效果良好。

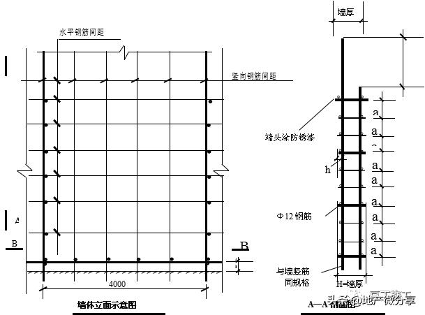
3、墙体保护层技术措施(水平、竖向梯子筋)
1)、水平梯子筋
制作方法:按照混凝土墙体竖向钢筋间距和墙体宽度,采用12或14二级钢焊接。要求梯凳筋两端必须用砂轮切割机切平,与墙同宽焊接在梯架钢筋上,梯架筋间距为H-2d1-2d2-2h(d1为竖向钢筋直径,d2为水平钢筋直径,h墙体保护层厚度),每两根梯凳筋控制一根墙体竖向钢筋,使其不偏位、不跑位。
使用说明:用来控制墙体竖向钢筋间距,一般放置在距墙模板上口100mm处,使竖向钢筋置于两梯凳钢筋中间,并与墙体竖向钢筋用绑扎丝绑牢,待混凝土浇筑完毕后拆除出来周转使用。
水平梯子筋大样图:

2)、竖向梯子筋
制作方法:梯架钢筋与墙竖向钢筋同规格、同牌号,要求2根梯架钢筋一长一短,留出绑扎搭接接头错开距离L,上中下至少设置3根与墙同宽的梯凳筋(兼做撑筋),两端必须用砂轮切割机切平并涂上防锈漆,其余梯凳筋长度应为H-10mm(即梯凳筋端头保护层为5mm),梯凳筋与梯架筋点焊即可。
使用说明:用来控制墙体水平钢筋间距,梯子筋距柱边50cm左右开始设置,设置间距不大于4m,且每面墙至少设置两道。绑扎墙体水平筋前,先将本层竖向梯子筋与下层甩出的梯子筋绑扎固定好(竖向梯子筋位置可不设墙体竖向钢筋,由梯子筋代替,钢筋强度等级提高一级),根据竖向梯子筋分档间距安放水平筋,调平调正,绑扎牢固。
竖向梯子筋大样图:


08
1、当梁的腹板高度≥450mm时,在梁的两个侧面应沿高度配置纵向构造钢筋,其间距≤200mm;梁的两个侧面纵向构造钢筋除各设计图纸已注明者外其余均按照附图一配置:

2、主次梁交接处未特别注明者均按照附图二要求配置附加横向钢筋:

3、悬挑梁(XL-)配筋构造大样:

4、梁上开洞补强大样:

5、现浇板支座处配筋中间支座处板顶标高不同时,负筋在梁或墙内的锚固应满足受拉钢筋最小锚固长度的要求,构造详见附图五:

6、外墙转角处板上部附加钢筋、内墙阳角处板上部附加钢筋、悬挑板阳角附加钢筋配置分别详见附图六(1)、(2)、(3):

未尽构造说明参照16G101-1第112页
7、砖填充墙与构造柱拉结详见附图八,应先砌填充墙后浇构造柱:

8、构造柱与梁的连接详见附图九:

9、其他节点大样做法:
1)板支座负筋长度做法要求:

2)无肋挑檐转角(阴角)配筋:

3)构造柱墙体配角大样:

4)楼梯柱设附加箍筋和吊筋:

5)框架柱水平加腋大样:

7)板开洞BD与洞口编加强钢筋构造(洞口边无集中荷载):

8)矩形洞边长和圆形洞直径大于300但不大于1000时补强钢筋构造:

9)现浇板中管线处理大样(管线布置祥电施图):


09
根据施工总体安排,为有利进场材料的合理利用,避免料场内部不必要的抬、搬等操作,将钢筋料场分四个部分:钢筋原材区、钢筋调直区、钢筋加工区、成品堆放区。
1、本工程加工区设置详平面布置图,在必要时考虑在施工现场外租用钢筋加工场地。半成品钢筋运至现场后,分类存放,标识明确,以便使用,尽量减少现场钢筋积压、生锈和占用场地。
2、本工程加工区设置详平面布置图,在必要时考虑在施工现场外租用钢筋加工场地。半成品钢筋运至现场后,分类存放,标识明确,以便使用,尽量减少现场钢筋积压、生锈和占用场地。
3、半成品钢筋设置标牌,要说明钢筋种类、使用部位、加工简图、数量等。吊装过程中钢筋上挂标识布条,保证施工人员能顺利辩别。
4、钢筋从原材进场堆放、半成品堆放、施工现场钢筋堆放都必须按不同规格、级别分类堆放及标识,必要时应设置专人分类、发料。
5、现场加工区加工成型的钢筋分类码放整齐,作好标识,以便工程施工使用。如下图示(分隔仓采用组合式钢材分隔仓,非图片中使用钢筋分隔):

附图为:现场钢筋摆放及标识 、加工后的钢筋摆放
10
原材运至施工现场,到达施工现场后,塔吊配合汽车吊将原材运至原材区,待加工成型后以塔吊作为垂直运输工具,直接运至现场作业面。
1、在施工中,当钢筋品种、规格不齐需要代换时,应首先征得设计单位或监理单位同意,并作好技术核定后,方可代换。
2、箍筋弯钩平直长度不小于10d与75mm的较大值,并严格按设计图纸和验收规范施工,除按施工设计图纸以外,还须符合16G101标准图集的节点要求。
3、钢筋接头采用机械连接的,其连接工艺和质量必须符合钢筋机械连接通用技术规程的要求。