2016-12-15 施工开始
凤凰城的这套房子是左先生三年前入手的,因为一直在外地上班,就简单装修了一下,自己轻轻松松地做起了包租公。
再过不多久,家里的小朋友要开始在附近的学校上学了,左先生收回房子,准备再装修一下,本来想找做装修的亲戚来帮忙,但是感觉如果以后如果出现什么问题也不太好说。左太太希望还是找专业的装修公司比较省心,在网上看到我爱我家网的信息之后,发现套餐正合自己的心意,果断下单。
左先生的这套房子是跃层的老屋,单层高只有2.7米(加楼板),做不好的话进去会感觉有点闷。

原始户型图

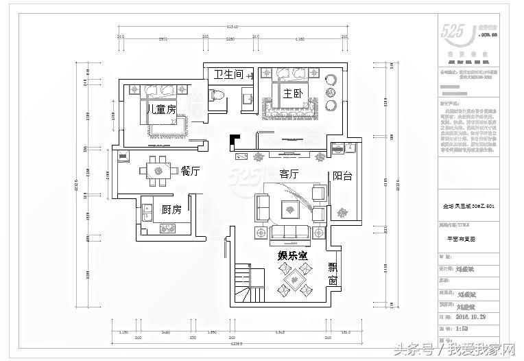
平面布局图
以上为左先生家的原始户型图和平面布局图,在原始户型图中可以看出大空间之中被分割的七七八八,各种小空间不能将其合理利用,视觉上不够宽敞。最糟糕的是原来楼梯正好是在房子中央,太浪费空间了。
对此左先生一家提出了以下几点要求:
1、调整楼梯的位置,尽量减少占用空间
2、厨房的空间比较小,没有冰箱的位置,考虑一个合理的空间安放冰箱
3、楼上的房间比较小,而且顶是斜面,风水不太好,没有储物功能,要增加收纳空间

常州设计师 刘盛斌
擅长风格:美式 地中海 现代简约 简欧 中式
设计师理念:家,是一种感觉,勿需刻意修饰
根据业主提出的要求,设计师也给出了自己的设计方案:
1、将原来在餐厅区域的楼梯改造至客厅一角,将餐厅放大空间,放眼望去,给人一种明亮、宽广、轻松的舒适感
2、将北阳台敲除连通餐厅的墙壁,这样冰箱有了它的安身的场所,而且餐厅将变得很宽敞
3、楼上卧室设计了一整面的电视柜,电视柜包住斜梁,将电视背景,储物完美结合
4、因为是老房子,楼层比较矮,运用白色光带、点光源和竖线条结合应用,空间更加宽阔,视觉上也拉伸了层高,吊顶双线条在灯光的照射下富有层次,杂而不乱
这几天左先生家的软装也入驻了,接到左太太的电话,小伙伴玲玲立刻就拎起相机就去啦,我们一起瞧瞧效果如何。

入门处做了白色的通顶鞋柜,一家人的鞋子都可以收纳进去,干净整洁,给人留下一个好印象。楼梯被改到了客厅靠墙的一角,完全不碍事,占地也较少。

中间开放式的设计,打破了整体封闭式的沉闷之感,同时也可以随手放置些小物件来做点缀。

小楼梯是传统木质的,踏上去很有质感。

客厅尽可能的采用线条,电视背景墙将竖线条运用到了极致,在视觉上拉伸了房高。

窗帘也一样是竖条纹。

客厅采用跌级吊顶,也会分散一些沉闷之感,再配合白色灯带和点光源,整个空间更富有层次感。

茶几上的手办是小朋友的最爱。

卧室的一侧还摆放了一面大书柜,睡前一读,安享属于自己的时光。

次卧做了潜入式的柜子,既可以作为电视柜,两侧也可以作为大衣柜,一体多用大大提升了空间的利用率。靠窗的一侧还有个小书桌呢,上面摆放着小朋友心爱的吉他,听说他今年的小目标之一便是要学会谈一首曲子呢。

楼上卧室同样也设计了一整面的电视柜,不同的是这间卧室是斜顶,电视柜包住斜梁,风水问题轻易就得到了完美的解决,最后将电视背景和储物完美结合。

餐厅和客厅、玄关连为一体,只通过不同的吊顶来区分,餐厅上方一圈射灯再配合中间的三盏吊灯亮度刚刚好,也容易激起食欲。

厨房是左太太的天地,整体橱柜是根据左太太的身高来定制的,洗菜时无需弯腰,相对于之前橱柜,颈椎压力减轻不少。集成灶的高度也刚刚好,炒菜终于不用再架着胳膊了,肩胛骨的疼痛也减轻了好多。

左先生家选用的是班帝的浴室柜和台盆,表面采用抗菌处理,使用更健康。
拆除项目

整体格局虽然没有太多的调整,因为是老房子了,墙面更要清理干净才能保证以后墙皮不脱落。
现场成品保护

为了防止造成不必要的损失,厨卫排水口用我爱我家专用保护盖保护。
2016-12-23 水电
开槽

看到师傅这么棒的手艺就像来秀一波。
排线管

强弱电交汇处要用锡纸进行保护隔绝。
2017-01-12 泥木
铺贴墙砖

墙砖铺贴好之后,沿水电管线暗敷走向张贴于墙砖表面,应平整、垂直、牢固。
2017-04-04 竣工验收
竣工验收(安装验收)

成品安装之后并不代表全部结束了,4号左先生一家人和工长、线下监理一起去进行验收,每一个细节都不会放过,要保证他们一家人住的安心、用着舒心。
如果大家对我们的家装感兴趣,请打开下面链接预约报名,我们会为您提供优质服务:
http://www.525j.com.cn/ajzx/home.shtml
http://tu.525j.com.cn/