
//家的故事
本案是一套100㎡的两居室学区房,位于浦东的三林与北蔡交界处,业主徐小姐为了将来女儿上学方便,一掷千金地买下了它。由于是个老小区,房龄有10多年了,所以房子本身也有不少的问题,用徐小姐的话来说“感觉歪歪扭扭的~”全屋翻新的计划便提上了日程。夫妻俩平时比较忙,没有太多时间操心装修,于是就把这件事完全交给我们盛一装饰。徐小姐此次装修的诉求有四个:
- 要环保,小朋友的健康问题不容忽视。
- 家中的设计不要出现尖锐的边角。
- 虽然面积不是特别大,还是希望有一个比较大的open空间可以让女儿自由玩耍。
- 增加家中的储物空间。
面积:100㎡
房型:两室两厅
风格:混搭
业主:徐小姐
设计师:沈嘉俊
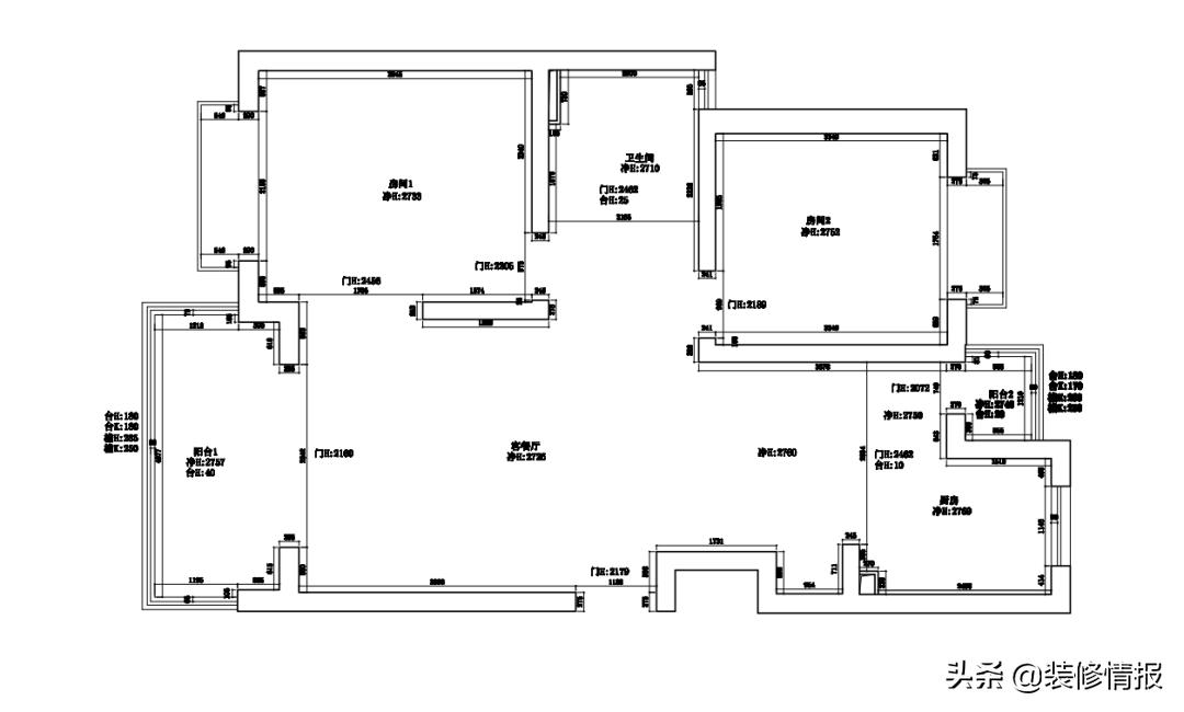
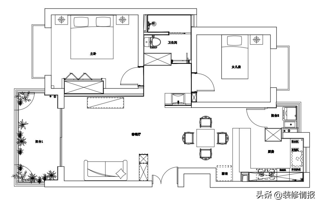
//户型图


| 玄关 |

▲玄关由于位置的原因,大多是光线比较暗的空间。设计师在玄关处采用了白色的色调提升整个空间的亮度,在视觉感上更加开阔。整个玄关柜集衣柜、鞋柜、储物柜为一体,运用了封闭式柜体与开放格子柜相组合的形式,方便不同物品的存储。侧面的全身镜深受女儿的喜爱,嵌入式的设计既美观,边口也不会有爆边,安全系数高了很多。
|客厅&餐厅 |





▲徐小姐十分中意自己原来家中的红木家具,这次装修她把它们带到了新家。
设计师根据业主的色彩喜好,在客厅&餐厅各处选用了高级灰配色来衬托徐小姐家的红木家具,融合在一起别有一番风味。
| 厨房 |

▲原先的厨房是个封闭的空间,相对比较小。而徐小姐一家又比较喜欢做饭,家里锅碗瓢盆就会有很多。在和设计师讨论过后,徐小姐听从了设计师的建议,将厨房改造成了开放式,大大提升了储物空间。
装修完的厨房徐小姐十分喜欢,想要的效果都体现了出来。这个U型厨房用到了两种板材,一种是爱格板(右),还有一种是松下饰面板(左),用松下饰面板做的柜体也是“借用”了旁边储藏室的空间,厨房侧上方是收纳空间,中间是松下的微蒸烤三合一,下面则是无法打开的,相对的储藏室侧上方是无法打开的,下方则内嵌了洗衣机,物尽其用,量屋裁柜。
羊小编在这里重点介绍下橱柜的板材类别问题,相信不少读者在选择橱柜时对于这些问题是十分关心的。柜体是橱柜的重要组成部分,目前主要常见到的柜体基材为:实木颗粒板、多层板实木板、不锈钢、石材等。目前橱柜行业柜体材料用的最多的就是实木颗粒板、多层板实木板等,对这两种板材我着重做个介绍。
1、实木颗粒板
实木颗粒板,目前可以说做橱柜使用最多的板材了。它的工艺是由木材或其他木质纤维素材料制成的碎料,然后加胶粘剂后在热力和压力作用下胶合成的人造板,这是实木颗粒板,如果你买橱柜有人提到刨花板,那就要注意了,虽说很多人称实木颗粒板为刨花板,但是它们还是有区别的,实木颗粒板属于刨花板,但刨花板不全是实木颗粒板。刨花板实质上是将各种杂木、枝芽、木屑等物品削成碎片制作的,所以不要被忽悠了。
它的优点是颗粒板的吸音和隔音性能比较好,结构比较均匀,加工性能好,价格便宜性价比不错所以楼主做的单子使用这种板材的最多。同样它的缺点是因为内部为颗粒状结构,在机器裁板时容易造成暴边的现象,所以不难解释很多人买家具组装时发现有暴边;容易吸湿,暴露部位必须要采取相应的封边处理,不过最好的办法就是在设计时要求工厂直接裁切进行封边。

▲奥地利爱格板和国产板的区别
徐小姐家用的爱格板就是实木颗粒板的一种,是由天然原木经切割、粉碎、高温、高压等工序,最终制成适合家具及橱柜加工生产的板材,也是目前全屋定制普遍采用的环保板材。生产爱格板的木材来源于未经污染森林区,整个生产过程中都有严密监控措施,所有的爱格板产品都经过专门国际机构的测定,符合国际环保一级标准即E1等级,并且有害物质释放实际检测数值远低于E1级标准。因此完美满足徐小姐对于家中环保性上的要求。

▲厨房的柜门用到了按压式开关,相比装柜门把手,按压开关平时使用时方便、省力,小朋友在家里跑来跑去也不用担心会撞到凸起。高级灰的整体配色显得高贵、冷傲、有质感、仿若来自遥远的太空。

▲多层实木板剖面图
2、多层实木板
多层实木板作为使用量仅次于实木颗粒的板材,它由多层的单板或薄板胶贴热压制而成的,现在市面常见的一般分为3厘板、5厘板、9厘板、12厘板、15厘板和18厘板六种规格,橱柜使用的多层板为18厘板,也就是18mm的厚度。
它的优点是板材的硬度高,而且芯材是纹理相互垂直交错,所以强度大、不易变形;防水性能强于颗粒板,多层柜体搭配铝箔纸做水槽柜是不错的选择。而缺点是一般造价较高,一米柜体比颗粒板要高几十块钱;虽说优点是不易变形,但是要看厂商的,小作坊出品难保不变形。
说完柜体板材,我再来讲讲橱柜的门板类别。橱柜门板可以说是厨房的门面,一套橱柜色彩搭配好不好,一间厨房的逼格高不高,这都要取决于橱柜门板材料和纹路、颜色的选择。橱柜门板在整个厨房里占据了很大的位置,橱柜门板的材料、颜色等都影响着整个厨房的设计,当然了,选门板时在拉手上面多下功夫也将会有意外的收获。目前市场上常用的橱柜门板主要有双饰面板、烤漆板、吸塑板、实木门板、金属板等,这些种类的门板主要以18mm厚颗粒板或中纤板为基材制作而成,不过一般烤漆板会薄于18mm,吸塑与实木门板会厚于18mm。
1、双饰面门板
双饰面门板,也可以叫做免漆板、耐磨板、爱格板等,是以实木颗粒板为基材,表面贴有三聚氰胺纸。双饰面板花纹多样,可选范围广,其实它是将带有不同颜色或纹理的纸放入三聚氰胺树脂胶粘剂中浸泡,然后干燥到一定固化程度,铺装在颗粒板表面经热压而成的。双饰面板的特点非常鲜明,环保、不变形、色泽纹路多样、物美价廉,非常适用于现代或简约的橱柜风格。

双饰面板优点:双饰面板的纹理非常清晰,花纹多所以选择性较强,选择同色封边条使整体更加统一,兼具耐高温、耐酸碱、耐磨的优点,表面易清洁、好打理,抗划伤、防火防水性能好,由于基材是颗粒板,所以造价不高,而性价比非常高。
双饰面板缺点:基材为实木颗粒板,所以无法做造型,最多也就配一款漂亮的拉手弥补一下。
2、亚克力门板
亚克力门板其实就是以密度板为基材,表面覆着亚克力膜而成。亚克力又叫有机玻璃,是一种聚酯高分子热塑性材料,具有高透光性,透明性极高,但是亚克力容易被酸碱的物质腐蚀。

亚克力门板优点:亚克力做的门板色彩艳丽,表面平滑容易清洗,具有一定的耐热及抗划能力
亚克力门板缺点:亚克力门板表层容易脱落,影响美观,而且颜色时间久了也会发生氧化导致变色,质量差的板材很容易变形,连机器都不用上直接能淘汰的板材很多。
3、UV板
UV板也是以密度板为基材,正反表面喷涂UV漆,然后经过紫外线强光照射,使其固化后高温加工而成。

UV板优点:防水防潮效果非常好,长期使用不褪色,表面耐磨度高,耐刮擦,高硬度常温固化长期不变形,耐酸碱抗腐蚀,非常的易清洁
UV板缺点:表面容易出现麻点、条痕和起皱等现象,且不同批次板材容易有色差,楼主就经常为此苦恼。
4、吸塑板
吸塑板基材为密度板、表面经真空吸塑而成或采用一次无缝PVC膜压成型工艺。吸塑门板在欧洲非常成熟也非常流行,但是国产很多PVC吸塑门板质量并不过关。


吸塑板优点:基材为密度板,可以铣型比较适合简洁现代、欧式古典、宫廷、乡村各种风格的设计,PVC膜可选范围较大所以不仅造型多变色彩丰富,且有各种颜色和纹理可以选择,PVC膜有亚光和高光之分,吸塑的门板搭配罗马柱将会十分漂亮。
吸塑板缺点:板材握钉力不及颗粒板,而且价格比颗粒板贵很多,吸水膨胀率较大,吸塑门板真的很考验生厂商的生产能力,很差的工艺会造成外膜脱胶。
5、烤漆版
这个系列的门板不用我解释大家也会知道怎么回事,简单来说就是将基材密度板经铣形打磨后,表面进行喷漆处理然后烘干而成,烤漆门板的优劣基本取决与那层漆的好坏,价格分好几个层次,跟用漆、工艺关系很大。

烤漆门板优点:有镜面烤漆和亚光烤漆两种选择,并且色泽鲜亮选择性较大,门板表面烤漆能够有效防水、防潮、不需封边,好的烤漆不渗油,不褪色,表面易清洁打理
烤漆门板缺点:烤漆因其特性所以怕磕碰和划痕,损坏后很难修补,楼主刚入行时拿烤漆门板随意摆放而被领导狠狠训斥的场景历历在目,另外补单容易出现色差。
6、金属板
同样的,听名字就能够明白这板材的意思,金属板也是用密度板做门板基材,表面采用特殊技术处理过的金属,然后经过高温高压加工而成。

金属板优点:防热性能好,耐磨,耐腐蚀,所以使用寿命长,一般适用于简约现代风格,铝合金封边再搭配嵌入式拉手或封边拉手非常漂亮。
金属板缺点:怕磕碰和划痕,容易变形,碰撞易留下坑点凹痕。
7、实木门板
实木门板,就更不用解释了。只说一句,漂亮,大气,贵,贵,贵!
实木加工工艺是所有门板里面最难的一种,加工环境要求相当高。实木橱柜门板,风格多为古典型,通常价位较高。实木门板分实木复合和纯实木门板,纯实木门板是指边框和门芯板均为实木,实木复合门板,门芯为中密度板贴实木皮,制作中一般在实木表面做凹凸造型,外喷漆,这样可以保证实木的特殊视觉效果,边框与芯板组合又可以保证门板强度。采用中密度板贴实木皮。常见材料有水曲柳、赤杨、红橡木、樱桃木、胡桃木、柚木。

实木门板优点:实木门板外观华丽,而且款式多样,成品门板具有不变形、耐腐蚀,吸音性非常好,非常环保,坚固耐用。
实木门板缺点:因为原料价格高,做工工艺复杂,所以价格非常贵,不大适应国内市场的消费能力,另外实木门板不宜清洁,阻燃性能较差。

▲徐女士有许多的厨房小家电,所以设计师使用了国内少见的日式厨房设计,专门做了一个厨房小家电的放置柜,将厨房小家电们整齐的放在一侧台面,以免厨房小家电占用操作台空间,影响日常料理。常用物品有处可放,厨房自然也就显得规整很多。
| 卧室 |


▲一般的卧室衣柜都会选择放在一进卧室门的旁侧,而为了让主卧看上去一体且空间视觉感更宽阔,设计师大胆的在墙壁里找起了空间,利用客厅电视背景墙一半的厚度加上主卧隔墙的一半厚度,打造了一个衣柜出来。在不损失多少面积的情况下将主卧空间利用的淋漓尽致。



▲次卧是女儿的房间,全部由活动家具构成,方便日后孩子长大后的房间布局变动。家具边角都镶以橡胶条,以防女儿在奔跑中碰伤。整个女儿房色彩鲜艳明快,充满了童趣。这样的色彩搭配可以让女儿保持活泼积极的心理状态和愉悦的心境。
| 卫生间 |

▲卫生间旁的过道开放性很强,能很好的利用。设计师“借”了卫生间隔墙的厚度加上卫生间的一部分空间给了过道。在过道增加了跟玄关一样的收纳功能。这个过道收纳柜解决了徐小姐不少的收纳需求。


▲卫生间淋浴区使用了进口的小蜜蜂瓷砖,吸水率低、密度高,经久耐用。配色选择了令人感到神清气爽的蓝色,如厕区使用的则是ACC的灰色瓷砖。
在选砖的时候还有个有趣的小插曲,设计师将进口小蜜蜂瓷砖和另两款与小蜜蜂砖款式相同的仿砖放在一起给业主徐女士做了挑选,徐女士一眼就相中了小蜜蜂砖,后来采访徐女士,徐女士说单单是色泽上就有巨大的差异。所以说贵还是有贵的道理滴。
编辑留言:
大家好,我是编辑雄大。每次在编辑修改盛一装饰的稿子时,他们的案例给我的感受总归有点不同,没有样板间的做作,也没有特别明显的风格烙印,最深的感触就是他们每套设计真的非常实用,先功能后风格。不信?你再看看下面他们服务过的业主家案例,你就知道了。
50平50万,这套案例某点评网阅读过14万
80㎡巧变200㎡ 旧房爆改,超级变变变!
幸福就是,我有猫,还有你
空关5年后 老房装满了高科技 生活不易,装修不难 50㎡老公房的“大手术”
年轻夫妇+双胞胎+90㎡=?
柴犬成双,生活有方,实名羡慕她功能超多的家