《红楼梦》荣国府院宇布局研究评述
甄道元
摘要:人们对《红楼梦》荣国府院宇布局的认识,存在着分歧。造成这种分歧的原因,可能来自于三个方面:个人理解、作者增删的原因、传抄者之误等第三方因素。针对个人认识上的分歧,有必要重新分析作者意图,重绘院宇布局图。绘制的首要原则,是尊重文本,同时也要考虑传统文化、作者的写作风格与习惯、文本自身因素。院宇布局研究,对版本学和成书过程,也能提供新的视角。
关键词:红楼梦;大观园;沙盘;模型;平面图
越来越多的与《红楼梦》相关的旅游景点,提出了制作《红楼梦》建筑沙盘模型的设想。然而,目前人们对《红楼梦》建筑的研究,大多热衷于“大观园”的布局,而对贾府宅院的研究较少。如戴志昂、杨乃济、徐恭时、曾保泉、张良皋等,所绘制的《红楼梦》布局图,主要倾笔于大观园的建筑布局,而对宅院只是略略一带。笔者对涉及贾府宅院建筑物布局的研究,到目前为止,只发现有苕溪渔隐等11家。然这些研究,或因研究者对文本的理解问题,或困于传抄者的误抄,或受到作者“增删五次”过程中尚未理顺的困扰,而难以把握作者最终的创作意图,各家的研究结果,分歧较大。笔者认为,十分有必要对该11家的研究,作一综述,并在分析作者的创作意图基础上,将成书过程的因素等也一并考虑在内,对作意进行分析,继而取各家研究成果之合理成分,重新绘制建筑布局图,力图更进一步地接近最终作意,以供从事沙盘模型制作的朋友们参考。本文仅就荣国府宅院及与荣国府宅院相关的建筑,予以分析。
一、研究回顾
1、苕溪渔隐的《痴人说梦》插图
目前发现有关《红楼梦》建筑布局图最早的研究,是清嘉庆二十二年(1817)苕溪渔隐的《痴人说梦》一书。[1]书中所绘《红楼梦》建筑布局图四幅。除一幅总图外,另三幅分别是宁国府、贾府宗祠、会芳园、贾赦宅图;大观园、梨香院、薛宅图;荣国府图。每幅占一个叶面。为方便阅览,笔者将其合为一张图(见图1)。该组图虽比较粗糙,但基本能反映苕溪渔隐对《红楼梦》主要院落之间关系的理解。
苕图所反映出来的建筑关系,主要有如下几点:其一,他将大观园置于了宁荣二府之间。其二,将梨香院和薛家后来客居的薛宅,置于了荣国府的东南、宁国府的西南方向,也就是大观园的南端临宁荣街之处。其三,将“贾赦屋”置于宁国府内的西南角,也就是会芳园的西南端临宁荣街之处,梨香院、薛宅和贾赦院三者相邻。其四,将“凤姐住屋”置于荣禧堂正后方。其五,将“王夫人房”所在的院落,理解为与贾母院呈对称关系的院落。其六,将“荣庆堂”的位置,置于了贾母院的南端。

图1. 苕溪渔隐《痴人说梦》插图:《总图》与《各院宇图》
2、周汝昌的《荣国府第想象图》与《荣国府院宇示意图》
1953年由棠棣出版社出版的《红楼梦新证》,展示了周汝昌所绘的《荣国府第想象图》(图2)[2]。至1976年该书再版时,周又做了微调,名为《荣国府院宇示意图》(图2)[3]。在1953年第一版时,尚未提及看到过《痴人说梦》一书。而在1976年再版之时,明确已接触过此书。但周汝昌并未受到苕图的影响,只在1953年初版图的基础上略作调整,而未作大的变动。

图2.周汝昌《荣国府第想象图》与《荣国府院宇示意图》。
周图所反映出来的建筑布局,主要有如下几点:其一,与苕图将大观园置于宁荣二府之间不同,周图将其置于了荣国府的北面。其二,将梨香院置于荣国府东路的贾赦院之后,即荣国府的东北角上,而不似苕图置于荣国府东南角。其三,将贾赦院置于荣国府的东南部,作为与西路贾母院相对应的东部院落中靠南的一小部分,而不是苕图的宁国府会芳园的南端。其四,将“东小院”置于荣国府中路东侧多出来的不呈对称关系的一个小跨所。其五,标出了“三春”临时居住的抱厦,并置于荣国府中路的中轴线上荣禧堂之后。其六,将凤姐院置于荣国府的西北角即贾母院之后,而不是苕图的荣禧堂之后。其七,标出了凤姐院对面、刘姥姥待唤的“倒厅”位置,并置于荣国府中路贾政院与西路贾母院之间南北走向的“夹道”上。其八,标出下人住的“群房”并置于荣国府的北侧。其九,标出了“垂花门”“穿堂”“影壁”等建筑物的位置。其十,将荣国府西角门通往贾母垂花门的路,理解为途中仍有一道“二门”,并在进入二门之前折向西,且折向西后距离垂花门仍有一段向北较长的路程。其他诸如仪门、贾母院、荣禧堂等,与苕图大致一致,不述。
3、戴不凡的《贾府院宇示意图》
1979年,戴不凡在《红楼梦学刊》发表了《曹雪芹*迁拆**改建大观园》一文,展示了他绘制的在大观园营造前后荣国府院宇布局的两张图(本文取其一张,见图3)[4]。
戴不凡注意到了营造大观园时提到拆除的“荣府东边所有下人一带群房”,标记为“荣府下人所住房子”,并将“群房”拆除后那一带纳入了大观园之内。也就是说,在大观园的位置上,戴不凡丢开了周图,而与苕图有着某些相近的思路。在关凤姐院的位置、梨香院的位置上,戴图与周图基本吻合。另外,戴图标记出了荣禧堂后有东西两个“小角门”。

图3.戴不凡《贾府院宇示意图》
4、葛真的《大观园平面示意图》
葛真1979年在文化部文学艺术研究院的《大观园研究资料汇编》一书中展示了一幅《大观园平面示意图》[5],其中有荣国府部分。本文截下荣国府部分(如图4)。该图直观上就可看出,各建筑物已经细化了很多。
葛图有诸多值得关注的地方:其一,与周图相同,将大观园置于了荣国府的北部。其二,将贾赦的“东大院”作为与贾母院非对称关系的“大”院落,且其北界墙在纬度上北延至荣禧堂之后,并与大观园南界墙相接。其三,其凤姐院的位置,不同周图而与苕图基本一致。其四,梨香院的位置,基本与周图相同。其五,对于“南北宽夹道”,在走向上与周图相同,理解为南北走向的宽夹道;在位置上,又与周图不同,而置于荣禧堂之后荣国府中路的中心轴上。其六,对王夫人处的东小院,与周图不同,理解为荣国府正院内、荣禧堂东侧、呈东西对称的一个跨院。其七,明确了王夫人“三间小正房”与贾政“三间耳房”的关系。其八,对于荣国府的西角门,与周图不同,而将之置于贾母院的中轴线上,使贾母院成为了独门独户的院落。其九,标出了荣庆堂、元妃更衣院(即体仁沐德)、李纨院、暖阁、贾母后院新建的花厅、聚锦门、绮霰斋等处的位置。其十,将梨香院、凤姐院、贾母后院都作为凸入大观园的建筑。

图4.葛真《大观园平面示意图(裁剪荣国府部分)》
5、童力群的《贾府示意图》
1982年童力群绘制的《贾府示意图》[6],也是一个包括大观园在内的全图。本文截取其荣国府部分(如图5)。其一,童图承袭了葛图在荣国府正院内荣禧堂两侧存在着东、西对称的两个小跨院的观点。其二,借鉴了周图,将凤姐院这一经度上自南至北的一带区域,作为单独的不呈对称关系的地带。其三,新创,将荣庆堂置于贾赦院和会芳园之后,横跨宁荣二府的建筑。其四,新创,在荣禧堂中路的甬道两侧,标出了“银库房”“账房”“仓上”的方位,以及“鸳鸯”住处、“小厮”所在场所等诸多书中未明确或难以推测的场所。对照笔者所悉知的《红楼梦》版本文字,童图中多处,笔者未发现与之相吻合的版本。童图所据,是否另有笔者未知的文本,尚未落实的确。

图5. 童力群《贾府示意图》(裁剪荣国府部分)
6、宋鸿文的《大观园与贾府院宇示意图》
1983年宋鸿文绘制的《大观园与贾府院宇示意图》[7],也是一个包括了大观园在内的全图,本文截取其荣国府部分(见图6)。其一,宋图接纳了周图的观念,将王夫人三间小正房所在的东院作为荣禧堂东侧多出来的、不呈对称关系的小跨院。其二,与葛图相同,将西角门置于贾母院直通垂花门的中轴线上。其三,新创,将荣庆堂标记在贾母院正房位置。其四,新创,标记出马棚并置于荣国府中路院落东南角的东角门附近。其五,新创,标记出“梦坡房”(梦坡斋)、账房,并置于南大厅与内仪门之间的甬道两侧。

图6. 宋鸿文的《大观园与贾府院宇示意图》(裁剪荣国府部分)
7.胡文炜的《红楼梦大观园平面布局图》
1995年胡文炜在《贾宝玉与大观园》一书中,载有胡文炜手绘的《红楼梦大观园平面布局图》一张[8],本文截取荣国府部分(见图7)。胡图值得注意的是,他既不像周图那样将凤姐院置于贾母院中,也不像葛图那样置于荣禧堂正后方的荣国府正院的中轴线上,而新创,置于二者之间,将倒厅依托于与王夫人东小院“三间小正房”呈对称关系的西跨院的建筑之后。

图7. 胡文炜《红楼梦大观园平面布局图》(裁剪荣国府部分)
8、孟庆田的《贾政院总平面图》
2001年孟庆田在《红楼梦和*瓶金**梅中的建筑》一书中,有《贾府大观园平面图》单独的附图一张,本文从中截取了荣国府部分(见图8)[9]。孟图在整体框架上,沿袭了葛图的观点,并在葛图手工绘制的基础上,采取电脑绘图的方式,对葛图进行了美化和简化,并在个别部位上进行了微调。所调整之处主要有:其一,将葛图所绘李纨院的对面,标为“宝玉结婚处”(即宝玉婚房)。其二,将葛图所绘与王夫人东小院对称的西小院,标为赵姨娘、周姨娘住所。其三,将贾赦院绘制为与贾母院大小相同、方位相对称的院落。其四,将贾母垂花门前通向荣国府正院的穿堂,理解为从贾母院中部到王夫人院东界墙的一条东西贯通的通道。其五,将贾母后院的东西穿堂,理解为东、西两个穿堂。其六,在葛图基础上,将“体仁沐德”向南延至临宁荣街。其七,新创,将荣国府正院的二门,标为“垂花门”。其八,新创,将暖阁置于荣国府正院的甬路上。其九,将新创,贾母院的“抄手游廊”绘制成直通式。其十,新创,添加了“防火通道”等。其他如凤姐院、李纨院、南北宽夹道、影壁、梦坡斋、绮霰斋等仍沿袭葛图的观点,不赘。从总体上看,孟图沿袭了葛图,而在葛图基础上所作的调整,所调整的部分,除暖阁外,笔者并未发现其所依从的与之相应的版本。

图8. 孟庆田《<红楼梦>贾府大观园建筑平面图》(裁剪荣国府部分)
9、黄云皓的《贾府建大观园前总平面图》
2006年,黄云皓著的《图解红楼梦建筑意象》一书中,《贾府建大观园前总平面图》一图[10],是目前发现的绘制最为工整、标记最为详细的贾府平面图(图9)。黄图还考虑到了各部分的比例因素。黄图值得关注的是:其一,借鉴了葛真图,将凤姐院、粉油影壁墙置于荣府正院的中轴线上。其二,新创,该图将“南北宽夹道”理解为东西走向、南北较宽的夹道。其三,新创,将“宝玉婚房”位置标在王夫人处所西侧、荣禧堂的北侧地带。其四,新创,将“东边所有下人一带裙房”置于东大院东侧临“私巷”的北端。其五,新创,将贾赦院置于王夫人院的南侧。其六,新创,将“东大院”置于荣国府的北侧。其七,新创,将梨香院置于大观园的东北部,即将大观园插在梨香院与王夫人处所之间那个“相隔两层房舍”的地带。其八,新创,标出了薛宅的位置,并置于梨香院同一经度上的荣国府东北角大观园之南的位置,将薛宅与梨香院视作大观园的一南一北,遥遥相对的一对建筑物。其九,标出了水井的位置,并将水井与马棚置于王夫人院南端的临街处。

图9.黄云皓《贾府建大观园前总平面图》(裁剪荣国府部分)
10、李艳芳的《荣国府平面布局图》
2015年,河北工程大学李艳芳的硕士论文中,有手绘《荣国府平面布局图》一张(见图10)[11]。李图在整体上承袭的是黄云皓的观点。值得一提的是:其一,其在认同黄云皓将“南北宽夹道”理解为东西走向、南北较宽的夹道之基础上,采纳了胡图的思路,将凤姐院的位置微微西移。其二,将“三春”临时居住的抱厦,明确在王夫人三间小正房之后。另外,将南院马棚置于了贾赦院内。

图10. 李艳芳《荣国府平面布局图》
11、徐建平的《贾府建大观园前平面示意图》
2018年,徐建平在《红楼梦研究》上发表的《贾府建筑布局探论》一文中,所绘制的《贾府建大观园前平面示意图》[12],是时间上最新近的《红楼梦》建筑平面图(见图11)。徐图其一,接纳了黄图将“东大院”置于荣国府北侧的观点。其二,接纳了黄图将贾赦院置于王夫人院之南的观点。其三,承袭了周图将凤姐院置于贾母后院跨贾母院与荣国府正院位置的观点。其四,承袭了周图,将“南北宽夹道”视作南北走向、东西宽的夹道。 其五,承袭了胡图,将倒厅(抱厦)依托于荣禧堂的西耳房。其六,沿袭了孟图,在荣国府中路标出的暖阁。其七,承袭了葛图,将李纨房置于荣禧堂之后。其八,承袭了宋图,在荣国府正院东侧的东跨院的中间,绘制出一条南北向的通道。其九,新创,将梦坡斋、东小院、账房置于该通道上,前二者置于该通道的西侧,后者置于东侧。

图.11徐建平《贾府建大观园前平面示意图》
除上述11位的研究者涉及荣国府院宇布局图外,于培良2015年于自己的博客上发布《红楼梦宁荣二府建筑布局图》[13]。该图绘工极为讲究。但从于先生处得来消息,为精益求精,于先生计划重新调整绘制。因而,不便引用。另外,戴志昂、杨乃济、徐恭时、曾保泉、张良皋等也绘制过《红楼梦》的布局图,但多倾笔于大观园领域,本文不作探讨。
二、荣国府院宇图绘制的原则和既有研究成果的分析
综上,人们在荣国府院宇的认识上,存在着诸多分歧。造成分歧的原因,笔者认为有三:一是研究者由于个人对文本理解的不同,而产生了认识上的分歧。二是因传抄者和编辑整理者造成的文本冲突。书中明言,曹雪芹“增删五次”“批阅十载”,脂批云:“若云雪芹披阅增删,然则开卷至此这一篇楔子又系谁撰?”意为作者是在不断调整、修改之中,并形成了不同时期的修订版本。在长达十年的调整过程中,人们多认为,传抄者是在作者修改几回或十几回之后,而非一次性地将全部书稿拿去转录的。而且,大多数传抄者也不都是在作者原稿的基础上转录的,而存在着再转录的情况。几番转录之后,则会存在着此一抄手从彼一抄手或几个抄手那里分批得来不同时期的版本,导致将不同时期的版本之文稿抄成一个系统之可能,从而造成了建筑物表述上的混乱。三是也不排除作者本身在建筑物原型或原型群转化为艺术化的文学作品的过程中,在某些枝节问题上,作者自身也存在着头脑中的混乱或疏忽;也或还存在着在每一次调整之后,并非都能将全书各处完全统一起来之可能,从而导致文本自身根源上的混乱。
本文针对主要建筑物存在的分歧,予以分析,吸纳诸家研究成果中的合理元素,重新绘制荣国府院宇图,以期与作意的距离更近一步。笔者认为,绘制《红楼梦》建筑布局图所应遵循的首要原则,是“尊重文本”(本文所参照的文本有:《甲戌本》《庚辰本》《己卯本》《程甲本》《程乙本》《甲辰本》《蒙王府本》《戚序本》《列藏本》《舒序本》《杨本》《卞本》及目前市售的其他《红楼梦》版本)。而对于文本中并不十分明确和文本自身存在冲突的院宇布局,在无法实现“尊重文本”之情况下,还考虑了如下几个方面。
一是结合中国传统的哲学进行思考。宁荣二府的宅院布局,因循的是儒家思想:坐北朝南、横平竖直、左右对称、次第分明、尊卑有别、长幼有序。大观园则体现的应是道家思想:依山傍水、曲径通幽、逢高走高、逢低走低、小桥溪流、丛绿吐翠、天人交胜、浑然天成、舒适幽静。宁荣二府宅院的建筑透露着规矩,一种立足于世、成就事业所必须遵从的规范;而后花园则体现的是人的另一面,如同“八小时之外”人们追求休闲、自由、轻松等人性使然的一面。
二是依据作者的写作风格和写作习惯进行合理的推测。书中对建筑物的坐落位置的描写,有的是比较清晰的;而有的出于节省笔墨而不致有繁赘之感,作者则往往只写一个局部或侧面,而由读者依据传统文化和常识来举一反三,推测出其他。如,第3回黛玉进贾府,经过宁国府时写到:“街北蹲着两个大石狮子,三间兽头大门,门前列坐着十来个华冠丽服之人。正门却不开,只有东西两角门有人出入。”而在荣国府之前只写:“照样也是三间大门,方是荣国府了。却不进正门,只进了西边角门。”当理解为荣国府也是有“两个大石狮子”,门口“十来个”奴仆,同样“正门不开”,同样“东西两角门有人出入”。再如,写荣禧堂有“东廊”,虽然没提西廊,当理解为也有西廊。
其三,对于书中存在文本冲突的建筑物,当进行开放式的探讨,分析其产生的原因,提出不同的可能,以待进一步探究。
另外,还有一些次要位置,书中虽未明确其方位,但绘图又不宜省却,如道路等可凭借综合因素和综合判断来绘制。但违背文本、违背文化依据和常识,违背作者写作风格和习惯,则是本文所力戒的。
1、大观园的位置与形状
在既有的研究中,对大观园的位置与形状的理解,大致有三大类。一是苕图(图1)将大观园视作南北向的矩形并置于宁荣二府之间。另一是戴图(图3)将大观园视作“刀把形”,“刀把”的部分置于宁荣二府之间,“刀身”的部分置于“刀把”的北端并转向西,位于贾赦宅之后。再一是其余诸图,将大观园完全置于荣国府之北。而书中涉及到这一部分的文字,有如下几处。
第3回黛玉拜见大舅贾赦时,对贾赦院的描写是:“不似方才那边轩峻壮丽,且院中随处之树木山石皆有。”此表明贾赦院内有花园,花园中不乏“树木山石”。黛玉是途中看到的,所见山石树木不应是贾赦宅之后,也不会是贾赦宅的西部,而应是贾赦宅东侧一带的花园之一角。因为,黛玉是行进在“黑油大门”至贾赦正房的路上,且贾赦宅与贾政院之间是以墙相隔。
第16回对大观园方位和形状的描写是:“从东边一带,借着东府里花园起,转至北边……先令匠人拆宁府会芳园墙垣楼阁,直接入荣府东大院中。荣府东边所有下人一带群房尽已拆去。当日宁荣二宅,虽有一小巷界断不通,然这小巷亦系私地,并非官道,故可以连属。……其山石树木虽不敷用,贾赦住的乃是荣府旧园,其中竹树山石以及亭榭栏杆等物,皆可挪就前来。如此两处又甚近,凑来一处,省得许多财力。纵亦不敷,所添亦有限。”之中“一小巷界断”,乃指宁荣二宅之间的“私巷”。之中“东边一带”,是贾蓉站在贾琏住所,所指应为贾赦宅院东边、“私巷”西边的花园。书中“荣府东边所有下人一带群房”,当指贾赦宅院东边、“私巷”西边,与贾赦东边花园同一经度上的“下人房”。之中“拆宁府会芳园墙垣楼阁,直接入荣府东大院中”,则是把“私巷”东侧宁国府会芳园的一部分,也纳入了大观园。之中所提贾赦住的乃是荣府“旧园”,指的应是包括了贾赦住宅、贾赦住宅东边和北边转向西的花园在内的包含着“宅”和“园”的老宅。即,荣国府旧园与宁国府一样,是“宅”被“园”两面包围的宅院,只不过宁国府的园子在宅子的北侧和西侧,而荣国府老宅的园子则在住宅的北侧和东侧而已。也即,荣府旧园是一个刀把形的结构:贾赦住宅和住宅东侧的花园,是刀把;贾赦住宅北面并转向西的花园,是刀身。之中“借着东府里花园起,转至北边”,其“转至北边”,指的是两府之间的私巷所形成的南北形的结构,至北端之时,向西转向了荣国府宅院的北面。
由此看来,所形成的大观园,当包括着“私巷”两侧地带(贾赦宅东侧的花园及荣府“所有下人一带群房”、会芳园西侧一部),并将荣国府北侧的花园也即荣国府“旧园”中的全部园子均囊括在内的园子。其形状,仍呈“刀把形”。如此,除戴图外,其他非“刀把形”的南北走向或东西走向的诸图,均不合文本要求。联系苕图和脂批,这“转至北边”当是作者的后期意图。
大观园与荣国府的关系是,大观园是荣国府内的后花园,它与荣国府宅院是通过几个门发生关联的。包括位于大观园东西向中间的“正门”,其经度应在荣府中路偏东,即贾政院与贾赦院之间的位置,与元妃更衣处的“体仁沐德”的经度大致相同。包括“腰门”,即第59回提到得:“日落时,……园中前后东西角门亦皆关锁,只留王夫人大房之后常系他姊妹出入之门。”这是一个通往王夫人大房之后最近的角门。包括“聚锦门”,即第54回提到的宝玉在园中山石后小解后,出园门来至贾母的“花厅后廊上”;第71回,写鸳鸯准备小解遇司棋、潘又安,出入大观园的门;第56回,为史湘云瞧病迎接大夫,回事的人道:“有吴大娘和单大娘他两个在西南角上聚锦门等着呢。”这道门。是距离贾母院更近的西南角门。第17回脂砚斋曾有批语:“后文所以云进贾母卧房后之角门,是诸钗日相来往之境也。后文又云,诸钗所居之处,只在西北一带,最近贾母卧室之后”。包括“东南角门”,即宝钗经常出入的那道门。如此,大观园有通向贾母处最方便的角门(聚锦门)和通向王夫人处最方便的角门(腰门)。而戴图虽为“刀把形”,但将大观园的西界墙止于贾赦宅院的西界墙,便无法满足通往贾母和王夫人之角门的条件,即也不合文本要求。
2、东大院、东小院、荣庆堂、暖阁、宝玉婚房的位置
(1)东大院。书中东面的院落,有“东大院”与“东小院”之分。“东大院”系指贾赦所住的荣府旧园,此一点,除黄图(图9)、徐图(图11)将“东大院”置于荣府的北部,似更适称作“北大院”外,向无争议。但在既有的研究中,在东大院的位置、形状、大小问题上,仍存在着分歧。主要有如下四种观点。
其一,如苕图(图1)将贾赦院置于宁国府西南角,一个矩形状的小小院落,与“大”字不符。其二,如周图(图2)将贾赦院作为与贾母院在方位与大小上呈对称关系的院落,也与“大”字不符。其三,如葛图(图4)将贾赦院作为与贾母院非对称关系的、北部与大观园相连接的“大”院落。其四,如黄图(图9)将贾赦院置于王夫人处所的南边。
书中明确,贾赦院乃“荣府旧园”。前文述及,贾赦院又称“东大院”。其“大”字,应既相对于“东小院”的“小”字,也应相对于荣国府西路的贾母院。因贾母院只称“西院”,向不称作“西大院”。由此便知“东大院”要比贾母院更大。与贾母院相比,它的突出特征在于,其为“荣府旧园”。换句话说,东大院之“大”,在于它的东部还有“一带”花园;还在于它的北部还有更大的转向贾政院之北的花园。前文已述,它是既有宅院也有花园的完整老宅。其北部的花园,也并非止于贾赦宅院的西界墙,而是延至荣国府正院之后乃至贾母院之后的一个大院落。其院落之大,“东”和“北”可作为贾赦院的代称。“东大院”以及第75回尤氏指代邢夫人处为“北院”[14],则应是将“东”和“北”视作贾赦院代称的反映。
由此,将贾赦院置于王夫人东小院南侧、其北端未与大观园相衔接的理解,不具合理性而予以排除。
(2)东小院。既有的研究中,对东小院的位置和功能的理解,主要有如下三种的观点。一是如周图(图2)将东小院视作荣国府正院东边不呈对称关系的院落。二是如葛图(图4)将之视作荣国府正院东西两侧呈对称关系的东侧那个跨院。再一是如黄图(图9)将东小院作为独立于王夫人院的院落。
前文已述,荣国府中凡表述东部院落者,不是指“东大院”就是指“东小院”。书中对东小院的表述,第7回有:“周瑞家的送了刘姥姥去后,便上来回王夫人话。谁知王夫人不在上房,问丫鬟们时,方知往薛姨妈那边闲话去了。周瑞家的听说,便转出东角门至东院,往梨香院来。”其中的“东院”,应指东小院,或说是王夫人上房东面东廊上王夫人常住之处,而非指绕道至贾赦处的东大院。第30回金钏向宝玉道:“我倒告诉你个巧宗儿,你往东小院子里拿环哥儿同彩云去。”“东小院”乃是以王夫人为主的贾政妻妾之院。而孟图(图8)将赵、周姨娘置于西小院,则与文本冲突,应当排除。虽然书中只提到“东廊”未及“西廊”,但在结构上依据儒家文化和作者的写作风格,应当有一个与“东廊”和“东小院”呈对称结构的西廊和西部的小跨院。这在绘图中,是应考虑进去的。但是,孟图明显与文本冲突,此主张难以采用。
(3)荣庆堂。人们一般认为,贾母院位于荣国府西部。书中第71回写贾母八旬之庆,“宁国府中单请官客,荣国府中单请堂客。……贾母等皆是按品大妆迎接。大家厮见,先请入大观园内嘉荫堂,茶毕更衣,方出至荣庆堂上拜寿入席。”从此段来看,荣庆堂接待的是“堂客”女宾,其位置当在荣国府。拜寿的位置在“荣庆堂”,则荣庆堂当是寿星贾母居所。在贾母“按品大妆迎接”的这种正式场合,寿星老万无在异处接受拜寿的道理。由此,笔者推测,荣庆堂当在贾母的“五间上房”之中。童图(图5)将荣庆堂置于贾赦院与宁府会芳园之后、大观园正门之前,则是据于后40回文字。而甄以为,后40回是曹雪芹早期的文字,并非后期构思,故不予采纳。
(4)暖阁。书中提到的暖阁,大致可分为两类。其一是大屋子之内的设施,是大屋内隔开而又与大屋连通的小套间,可设炉,有较好的取暖效果。第3回提到的:“今将宝玉挪出来,同我在套间暖阁儿里,把你林姑娘暂安置碧纱橱里”,说的便是这种暖阁。即,贾母住在“五间上房”的暖阁里;而宝玉不愿搬进来,宁愿住在原房间的碧纱橱外。贾母卧室与宝玉卧室,当是一东一西。*红院怡**内及大观园女儿们处提到的暖阁,也是这类。
另一类是一种坐北朝南的阁楼,其内既可以设炉取暖,又可以采光取暖,让人在冬天享太阳的沐浴和安宁。老舍在《正红旗下》提到:在“安上玻璃窗,改成暖阁”的亭子里饮酒,也是指这后一种暖阁。《红楼梦》第53回祭宗祠:“宁国府从大门、仪门、大厅、暖阁、内厅、内三门、内仪门并内塞门,直到正堂,一路正门大开,两边阶下一色朱红大高照,点的两条金龙一般。”此处的暖阁便是后者。其位置的经度在宁国府的中轴线上。同一回中贾母从宁国府回荣府,“一时来至荣府,也是大门正厅直开到底。如今便不在暖阁下轿了,过了大厅,便转弯向西,至贾母这边正厅上下轿。”此处的暖阁,也是后者。由此,荣国府这类暖阁的纬度和经度均基本可确定,其位于荣府中轴线上,南大厅与内仪门之间。此处还暗补出了其左侧便是东西穿堂,此处是下轿或换轿之地。第3回林黛玉进荣国府,走的是西角门,并不经中轴线上的一系列建筑,但换轿转弯之处,应与此在同一纬度上。既有研究,标出此类暖阁的,葛图、童图、黄图,均与文本不符,唯孟图、徐图可取。
(4)宝玉婚房。对于宝玉婚房,唯孟图(图8)和黄图(图9)提及。孟图是在葛图的基础上,于李纨相对应的位置标出了“宝玉结婚处”;黄图将荣禧堂之北、王夫人院以西的地带,设计为宝玉婚房。以书中第96回文字:贾政“将荣禧堂后身王夫人内屋旁边一大跨所二十余间房屋指与宝玉,余者一概不管”。王夫人住所在荣禧堂的东侧,满足王夫人住所旁边且荣禧堂身后这两个条件者,当为黄图所标记之处,应予采纳。但笔者也考虑了另外一种可能:借鉴葛图(图4)荣禧堂之后存在两个院落的设想,如果西边的院落为李纨,东边靠近王夫人的为宝玉,也能满足“荣禧堂后身王夫人内屋旁边一大跨所”的条件,且与通部文字不相冲突,也符合满文化长居西的习惯。
3、抱厦、倒厅、夹道、凤姐院、李纨院、府内院落角门、西花墙、小过道子的位置
(1)抱厦、倒厅。书中“三春”临时住所、周瑞家的送宫花之路线、凤姐院粉油大影壁墙对面的建筑、刘姥姥候传之所,均涉及到抱厦、倒厅。
既有的研究中,在抱厦、倒厅上存在的分歧,一是建筑物的性质,一是建筑物的位置,再一是该建筑物与其他相关建筑物的关系。具体而言,将凤姐院对面的抱厦/倒厅(书中第3回称作抱厦,第6回称作倒厅),一是如周图(图2)将倒厅置于荣国府正院与贾母院之间的南北向夹道上。二是如葛图(图4)将抱厦认定为荣国府正院中轴线上荣禧堂之后的位置。三是如胡图(图7)将其视作荣禧堂西侧跨院房屋之后的建筑。而将“三春”临时住所的抱厦,一如周图将之理解为荣国府正院中轴线上荣禧堂之后的位置。一如黄图(图9)将之置于东廊上王夫人小正房之后。一如徐图(图11)将之置于李纨正房之南。
“抱厦”是依附于主体建筑物的辅助性建筑,可以在主建筑物之前,也可以在主建筑物之后,甚或三面包围主建筑物。“倒厅”,则是抱厦的一种,专指与正房朝向相反,在正房后面的倒座的厅房。仆人丫鬟们,常在正房之外的辅助性建筑如两廊、抱厦中休息,以听候主人的召唤。宁荣二府中,多处提到抱厦、倒厅,是较为“普遍”的辅助建筑物,很多地方都存在。在贾母后院以东、荣禧堂以北、东小院王夫人房后以西这一地带,所提到的抱厦和倒厅,应是同一概念,即:主体建筑物之后、坐南朝北的建筑。换句话说,书中此处的倒厅,可以视作是主体建筑物之后的抱厦。
这一地带能够形成抱厦或倒厅的,应有三处:荣禧堂之后荣国府正院中轴线上、东小院王夫人房后、与王夫人房呈对称关系之处。而周图(图2)将凤姐院对面的倒厅置于无依托的夹道上,徐图(图11)在明确“三间抱厦”之前提下,置于耳房之后,则均值得商榷。因倘若耳房有之,则正房必有之,这便贯通一起,而不会是三间;且书中明确,“三春”住所的抱厦,在王夫人“这边房后”。故此主张,应当排除。从这一带有可能形成抱厦/倒厅的三个处所来看,它们与夹道、凤姐院、李纨院等分别存在的对应关系,可以从如下几处思考。
书中第7回:“将迎、探、惜三人移到王夫人这边房后三间小抱厦内居住,令李纨陪伴照管。”书中第3回,王夫人“时常居坐宴息”亦不在这正室。所提“这边房”,当指东小院的三间正房。书中第3回:“王夫人忙携黛玉从后房门由后廊往西,出了角门,是一条南北宽夹道。南边是倒座三间小小的抱厦厅,北边立着一个粉油大影壁,后有一半大门,小小一所房室。王夫人笑指向黛玉道:‘这是你凤姐姐的屋子’”。书中第6回:“先到了倒厅,周瑞家的将刘姥姥安插在那里略等一等。自己先过了影壁,进了院门。”
以上四处文字,可以理解为:其一,“三春”临时居住的抱厦,应是东小院王夫人三间小正房后面的抱厦,且与李纨住所不远。其二,凤姐院门正南,也有一个抱厦,书中第6回也称倒厅。凤姐院与抱厦之间,有一条“南北宽夹道”,夹道与凤姐院门之间有座“粉油大影壁”。但至此,这两个抱厦之间的关系,抱厦与夹道、李纨院的关系,仍不能明确。需要结合“南北宽夹道”、角门、凤姐院等,才便于辨清各方的关系。
(2)夹道、府内院落角门、凤姐院。既有的研究对于这条“夹道”的理解,排除难以成立的周图(前述,因周图将倒厅置于无依托之上),仍存在三种分歧:一是如葛图(图4)理解为南北走向而东西较宽的夹道,并置于荣国府正院的中轴线上;另一如黄图(图9)理解为东西走向而南北较宽的夹道,并置于后廊之北,与后廊平行;再一如徐图(图11)理解为与葛图相同的南北走向而东西较宽的夹道,但位置在荣禧堂西侧耳房相通北位置。
书中第3回并未明确该夹道的走向,但第7回的文字,可以大致推出这条道路的走向:“那周瑞家的又和智能儿劳叨了一会,便往凤姐儿处来。穿夹道从李纨后窗下,越过西花墙,出西角门进入凤姐院中。”
此一段文字,倘若夹道以南北走向来分析,“穿夹道”则有两种穿法:其一是自抱厦向西横穿(即横穿马路方式的“穿”)。因凤姐院在夹道的北面,与夹道是同一经度上,而依此种“穿”的方式,横穿过了夹道,也就把凤姐院甩在了经度上的后面,与书中:夹道、李纨后窗前、西花墙与西角门、凤姐院的行走路线顺序不符。其二是沿着夹道方向向北(即穿胡同方式的“穿”)。如此理解,具体到徐图(图11)的布局,其在李纨院西北角开一西角门,虽能实现在“李纨后窗下”经过之目的,但在“夹道、李纨后窗下、西花墙、西角门”路线上,便将夹道置于了无用之地。另外,徐图将凤姐院的主体置于贾母后院之中,是否还有必要沿夹道退回而穿过那条东西穿堂进入贾母后院姑且不论,其位置也不符合建筑美学。而具体到葛图(图4),将凤姐院置于了荣国府正院的中轴线上,而将李纨院偏离中轴线,似既与琏凤侄子、侄媳的身份不符,也与琏凤同荣国府*奶大**奶李纨的关系不符。而且,于中轴线上置一“小小一所房室”的凤姐处所,从建筑美学上,也难以成立。再者,在到达凤姐院之前,一路向北,虽能实现经过李纨院“外”,但并不能在到达凤姐院之前实现越过西花墙和西角门,而后到达凤姐院的路线。因而,主张“南北宽夹道”为南北走向者,均难以找到成立的理由。笔者以为,第3回提到的是“南北夹道”,且夹道在西角门之西,文中表述是:“出了角门,是一条南北宽夹道”:而第7回提到的只是“夹道”二字,且夹道在西角门之东,文中表述是:“穿夹道……,越过西花墙,出西角门”。笔者以为,二者所指并非一个夹道,前者是南北走向;后者是东西走向。
至于角门,荣国府除府门有角门外,荣国府内部的各院落,大都有角门。在府内院落角门上发生人物活动最多的,是荣禧堂后身的角门。第3回“王夫人忙携黛玉从后房门由后廊往西,出了角门,是一条南北宽夹道”,在“角门”处有脂批:“这是正房后西界墙角门。”即,横在夹道上的西角门,其在经度上位于荣禧堂后身西界墙向北的延长线上。由此,从对称角度而言,东角门当在荣国府正院东界墙的延长线上。即,这是两个横拦在东西向“夹道”上的东、西角门。第8回贾宝玉要去梨香院探薛宝钗,“若从上房后角门过去,又恐遇见别事缠绕,再或可巧遇见他父亲,更为不妥”。此处的“上房”,指荣禧堂。此处的“后角门”,应指荣禧堂后身横在夹道上的东、西两个角门。因为,其背景是宝玉要从贾母后院向东过穿堂经凤姐门前走“南北宽夹道”那条近路。
(3)李纨院、西花墙。关系李纨院位置最为核心的表达,是第7回周瑞家的“穿夹道从李纨后窗下越过西花墙,出西角门进入凤姐院中”一句。黄图(图9)将李纨处所置于抱厦的同侧,此可实现能够“从李纨后窗下”过之目的;但黄图将西角门东移到了荣禧堂后身的东半部,则就失去合理性,无主于“谁的”西角门了。倘若视作东小院王夫人处的,那么其西侧更应还有门。
笔者也曾试着在黄图的“宝玉婚房”位置,设置为东西两个院落,东侧仍为宝玉婚房,西侧为李纨院。但是,即便这能够实现从李纨院的后面经过,然仍不能实现“后窗下”这一条件。特别是己卯、庚辰、杨藏本,此段中还另有18字在其中,为:“那周瑞家的穿夹道,隔着玻璃窗户,见李纨在炕上歪着睡觉呢,遂从李纨后窗下越过西花墙,出西角门进入凤姐院中”,这就更无法满足这些条件。因为,清代完整的院落,这等主人卧室之后是有下人住的后罩房的。以周瑞家的之品性,即便是个扒头探脑之人,其在院外无论如何也是到达不了李纨“后窗下”的,更不可能看到“睡觉”。只有周瑞家的从李纨院中走过,才勉强能够解释这种状况。
至于“花墙”,一般是砖瓦砌成可透视或镂空的墙,也有用花木编成的矮墙。第7回周瑞家的“从李纨后窗下越过西花墙”,此“西花墙”当是李纨院的西界墙。“花墙”的二字,作者偏用于此处,似别有寓意。或说作意欲要将“花”字必用于心如“槁木死灰”的李纨之处。从荣国府的“花墙”到稻香村“如喷火蒸霞一般”的几百株杏花,看来作者是刻意要反映寡嫂“杏帘在望”这一思想。
“小过道子”是与凤姐院相关的一条过道。凤姐院落的自身结构,它首先是“小小一所房室”,院内有厢房,书中第105回提到“东跨所”,即是东厢房。院中有二门,来旺、兴儿即在二门之外伺候。院门是个“半大门”,有“才总角的小厮”垂手侍立。门外是一个“粉油大影壁”。凤姐院落的北部,有一条“小过道子”,凤姐北临这条“小过道子”的建筑,其后面有台矶,即贾瑞被倒灌一身尿粪之处。凤姐的建筑群,是一个可以通向荣府宅院后门、东有西角门、南有倒厅、西有穿堂,既便于仆人进入找凤姐处理事务,而又与荣国府内宅成半封闭状态的独立结构。
综上,笔者对上述几处建筑物的状况和关系做出这样的推测:其一,“三春”所住的抱厦,是东小院王夫人处主建筑物后的抱厦。其二,凤姐院正南的抱厦/倒厅,是与王夫人正房后的抱厦呈对称关系的西侧小院主建筑物后的抱厦/倒厅。其三,第3回提及的“南北宽夹道”与第7回提及的“夹道”,不是一个夹道,后者是在抱厦的北侧与后廊平行的夹道,是荣禧堂主体建筑东西界墙的北延长线上横着一条东西向的夹道,夹道上横跨着东、西两个角门,并与贾母后的东西穿堂在同一个纬度上,是荣国府后身建筑群的通道,也是贾母后院与荣国府中路后院各院落连通的纽带。其四,对李纨院“后窗下”的描写,笔者认为此是一个为了照应到“送宫花”要牵出“十二钗” 的虚构之笔,并不能将其位置真实而完全合理地标记出来。从有助于文本阅读的角度出发,笔者仍将李纨位置标将出来(如图12)。如此,第3回王夫人携黛玉所走的路线是:沿王夫人正房后的后廊往西,而后跨上这条与后廊平行的东西走向的东西向“夹道”,出西角门便见“南北宽夹道”的南侧是与东小院的三间抱厦呈对称关系的抱厦厅,北边便是大影壁,其后是凤姐院。周瑞家的送宫花的路线是:周瑞家的从东小院王夫人小正房后的抱厦出来,向北横穿过这条东西向的夹道,顺脚横跨夹道进入北侧的李纨院院门,兜一圈后出李纨院的西花墙,再出西角门,其右手便是凤姐院。沿南北走向“南北宽夹道”至凤姐处。从凤姐处出来右转向西,即是连通贾母后院的东西穿堂。周瑞家的带刘姥姥见凤姐的路线是:由荣国府后门至凤姐院对面的倒厅,也即荣禧堂西面与王夫人正院后面抱厦呈对称关系的抱厦。刘姥姥在此倒厅候传,周瑞家的自己由此向北穿过夹道,过影壁墙,进入凤姐院门。周瑞家的去梨香院的路线是:从王夫人上房后身出来,向东出东角门,至东小院,而后转北至梨香院。如此理解这一组建筑物的位置与关系,是与文本最少冲突的思路。
4、府门角门、穿堂、梦坡斋、银库、帐房、体仁沐德、马棚、水井及惜春和尤氏住所的方位
(1)府门的角门。除非重大事件发生和重要人物出入,府门的正门通常是不开的。人们日常走的,是角门,又称便门。荣国府大院和大观园的正门与后门的两侧,都有东西角门;大观园的角门就更多一些。在荣国府西角门位置认识上的分歧,既有的研究呈现出两种观点:一如苕图、周图等,将其置于荣国府正院与贾母院交界的地方;另一如葛图、宋图等,将其置于贾母院的中轴线上,从西角门可直达贾母院的垂花门。
第3回黛玉进贾府:“却不进正门,只进了西边角门。那轿夫抬进去,走了一射之地,将转弯时,便歇下退出去了。后面的婆子们已都下了轿,赶上前来。另换了三四个衣帽周全、十七八岁的小厮上来,复抬起轿子。众婆子步下围随至一垂花门前落下。”此一段表述很清楚,西角门并不在贾母院的中心轴上,需要向西“转弯”才能到垂花门。
第6回刘姥姥一进荣国府:“来至荣府大门石狮子前,只见簇簇的轿马,刘姥姥便不敢过去,且掸了掸衣服,又教了板儿几句话,然后□[彳贞]。到角门前,只见几个挺胸叠肚指手画脚的人,坐在大板凳上,说东谈西呢。”此一段则表明,这西角门与正门尚有一段距离,另有几个“坐在大板凳上”专门把门的人,即它不在正门旁边紧邻的边门处。倘若将此角门理解为“一门三洞”与正门紧邻的边门,则把门的人员就不应单设一班人马,“只见”二字也难通。因而,笔者推测其在贾母院与荣府正院的交界之处,可能性为最大。
(2)穿堂。书中提及到的穿堂,有三个。两个东西走向的穿堂,其一在贾母院垂花门之前,通荣府正院内仪门与南大厅之间的地带,是贾母院与荣府正院前院的通道。其二在贾母后院,通凤姐院与荣禧堂之间的地带,是贾母院通荣府正院后身各院落的通道。另一个是南北向的,位于贾母院内,是垂花门与“小小的三间厅”之间的通道。既有的研究,除孟图(图8)理解有误之外,诸家对穿堂的认识比较一致。不赘。
(4)梦坡斋。梦坡斋的具体位置,书中不详。但它的大致方位还是可以推测的。第8回写道:宝玉要去梨香院探望宝钗,“若从上房后角门过去,又恐遇见别事缠绕,再或可巧遇见他父亲,更为不妥,宁可绕远路罢了。……仍出二门去了,……谁知到穿堂,便向东向北绕厅后而去。偏顶头遇见了门下清客相公詹光、单聘仁二人走来,……二人点头道:‘老爷在梦坡斋小书房里歇中觉呢,不妨事的。’一面说,一面走了。说的宝玉也笑了。”
宝玉从贾母处出发去梨香院,最快捷的路线是:贾母后院向东,经东西穿堂,横穿南北宽夹道,穿过西角门,沿东西向夹道,穿过东角门,至东小院东侧转向北。但书中说,宝玉不肯走“上房后角门”即东西向夹道上有东西两个角门之路,主要是恐惧严父在上房或耳房或东小院王夫人小正房,担心浩浩荡荡的队伍会惊动到贾政。因而,不得不“宁可绕远路”,规划出第二方案:从贾母处向南,出垂花门后转向东,穿过垂花门之南通往荣府正院的东西穿堂,经南大厅之后和内仪门之前的地带,继续向东至贾赦院西墙界、荣府院内东小院东边的南北通道上,然后转向北,一路到达梨香院。
其刚过穿堂,便撞上了二清客,并得知政老爷在“梦坡斋”歇中觉,宝玉心里便踏踏实实,“笑了”。由此便知,“梦坡斋”是远离宝玉到梨香院所规划的路线附近的。即,梦坡斋既远离南大厅与内仪门之间的这段路的附近,也远离东小院东边那条南北通道附近,即梦坡斋当在西至贾母院、北至宝玉放弃的那条东西向的夹道路线、南与东至宝玉第二方案即实际行走路线,构成的矩形之中心。只有均远离上述东南西北四条线,才会坦然地“笑了”。葛图、宋图、孟图、黄图、李图、徐图凡涉及到“梦坡斋”的图,因与此条件相犯,特别是将之置于宝玉必经路线上,宝玉“笑了”便更难成立,故不予采纳。
(5)银库、账房。第8回中,宝玉“于是转弯向北奔梨香院来。可巧银库房的总领名唤吴新登与仓上的头目名戴良,还有几个管事的头目,共有七个人,从帐房里出来,一见了宝玉,赶来都一齐垂手站住。独有一个买办名唤钱华,因他多日未见宝玉,忙上来打千儿请安,宝玉忙含笑携他起来。”由此便知,依次出现的银库、仓上、账房均在东小院东侧的这条过道上。而标记出账房等这些建筑物位置的,有童图、宋图、徐图。但童图将此进进出出处理繁乱事务的三个场所,置于荣府南大厅与内仪门之间威严肃穆的甬路两侧,既与文本不合,也不合传统文化。仪门甬道如此庄重之礼仪之地,万不能将琐碎事务性机构置于此地。因而,需重新标记。
(6)体仁沐德。对于体仁沐德的位置,书中第18回写到:“那版舆抬进大门、入仪门往东去,到一所院落门前,有执拂太监跪请下舆更衣。于是抬舆入门,太监等散去,只有昭容、彩嫔等引领元春下舆。只见院内各色花灯熌灼,皆系纱绫扎成,精致非常。上面有一匾灯,写着‘体仁沐德’四字。”由此可知,在仪门与南大厅之间向东,有通往“体仁沐德”的路。从后文“元春入室,更衣毕出,复上舆进园”来看,元妃进园所走的路线,似是宝玉去梨香院经过的东小院东侧的那条南北通道。由此,“体仁沐德”的位置应是东小院南部坐北朝南的一处院落,所走的那条路,也应是直通大观园正门的通道。
(7)水井。第32回,“忽见一个老婆子忙忙走来,说道:‘这是那里说起!金钏儿姑娘好好的投井死了!’袭人唬了一跳,忙问:‘那个金钏儿?’那老婆子道:‘那里还有两个金钏儿呢?就是太太屋里的。前儿不知为什么撵他出去,在家里哭天哭地的,也都不理会他,谁知找他不见了。刚才打水的人在那东南角上井里打水,见一个尸首……”。金钏是荣府宅院内王夫人的丫鬟,而非大观园和东大院的丫鬟,那婆子说的“东南角”,应是贾政院的东南角。这个水井的位置,当在贾政院的东南角也即王夫人处所的正南,为妥。
(8)马棚。荣国府的宅院,在南北向上可分三段:仪门以南为南院;贾政上房之后的夹道以北,为后身。第39回,丫鬟回说:“南院马棚里走了水”,贾母等人出外瞧时,“只见东南上火光犹亮”。说话的环境,是在贾母处。仅看此处,这“南院”“东南”方向,基本可以排除是贾母院内的南部之可能。因为,荣国府西路贾母院落,是南北向很长、东西向较窄的院落,如果是贾母院的南端,则应用“正南”而非“东南”来表述。对此,于培良有不同观点,认为此应理解为“贾母院所在的西路建筑群的南院为妥。”理由是“贾赦院所在的荣国府东路与贾母院隔着中路建筑群,且是隔断开的院落”[15]。但综合其他信息,此尚未构成足以否定黄图的充分理由。在第71回中,周瑞家的“传人立刻捆起这两个婆子来,交到马圈里派人看守。”这马棚和马圈,当是一处。将牲畜和捆人的这等乱糟糟之马圈,置于本该颐养天年的清静之地的贾母院南部,似不妥当,孝子贾政心中也未必坦然。余幼时于乡间所见,马棚无不临近水井;余幼时夜间看远处失火,常常是映红半边天,任何建筑物也挡不住映红的天空。因而,于培良的观点尚不足以构成*翻推**黄图的充足理由。另外,书中总未提及过 东角门 的出入情况,而太太、公子、小姐们走的西角门。那么,下人及牲畜常走之门是哪一个?由此,笔者认为黄图将马棚和水井集于荣国府正院的东南角一隅,仍是较为妥当的。
(9)惜春与尤氏住所。第102回,“到了宝玉娶亲,林黛玉已死,史湘云回去,宝琴在家住着,园中人少,况兼天气寒冷,李纨姊妹、探春、惜春等,俱挪回旧所。”此“旧所”,极为笼统,且李纨姊妹在荣府宅院内也无旧所。此应当视作泛泛而指的荣国府宅院。至第109回惜春之住所才基本明朗。妙玉问惜春:“你如今住在那一所了?”惜春道:“就是你才进来的那个门东边的屋子。你要来很近。”“那个门”指的是大观园的“腰门”。此一段之前,有“只见看园内腰门的老婆子进来,回说:‘园里的栊翠庵的妙师父知道老太太病了,特来请安’”一段文字。如此,惜春住所的经度基本明确——大观园腰门南面的东侧。第106回,“可怜赫赫宁府,只剩得他们婆媳两个并佩凤偕鸾二人,连一个下人没有。贾母指出房子一所居住,就在惜春所住的间壁,又派了婆子四人、丫头两个伏侍。”表明尤氏成为了惜春的邻居。第108回,宝玉要“到珍*奶大**奶那里逛逛去,……走到尤氏那边,又一个小门儿半开半掩,宝玉也不进去。只见看园门的两个婆子坐在门槛上说话儿。……婆子道:‘天天是不开的。今儿有人出来说,今日预备老太太要用园里的果子,故开着门等着。’”宝玉“果见腰门半开,宝玉便走了进去。”在尤氏门前能看到腰门,表明尤氏不在惜春之东,而在惜春之西。即,惜春和尤氏均在出腰门路上的两侧,均能方便地看到腰门。同是这一回,贾政“因园子接连尤氏、惜春住宅,太觉旷阔无人,遂将包勇罚看荒园。”如此,惜春、尤氏住所纬度基本确定,其后院墙接连大观园。这个“腰门”,当是之前“王夫人大房之后常系他姊妹出入”的那个角门。
三、关于梨香院与薛宅的讨论
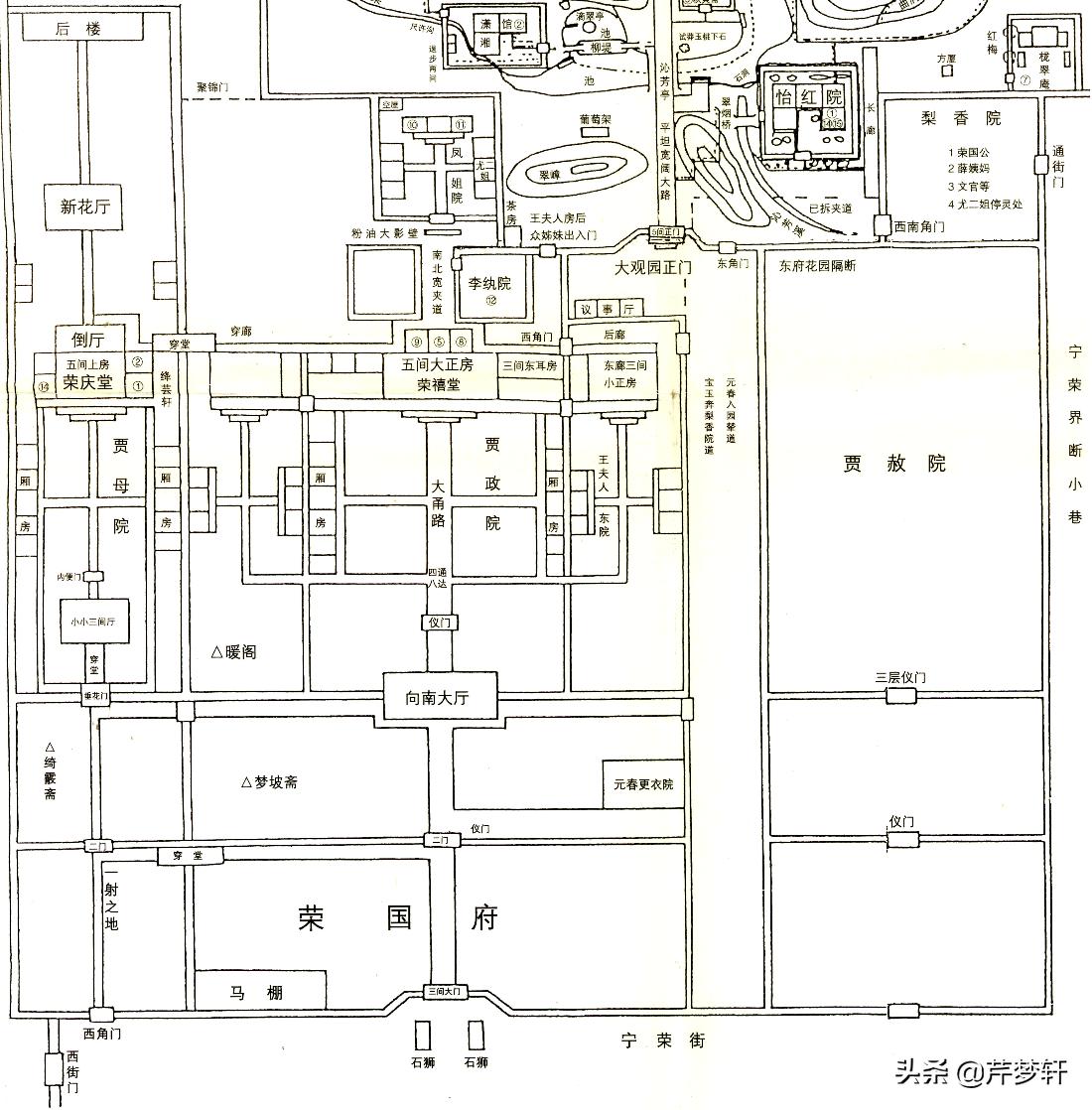
综上而言,黄云皓图和葛真图存在着更多合理性的成分。笔者采取“剪刀加浆糊”的方式,在黄云皓图的基础上,吸纳其他各家图的合理因素,重新进行拼合,编制出新的《荣国府院宇示意图》(见图12)。在编制中,仍有诸多诸如梨香院、薛宅等,在文本中存在着明显冲突的几个难以确定的问题,需要进行探讨,并作出编制的说明。这也应是笔者之所以那样编制而必须予以解释的责任。
1、关于苕图
讨论苕图,目的在于寄希望能够对讨论梨香院、薛宅,有所启迪。前文已述,上述诸家对荣国府院宇的认识,存在着分歧。多数分歧是由于研究者自身的认识问题造成的。但也无法排出这些分歧之中,也有版本因素导致之可能。笔者对上述研究所基于的版本,给予了特意地关注。遗憾的是,除周汝昌先生申明有明确的版本依据外,多数并未注出。
苕图由于比较粗糙,且因年代久远,图像辨认困难,且存量极少难以为一般研究者所能见到,而常常被人们所忽视。该图之所以将大观园置于宁荣二府之间,前已述及,是因苕溪渔隐注意到了“先令匠人拆宁府会芳园墙垣楼阁,直接入荣府东大院中。荣府东边所有下人一带群房,尽已拆去”等文字。

图12. 甄道元 《荣国府院宇布局平面图》
但苕图这样安排,却出现了诸多难以解释的问题。其一,大观园成了临宁荣街的独门独户的院落,失去了“后花园”的属征。其二,无法解释元妃入园的路线。其三,通往贾母“聚锦门”、通往王夫人的腰门,均无法对应……。但是,苕图为什么会出现如此“荒诞不经”的事情呢?而细考究起来,苕图却有着其合理之处。
首先,苕图将薛家后来客居的薛宅置于大观园东南角上,这不仅在《红楼梦》后40回中,即便是在脂本《石头记》前80回中,也与文字并不冲突。书中明确,薛宝钗从大观园回薛宅,常走的就是大观园的东南角门。
另外,细抠后40回,如第97回薛宝钗出阁至新房的行走路线,凤姐说:“不必走大门,只从园里从前开的便门内送去”。此句如果以脂本《石头记》来解读,则十分令人费解,因要白白地绕了一个大圈,反而不经大观园而直接向西,倒是最为便利。而如果以苕图来解释,这些文字则又顺理成章,极能说得通。再如,第98回薛宝钗“回九”的路线也是如此:从新房“用两乘小轿叫人扶着从园里过去”,也是如此。然笔者认为,《红楼梦》后40回,是“增删五次”的底稿,其只能反映作者早期的创作构思,而非作者终意。
笔者一向认为,曹雪芹“增删五次”的“脂本《石头记》”,是在“旧稿《红楼梦》”的基础上修改的。[16]程高以“脂本《石头记》”前80回替换了“旧稿《红楼梦》”的前80回,而与“旧稿《红楼梦》”的后40回进行了对接,才成为了今天我们看到的120回“程本《红楼梦》”。替换的原因是,改写过的“脂本《石头记》”前80回,要比“旧稿《红楼梦》”的前80回,具有更高的艺术水平。那么,被替换掉的“旧稿《红楼梦》”前80回,也就是与后40回本来为一个系统前80回,是个什么样子?我们已不得而知。而苕溪渔隐看到的又是哪个阶段的本子,才形成了对大观园的这等认识,也不得而知。
笔者无意去追逐该“旧抄本”,也无意去探究苕图将大观园如此处置的因由与合理性。笔者所要谈的是,苕图给了人一启发——薛宅、梨香院所出现的位置上的文本冲突,可能是版本造成的,苕图反映的应是早期文字。而一味通过现有文本去确定这些院落的准确位置,可能是没有意义而且也是无法实现的。但是,由于作者在增删改写过程中,将旧稿中的一部分文字直移到了修改稿中,又由于传抄者将先后不同时期文字,传抄到了一个系统之中,这对今日的研究者带来了一定的困难,需要分析并作出判断,哪些才是作者最后的创作意图,而免受早期文字的干扰。
2、关于梨香院
对于梨香院位置的争议,一种观点如周图(图2)将之理解在大观园南界墙之南,即“荣府旧园”内贾赦宅之后与大观园之间;另一种观点如黄图(图9)是将之理解在大观园之北。且,各有文本上的依据。但不管哪种观点,总与荣国府宅院和大观园相关,由二者决定。
第3回“院中随处之树木山石皆有”处,有一脂批:“为大观园伏脉。试思荣府园今在西,后之大观园偏写在东,何不畏难之若此?”此批之意:似在脂砚斋的头脑中,现实生活里或早期的文本里,府院的西侧是个花园,而到这里的作品中却调换了个,放在了东边,这很不利于作者、脂砚斋的脑筋转换,也增加了写作的难度。但人们从未发现过园子在西侧的版本,而查江宁织造府邸,曾做皇上南巡时行宫的花园,却是在府邸的西侧,也就是曹寅的“西园”。脂砚斋认为,之所以要从西挪到东,是为了避个“西”字。第13回“西帆楼”处脂批:“何必定用‘西’字?读之令人酸鼻”。在脂砚斋看来,“西”字能够勾起曹家痛苦的回忆,这是将花园写在“东”边的原由。在第2回“后一带花园子”处也有一脂批:“‘后’字何不直用‘西’字?恐先生堕泪,故不敢用‘西’字。” 这“东”也罢,“后”也罢,都与避“西”有关。故而,作者将大观园艺术化为了府院的东边,且荣国府东部有园林,进而又“转至北边”,形成了“刀把形”的结构,且与“西”字不相犯。所以将大观园置于东边和北边,此应是作者后期构思。陈其泰也发现了这一问题,认为后40回“小家气”,实际上是旧稿远没有“增删五次”的那么恢弘。由此,也能判断出何者为曹雪芹的后期构思。
书中对梨香院位置的描写,第4回“咱们东北角上梨香院,一所十来间房……请姨太太和姐儿哥儿住了甚好。”“原来这梨香院,乃当日荣公暮年养静之所,小小巧巧,约有十余间房屋,前厅后舍俱全;另有一门通街,薛蟠家人就走此门出入。西南有一角门,通一夹道,出夹道便是王夫人正房的东边了。每日,或饭后或晚间,薛姨妈便过来,或与贾母闲谈,或与王夫人相叙。……况且这梨香院相隔两层房舍,又有街门另开,任意可以出入……。”第7回周瑞家的送走刘姥姥之后向王夫人回话时,“谁知王夫人不在上房,……便转出东角门至东院,往梨香院来”。第8回到梨香院探望在家养病的薛宝钗所行走的路线一段文字:“到了穿堂,便向东向北,……于是转弯向北,奔梨香院来”。
这些文字包含的意思主要有:其一,梨香院的位置在荣府“东北角上”。其二,是“当日荣公暮年养静之所”,即属于“荣府旧园”,当在贾赦宅之后。其三,院落有西南角门,出西南角门是夹道,夹道向南便是王夫人东小院的东侧。其四,距离后街不远,“相隔两层房舍”,另有临街的门,可自由出入。其五,在梨香院与王夫人处之间来往十分便利,薛姨妈等“晚间”可以方便来回,即梨香院与王夫人处所之间,不似有青山斜阻、石磴穿云、清溪泻雪、山坳盘道之地形。
至此,似基本能够确定下梨香院的大致方位:在经度上,于贾赦宅之后;在维度上,与后街“相隔两层房舍”,即大观园之北。这个判断,结合第23回文字,黛玉在“沁芳闸桥”掩埋了桃花之后回潇湘馆的路上,“刚走到梨香院墙角上,只听墙内笛韵悠扬,歌声婉转。”沁芳闸在大观园的北部,潇湘馆在大观园的南部,由沁芳闸回潇湘馆的路上,可以将梨香院理解为距离大观园南部不远之处,即不规则的大观园外一处。
然细究“另有一门通街”一句,其位置便令人感觉蹊跷了。荣国府的东北角、贾赦宅之后,除了东侧有条“旧私巷”之外,向东、向南、向西并无可临街之处。这“临街的门”,只能理解为其有个后门,所临为后街。换句话说,从王夫人住所到后街,不过是夜间来往方便的梨香院一个院落之距离,再加上“相隔两层房舍”。如此,在这段距离之间,如何安置下“三里半大”偌大一个大观园?此实乃蹊跷。笔者推测,大观园并“不是殿方之基”,其后街应当并非是东西笔直的,极有可能东部梨香院一带,南北两条街之间,距离很近。这只是一种猜测,图12中以虚线表示,以示不确定。
至第69回,尤二姐停灵梨香院,贾琏搂着大哭只叫“奶奶,你死的不明,都是我坑了你!”贾蓉忙上来劝:“叔叔解(介)着些儿,我这个姨娘自己没福。”说着,又向南指大观园的界墙……。”凤姐“且往大观园中来。绕过群山,至北界墙根下往外听,隐隐绰绰听了一言半语……”。此段文字之意,显然梨香院在大观园的北部。这个“界墙”之北,应是大观园内子墙与荣国府大院的外墙之间地带,即梨香院位于此一地带。如此,我们可以理解为作者在改写过程中,将梨香院移至了北面;也可以说作者把大观园的南北向纵深,扩大了。然令人费解的同是这一回,“贾琏嫌后门出灵不象,便对着梨香院的正墙上通街现开了一个大门。”这“正墙上”自然指南墙。而在南墙上开一个通街的门,其位置应在后街之北才是。因为,如果其位于后街之南的大观园内子墙与荣国府大院的外墙之间地带,这一地带既不可能称作“街”,且梨香院的南墙是之南是大观园,此位置便无法成立。这等看上去的文本冲突,也可能只能理解为贾府后街并非笔直的,而至梨香院一带,向南弯曲了,致大观园此处的南北向上比较狭窄,贾府前后两条街距离较近,才为贴切。即并非“殿方之基”。
如此看来,梨香院的经度虽可确定,但其纬度却无法确定。笔者鉴于梨香院方位上存在的文本冲突且各有依据,在绘图时将梨香院采取虚线的方式,表示位置尚不确定。
3、关于薛宅
关于薛家从梨香院搬出之后的客居之处,较少有人以图示方式来进行讨论。沈治钧《红楼梦成书研究》一书中,指出了书中薛宅文字冲突的数组事例[17],但并未确定薛宅的位置,也没有以图来示之。纵观《红楼梦》以书,对薛宅的表述,既是模糊的,也是矛盾的。
对于薛宅的方位,在第18回“薛姨妈另迁于东北上一所幽静房舍居住”。这个“东北”显然是站在荣国府的角度而言的。至于此宅之所属,书中也未提。
第59回,宫中老太妃死了,贾母等众人都去参加治丧活动,临走之前叮嘱把门都给锁上。写到:“园中前后东西角门亦皆关锁,只留王夫人大房之后常系他姊妹出入之门,东边通薛姨妈的角门,这两门因在内院,不必关锁。”之中“东边” 通薛姨妈的的角门,说明薛宅在大观园的东边;而“内院”二字,则说明薛宅在荣国府之内。
第78回,宝钗向王夫人解释搬出去的理由:“自我在园里,东南上小角门子就常开着,原是为我走的,保不住出入的人图省事也从那里走,又没人盘查。设若从那里生出一件事来,岂不两碍脸面?”由此看来,薛宅在大观园的东部偏南,即大观园的东南。且,薛宅距贾府不远,有一条他人不走的专道。如果将“东北上一所幽静房舍居住”理解为荣国府宅院的“东北”,则正好与梨香院位置相合。
第35回宝钗从蘅芜苑返回薛家,“因记挂着母亲哥哥,并不回头,一径去了。这里林黛玉还自立于花阴之下,远远的却向*红院怡**内望着,只见李宫裁、迎春、探春、惜春并各项人等都向*红院怡**内去过之后,一起一起的散尽了”,黛玉看着宝钗的背影与*红院怡**,是一个方向。此处,印证了宝钗回家走大观园东南角门、薛宅在大观园之东南。
第62回,宝玉一进角门,“宝钗便命婆子将门锁上,把钥匙要了自己拿着。宝玉忙说:‘这一道门何必关,又没多的人走,况且姨娘、姐姐、妹妹都在里头,倘或家去取什么,岂不费事?’宝钗笑道:‘小心没过逾的。你瞧你们那边,这几日七事八事,竟没有我们这边的人,可知是这门关的有功效了。若是开着,保不住那起人图顺脚,抄近路从这里走,拦谁的是?不如锁了,连妈和我也禁着些,大家别走。纵有了事,就赖不着这边的人了。’”此处,印证了大观园的东南角门是专为薛家开的,且薛家距此不远。
以宁荣二府的院宇结构,荣国府宅院的东北方向、大观园的东南方向的院落,只能是归属贾府的。在营建大观园之前,两府之间这一地带,有一条“私巷”;而营建大观园时,“私巷”两侧“连属”,纳入了大观园。即,薛家人出入薛宅,若不经贾府并无另路可走,也难以勾画出独门独院、能够不经贾府而直达薛宅的位置。即,薛宅似应在贾府属地之内。
但至第85回在贾母处为黛玉过生日,忽闻薛蟠命案,“薛姨妈见里头丫头传进话去,更骇得面如土色,即忙起身,带着宝琴,别了一声,即刻上车回去了”。由此看来,薛宅并不像前80回描述的距离荣国府宅院很近,而是要乘车往来。
第85回乘车赶回薛宅,“只见有两个衙役站在二门口”。这又表明薛宅是独门独户的院落,衙役不需经过贾府便可直达薛宅。由此看来,薛宅是独门独户的院落,属地似与贾府无干。
前文述及,第97回、98回薛宝钗在薛宅与荣府宝玉新房来往,要穿过大观园。从此处来看,薛宅又似在大观园之北。换句话说,后40回薛宅的方位,与前80回冲突,是两个不同系统的版本。
笔者认为,“脂本《石头记》”是在“旧稿《红楼梦》”基础上,经过“增删五次”改写而成的。“旧稿《红楼梦》”和改写的“脂本《石头记》”,对梨香院、薛宅、大观园以及荣府宅院的设置有所不同,“脂本《石头记》”对建筑物重新进行了构思。但在改写《石头记》的过程中,也将“旧稿《红楼梦》”中的部分文字,直移到了修改稿之中,且有的文字尚未来得及进一步理顺和剔除因改写与继承而造成的毛刺儿。笔者还以为,作者在由“旧稿《红楼梦》”改写为“脂本《石头记》”的过程中,对于薛宅的位置处理,可能把它由独门独院的院落,简化为了荣国府内梨香院的一个影子。笔者在绘制院宇平面图时,也同样将薛宅以虚线处理,以表示位置尚不确定。笔者还认为,文学作品并非纪实,既有从现实中来的一面,也有虚构的成分。“刻舟求剑,胶柱鼓瑟”,刻意要落实每一位置的方位,未必能够行得通。笔者讨论梨香院、薛宅的问题,目的并不在于必要澄清其具体方位,而是希望通过分析空间问题,能够引起人们对“空间问题或许也反映着成书过程”的关注,以便对成书过程的研究,有所启迪。
参考文献
[1] 资料来源:苕溪渔隐著《痴人说梦》,嘉庆二十二年丁丑,憓红楼刊本。
[2] 周汝昌.红楼梦新证[M].上海:棠棣出版社,1953:152.
[3] 周汝昌.红楼梦新证[M].北京:人民文学出版社,1976:152.
[4] 戴不凡.曹雪芹*迁拆**改建大观园[J].红楼梦学刊,1979(02):171.
[5] 葛真.大观园平面图研究[A].文化部文学艺术研究院《大观园研究资料汇编》[C],1979:附图.
[6] 童力群.贾府示意图说[J].黄冈师专学报,1982(2):54.
[7] 宋鸿文.大观园与贾府院宇示意图[A],红楼梦论集[C],贵州人民出版社,1983:10附图.
[8] 胡文炜.贾宝玉与大观园[M],华艺出版社,1995:197.
[9] 孟庆田.红楼梦和*瓶金**梅中的建筑[M].青岛:青岛出版社,2001:附图.
[10] 黄云皓.图解红楼梦建筑意象[M].北京:中国建筑工业出版社,2006:23.
[11] 李艳芳.红楼梦里梦红楼——贾府及大观园平面布局研究[D],邯郸:河北工程大学,2015:31.
[12] 徐建平.贾府建筑布局探讨[A],红楼梦研究[C].香港:香江出版社,2018(2):202.
[13] http://blog.sina.com.cn/s/blog_4a13ae670102vuhi.html.
[14] 第75回,邢大舅在抱怨邢夫人,“外面尤氏听得十分真切,乃悄向银蝶笑道:‘你听见了?这是北院里大太太的兄弟抱怨他呢。可怜他亲兄弟还是这样说,这就怨不得这些人了。’”
[15] 于培良.当代宁荣二府建筑绘画述评(下)[J].曹雪芹研究,2018(2):90.
[16] 甄道元,从程高序言看《红楼梦》的成书过程[C],红楼梦研究,2018(3):150-165..
[17] 沈治钧.红楼梦成熟研究[M].北京:中国书店,2004:260-265.
本文原发于《津沽文化研究》。