说在前面
《見山》解析:
缘由客厅书架电视柜上三个山形形状的胡桃木饰板而得名的,
每每坐于沙发之上,看向书架电视柜,
就会看见山形的胡桃木饰板,
仿若远眺于连绵山峰,故取名《見山》。
由此灵感,就有了开篇赵茂宇为朱老师创作的一首诗。
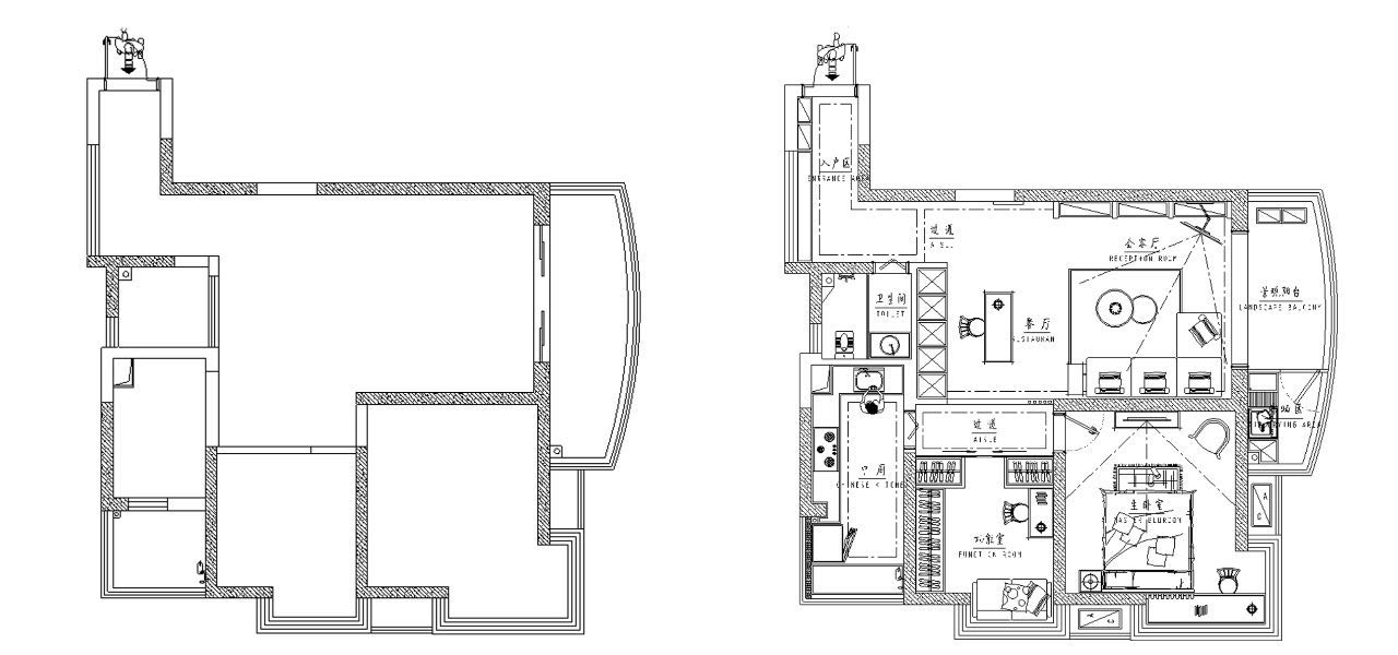
项目概述
楼盘地址:荣锦龙汇苑
设计团队:重庆琢信装饰
硬装设计:赵茂宇 软装设计:李 杨
户型面积:77.7㎡ 格局分布:两室两厅一厨一卫
设计风格:禅意中式 整体费用:28W
项目经理:雷厚德
合作商家:迪迪家居 力诚建材
户型解析

整个空间以白色为主,卧室采用了一个浅浅的绿,沙发是一个布艺的组合沙发,可以随意拼凑,更能体现实用性和舒适性,阳台的窗帘用了一个白色渐变灰色的纱,让飘逸的灵动感冲刺着整个会客厅,内阳台与客厅之间有做了一层深色的草帘,起到空间划分的同时又让客厅具有“犹抱琵琶半遮面”的隐约感,把传统中式中的委婉的装饰方式得到充分表达。

开门就能看见大门正对面墙上是一副猫版的《太平春市图》。左侧墙上的画来自莫高窟249窟,西魏《狩猎图》,南北朝的壁画自带一种现代抽象气质。
空间上,改变原本鸡肋房型,交换防盗门位置,为朱老师设计到顶柜子。



说它是客厅,也可以理解它是书房。
朱老师喜爱阅读,家里没有书房这一区域,
设计师与朱老师沟通后,把客厅与书房结合到一起。

简单的横版架,中间点缀的抽象山形板是书架的点晴之笔,
也是家的名字:【見山】。
它比如今市面上的中式书架或现代书架更有中国的韵味。

沙发背后这幅挂画,很符合朱老师的特点——喜欢传统,又叛逆不屑;穿汉服,却也热衷来一杯咖啡。不爱茶就是不爱茶,从不因为它贴了“中式”的标签而故作喜欢。



胡桃木书桌上摊开的是朱老师爷爷留下的书籍——《西厢记》
一盆文雅的植物在旁与之作伴。





朱老师信风水,主卧不能放置衣柜,索性我们打破惯性思维,
为朱老师设置春夏秋冬为主题的四个衣柜。
餐桌后墙面布置一面嵌入式衣柜作为冬装衣柜,
且柜门采用局部木质隔栅,烘托风格化主题。
唐代屏风爱用人物,朱老师已有侍女俑;
宋代文人画选择上,主色调、精度、比例都不太合适;
经过一系列斗争,最后设计师选择了朱老师喜欢的《桃源问津图》。
这屏风两侧也正是朱老师衣柜,用来放春秋衣物。


起居室依据朱老师习惯,我们将床设计在南北向,
格栅巧妙地弥补了床头背后的空,看上去更灵动。
梳妆台面对自然光,梳妆出来效果最佳。


屏风中间这扇打开,是次卧,
因为春秋衣柜占了次卧空间,所以次卧里面所剩不大。

偶尔父母来小住,
瞧!墙上全是朱老师收集的手办,
有时朱老师也会躲到里面来看书。


