
本文由绘四方郑州校区整理
2020考研即将到来
2021考研大军也已经开始复习起来
针对准备报考郑州大学的同学来说
及时的了解最新一年的变化
是显得尤为重要的
故四方推出院校解析专栏
为同学们复习更加明确/更加有方向
并且在文末我们为大家整理了
郑州大学建筑考研真题汇总
免费送给大家
1
郑州大学简介

▲郑州大学
郑州大学是国家“211工程”重点建设高校、国家一流大学建设高校和“部省合建”高校。郑州大学是一所综合性大学,学校拥有12大学科门类。其中,历史学院、美术学院、文学院、外语学院、公共管理学院、体育学院、马克思主义学院等院系能够为建筑学专业提供师资雄厚、涵盖面广的人文、艺术类课程。学校的城乡规划、风景园林、土木工程、建筑环境与能源应用工程、交通工程、城市地下空间工程、工程力学、环境工程、给水排水、地理信息系统等工科专业,以及郑州大学综合设计研究院有限公司、郑州大学城市规划设计研究院有限公司、智慧城市研究院等院所为建筑学专业提供了理工类相关课程支撑与共享实习实验空间与设施。
学校发展快速、学科门类齐全、实验室条件齐备等优势,为建筑学专业发展提供了良好的资源与平台,与美国、英国等41个国家和地区的205所知名高校建立校际合作关系,与美国威斯康辛大学、澳大利亚莫纳什大学、波兰华沙大学、白俄罗斯国立音乐学院等国外高校合作开展9个中外合作办学项目,在印度设立孔子学院,在美国设立孔子课堂。学校是“中俄语言文化高校联盟”创始成员,“中俄新闻教育高校联盟”发起成员,“中俄医科高校联盟”成员,作为首批地方高校入选“国际化示范学院推进计划试点单位”。
4系:理工类院系、人文类院系、医学类院系、综合院系中心
代表:张建涛、张东辉、郑东军
郑州大学建筑学院官网:http://www5.zzu.edu.cn/arch/
2
郑州简介

郑州是河南省省会。郑州地处中华腹地,史谓“天地之中”,古称商都,今为绿城。1928年3月建市,现辖6区5市1县(其中,巩义为河南省直管县行政体制改革试点市)及郑州航空港实验区(郑州新郑综合保税区)、郑东新区、郑州经开区、郑州高新区。全市总面积7446平方公里,人口988.1万人,市区面积1010平方公里,中心城区建成区面积549.33平方公里(含航空港经济综合实验区),市域城市建成区面积830.97平方公里,城镇化率72.2%。郑州是中国历史文化名城、中国优秀旅游城市、国家卫生城市、国家园林城市、国家森林城市、全国绿化模范城市、全国科技进步先进市、全国双拥模范城市、全国文明城市。
3
郑州大学建筑学院简介

学院目前设有建筑学、城乡规划学、风景园林学三个本科专业(其中建筑学、城市规划专业均为五年制),每年招收本科生合计120余人(建筑学60人、城市规划30人、风景园林学30人)。建筑学专业本科、硕士均通过全国高等学校专业教育评估,毕业生授予建筑学学士和建筑学硕士学位。
学院拥有建筑学、城乡规划学、景观园林学三个一级学科硕士点授予权,每年招收硕士研究生40余人。建筑学、城乡规划学是河南省一级重点学科。
学院拥有“郑州大学建筑设计研究所”、“郑州大学城市规划设计研究院”、“郑州大学中国建筑文化研究所”、“建筑节能设计与技术河南省工程实验室”等研究机构。
60年来,培养大批高素质专业人才。逐步形成了我国中部地区重要的建筑教育科研基地,为国家和区域社会经济建设做出了积极的贡献。
4
郑大建筑专硕和学硕的区别
郑州大学建筑学分为以下两个方向
建筑学学术型硕士[081300]
建筑学专业型硕士[085100]


▲郑大建筑学术型硕士专业目录

▲郑大建筑专业型硕士专业目录

▲郑大建筑专硕和学硕的差异
考试科目
注:郑大建筑专硕与学硕专业考试内容相同,两专业一起按分数排名录取501建筑学快速题设计成绩满足80分以上(满分150分)
初试:
①101 思想政治理论
②201 英语一
③355 建筑学基础
④501 建筑学快速设计
复试:
①综合考试
②专业技能考试(徒手钢笔画)
③英语听力、口语
④专业面试
TIPS:
今年考试形式相对于以往来说,变动不会太大;目前来说建筑专硕招41人,学硕招2人,因此建议之前备考专硕的同学,还是可以坚持考专硕,相对于学硕来说,专硕竞争相对小很多。
* 以不变应万变,心态至关重要!你慌大家都慌,看谁的调整能力强!
5
郑大建筑历年招收人数和分数线

▲郑大建筑近3年录取人数分析

▲郑大建筑考研历年分数线统计
纵观2016到2019郑州大学建筑学初试分数线,为277到340之间,分数相对其他建筑高校不算高。招生人数一般控制在1~2个班,总人数一般为35人左右。
关于录取人数:
2017年建筑学招收专业硕士28人,学术硕士2人,非全日制3人,总计33人;
2018年建筑学招收专业硕士37人,学术硕士1人,总计38人;
2019年建筑学招收专业硕士34人,学术硕士2人,总计36人;
根据绘四方郑州校区多年教学经验的统计分析:
每年报考郑州大学建筑学研究生的总人数在200人左右;
6
历年初试快题及理论
近十五年郑州大学建筑快题题型总结分析
2004年 社区活动中心建筑设计
2005年 艺术家画廊
2006年 公园餐饮服务楼和圆形蒙古包餐房
2007年 建筑师事务所设计/河南省老年活动中心
2008年 老年俱乐部
2009年 旅游风景区信息服务中心
2011年 旧厂房改造
2012年 旅馆建筑设计
2013年 平面设计工作室
2014年 水上茶餐厅设计
2015年 小型会议度假村及车库剖面
2016年 某商业地块概念性设计
2017年 某社区活动中心(简版)
2018年 社区养老培训服务中心设计
2019年 综合办公楼
郑州大学建筑快题复习建议
纵观郑州大学历年来的考研题目可以分析得出,对方案设计需要更强的基本功,这就需要就很强的建筑学素养,而不仅仅是解决基本的功能和流线问题。郑州定位为交通+商业城市,文化建筑较少,商业建筑项目占绝大多数,因此郑大老师手中的项目也基本都是商业建筑。
郑大初试十年真题中仅在2017年郑大复试考察了郑州棉纺厂车间改造城市展馆——考察重点也不是纪念性与博览建筑,而是空间方面和技术策略等方面的内容。
总之,根据四方的经验,郑州大学的建筑快题类型难度相对不大,建议同学在备考过程中按部就班复习即可。
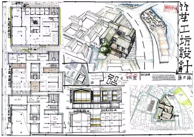
7
郑大建筑快题风格参考







快题解读
关于真题--
建议练完郑大的真题之后,可以练一练重大和其他老八校的;
用纸--
白色:整洁,有力度,A1大小;
量--
量变达成质变,现在开始保持抄图状态,瓶颈不慌重点在总结、思考、交流,寒暑期建议参加绘四方郑州校区的集中训练。
8
理论复习
郑大的专硕和学硕考试内容相同,所以要考的理论是一样的,都是335建筑学基础。
355建筑学基础参考书


▲郑州大学建筑学基础理论官方指定参考书
题型解析
2009-2012年、2014-2019年
A中国建筑史(75分)
(名词解释、简答题、画图题、论述题)
B外国建筑史(75分)
(填空题、名词解释、作图题、简答题、问答题)
2013年
A中国建筑史(75分)
(名词解释、简答题、画图题、问答题)
B外国建筑史(75分)
(填空题、选择题、名词解释、画图题、简答题、论述题)
*仅2013年外国建筑史出现了选择题
9
关于郑大建筑的导师
我们一般是建议在初试成绩出来之后,复试之前,可以着手联系导师,四方的老师和学长学姐们也会帮大家积极介绍导师。
郑州大学在考试过程中是非常严格和公平的,四方往年也培训过很多本科二本三本或者跨专业考上的同学,这个大家不必担心。老师最看重的是你的专业素养和能力。在面试过程中的话希望大家全方位的展现自己,并且自己在本科期间也要加强学习,提升自己的专业能力和专业素养。
福利时间
郑州大学建筑考研快题+理论真题免费赠送
私聊四方微信客服老师即可获取免费领取方式
最后
准备报考郑州大学的同学
今年寒假我们相约郑州绘四方