启迪设计:苏州市双创中心改建项目探析

△西侧人视效果 在贾樟柯的《三峡好人》中,有一个桥段,一栋半山腰的烂尾楼在一个无人醒来的清晨随机性的飞升而走...这种现实主义题材电影中的超现实场景带来了巨大的戏剧张力和冲突,用以表达导演对于未来与现实之间关系的一种思考。
苏州市双创中心改造项目无论是场所因素的“船之意向”,还是阳台本身的飞翼造型,都在无形中蕴含着一种移动的势能和张力,以此表达设计对建筑自身功能和场地环境的回应。

△东北侧鸟瞰效果

△西南侧人视效果
/ 项目背景

△项目区位
苏州市双创中心项目位于苏州高新区邓蔚路1号,古城区正西侧,东临京杭大运河,南临金山浜河,西靠苏州运河路,北临邓蔚路和住宅小区。

△苏州市运河风光带景观改造工程项目
地块与 “苏州市运河风光带景观改造工程项目”相邻,且该项目中的 “苏州之环”就位于本案东南侧。“苏州之环”是一座高度15米,直径80米的水上环状景观建筑。因此在本案改造设计过程中要深入思考两个建筑之间的关系,尽量将它融入于苏州运河风光带的景观大环境之中。


△现有建筑
此项目为改造项目,地块面积15374.9㎡,改造前为工业展览馆,地上两层,建筑高度16米,地上建筑面积5383㎡。改造后功能为创意办公和研发,建筑高度16米,计容面积8960㎡。
/ 功能定位
原建筑功能定位为工业展览馆。展览建筑的立面形式,开窗面积小且富于变化,屋顶及墙面多斜向造型。但对于办公研发建筑,其立面形式无法提供良好的采光,倾斜的外墙造型导致空间利用率不高,建筑表皮的纪念性有余而实用性不足。原建筑在建成后一直处于未使用的毛坯状态,缺乏定期维护保养。
拟建的双创中心是苏州市科技服务中心为提升苏州互联创业的产业氛围而着力打造的产业园,内部主要设置联合办公空间、商务服务中心、众创空间、孵化器等创意办公功能。
/ 设计策略
A.本案与相邻景观项目苏州之环的关系处理
改造前的建筑,呈现为南北两个体量平行布置的状态,而规划建筑苏州之环作为一个圆形的体量,两者之间的矛盾便凸显出来。为了解决这个问题,我们采取了几种方法。首先,通过体量的整合,将原先的南北两个体量合“二”为“一”,并且将整体建筑轮廓柔化,起到缓冲关系的作用。其次是“退台”的手法,在建筑朝向苏州之环的东面设置了退台来削减建筑东南侧的体量感,与苏州之环进行“对话”。在地形景观上,通过铺装辐射苏州之环的形状,稍作拓扑变形,与建筑相契合。

△改造方案总平面
B.改造合理性的问题
改造前建筑由于布展功能需要,开窗形式采用了楔形横条长窗,并不能满足现代办公使用要求。原建筑层高设计为6.5米,单层使用过高,夹层使用过低,另外还存在抗震规范更替带来的梁柱结构加固的问题。经过推敲和研究,最终决定在保留原建筑柱网的基础上,拆除楼板和外墙面。外表皮的材料主要采用铝板、玻璃幕墙,并增大开窗面积,设置百叶窗,解决办公建筑自然采光和通风问题,给予新建筑最大的使用灵活性和合理性。

△改造合理性分析
C.公众性的参与
从建筑区位和建筑性质两方面来考虑,本建筑都应该具备一定的开放性,即为周边居民和运河风光带的游客提供一定的观赏和被观赏可能。建筑本身的三层平台都具备一定的开放性,对市民进行一定的科创方面的科普活动,提高民众的参与度。另外利用场所景观的效用,将本建筑、景观、“苏州之环”连接起来,形成一体化的人行流线,提升民众游览、休憩的体验度。
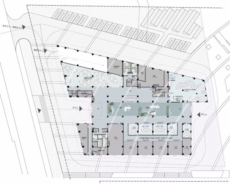
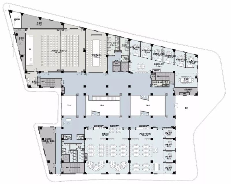
/ 平面布局
改造前的建筑,从总图上呈现出一个“工”字型,两个横条型体量单独布置,南北联系被强行分隔,因此我们改造过程中强化了中间连接体的作用,在首层中庭位置增设绿化中庭,嵌入了咖啡吧、茶歇等休闲功能,并且增设内庭楼梯以活化中庭空间。

△一层平面图

△二层平面图

△三层平面图
二三层中庭设计了若干个 “信息交流坞”,梯形的交流空间从走廊向中庭延挑出去,满足实用功能的同时丰富了中庭的空间。使用者站在连廊上,视线可以随着采光中庭的方向无限延伸,穿透幕墙,翻越露台,跨过运河,直向远方的古城区。

△中庭
整体内部在保持了明亮简洁的基调之上,增加了大量创新科技的元素,以呼应建筑本身的功能要求。尤其在入口门厅、中庭、多功能厅等空间,通过空间、材质、色彩的对比和协调等手段营造出现代高科的办公氛围。

△门厅
/ 建筑手法
A“场所的余荫--运河之船”


△运河之船

△东南角鸟瞰效果

△船之意向分析图
运河之畔,过境船只南北穿梭于这条交通命脉之上,来往的汽笛声悠远绵长......改建后的建筑体量比原建筑更加的“轻量化”,采用三条横向线条将原本厚重的体量消解成层层相叠的伸展状态,亦如隔壁路过的轮机船,不紧不慢,平衡舒缓。改造的后办公楼与运河在场所精神的意义上联系了起来。
B“意向的模糊性--随机的U型玻”

△随机U玻分析图
当代设计的审美倾向从量子力学诞生之日起,便开始了一定的转型,从绝对到相对,从静态、永恒、线性转向动态、发展和随机。在宏观的理性逻辑框架之下,充满了偶然性、特殊性和随机性。双创中心是科创行为的容器,我们采用一种元素来体现这种随机性。U型磨砂玻璃墙,在符合节能要求的同时,其位置和长度也都与内部功能相对应,因此在满足技术功能基础上,也形成了随机的立面肌理,暗合了我们所追求的随机模糊性。
C“隐喻--薛定谔的阳台”

△机翼原理分析图
阳台的栏板形式作为本建筑的母题之一,决定了建筑形体最显著的性格特征,我们研究了栏板的比例尺度,从飞机机翼汲取了灵感。
机翼的上平下鼓的形式为飞机提供了升力,而将这个形式不断延伸,搭接成圈,形成狭长的栏板,在视线所及处有所变化,而非呆板的平行。水平向的弧化和竖向上的拗变相结合,组合成一种动态的连续变体。这种阳台本身的飞翼造型,在意向上形成一种向上的升力,现实和意向的模糊带来一种不确定性,给个代号的话,我们姑且称之为“薛定谔的阳台”。
这种不确定性与“双创中心”的高科技创新定位又相辅相成。因为科技的创新过程充满不确定性,但是科技创新的行为本身带有巨大的“升力”,以承托人类社会的发展。
/ 结 语
本设计通过对既有建筑改造进行“创新创作”,使其在功能、环境、场所、造型、室内等几大方面都实现和谐再生,并逐项呼应“双创”的主题。并且在设计过程中遵循“以人为本”的原则,对内为科创人员营造一个实用、高效、舒适的创业环境,对外亦能给广大市民提供一个可游、可观的景观建筑,拉近人与环境的关系。
项目名称:苏州市双创中心改造项目
用地面积:14341.78㎡
建筑面积:13593.84㎡
设计团队:启迪设计集团股份有限公司
总建筑师:查金荣
建筑设计:吴树馨 柴庆霖 孟庆涛 钱盼 刘畅 周婧 汪奕潇
室内设计:车伟 王跃进 顾海雷
开工时间:2019年7月
预计竣工时间:2020年5月
文字:柴庆霖、吴树馨
内容转自:梅吟雪飞凤
©版权声明:平台尊重作品版权,精选作品均已注明作者和来源,网友分享作品属于原作者所有。
若涉及版权问题,请及时联系我们删除或修改。如需转载、链接、转贴或以其它方式使用本稿,须注明来源作者。