#广州装修##东莞装修##旧房翻新#今天可康之源装饰小编给大家分享一套刘先生家装修案例,位于东莞万江滨江公馆,现代简约风,250平复式楼,用黑白灰重现经典色调
房主是一个在上海打拼的年轻人,通过自己的努力买了一个小复式,原本的装修显得整个空间压抑,无通透采光,房主找到设计师希望能改造这个属于自己的小家,他喜欢黑白灰的经典调,又怕显得空间压抑,所以很纠结,希望设计师能合理运用三种颜色,打造一个现代经典的房间,也希望在这忙碌的一线城市,能有属于自己温馨舒适的家。房子的户型是复式的,两层之间还做了一个小平台,采光不良好。
案例:简约复式
居住成员:成人、儿童
空间户型:复式
空间面积:250平方米
主要建材:瓷砖、大理石、木质地板、绿植

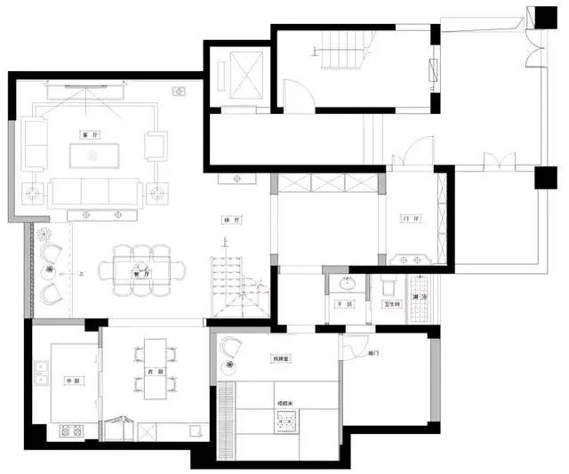
一层平面图

二层平面图
房子原本的户型是压抑不通透的,所以将客厅的吊顶挑高,使客厅变的空旷不压抑,利用设计手法将空间打散重构布局,为了让光进入空间将楼板拆除,空间的大气与采光通风相呼应,运用房主黑、白、灰的要求,使空间变成现代简约风,
这样一来还建造了茶室,儿童书房,棋牌室,卫生间也做成了干湿分离,在二楼还做了一个衣帽间,还有一个小小的休闲区,可以看到一楼客厅。
【茶厅】

设计重点:自然
茶亭是二楼楼梯处的,木质的茶桌和椅子,配上书房门口的绿植,好似在大自然的石洞中,品茶看风景。
【客厅】

设计重点:大气奢华
电视背景墙选用的是黑色的大理石旁边用白色凹凸不平的瓷砖来搭配,显示出主人的品味,灰色的沙发显的空间高级,也运用了房主说的黑、白、灰。
【餐厅】

设计重点:活力
餐厅在楼梯旁,长条桌可以坐很多人,这样平时来朋友吃饭,也解决了就做问题,餐厅的背景墙是一整片的绿植,看起来生机勃勃很有活力,和家人用饭的同时还可以呼吸新鲜的空气。
【卧室】

设计重点:暖意洋溢
卧室墙面采用的是皮面,床被也是极具弹性的软包,台灯是散发暖意的黄色灯光,地毯也是毛茸茸,飘窗做成圆拱形,粉色的窗帘整个空间一进去就是暖意洋溢的。还上整个空间增加了几分浪漫温馨。
【儿童书房】

设计重点:现代风
儿童书房里的书桌是长方形无抽屉的,镜面的台面金属条框的桌腿,相应着对面的埃菲尔铁塔,满满的艺术感,画旁边是两个书柜可以放孩子平时的阅读书、作业和文具,浅色的搭配让儿童房满满的艺术感和现代风。
【走廊】

设计重点:休闲好去处
楼梯厅作为茶室和休闲区,平时在茶室品茶下棋,在休闲区喝着红酒,读着书都是很好的,平时来一个朋友坐在这里谈事在方便不过了,也是休闲放松的好地方。
总结:
颜色的选择要大胆和奇思妙想,灰白色的搭配也可以营造一个温馨的家庭,合理的利用每个角落使家庭变的时尚又大气,勇于尝试便会看到不一样的新家。更多的装修知识请关注康之源装饰!#匠队长#
