居住30年的老房子,住有四代同堂。设计师根据屋主现状和需求,用最纯粹、真诚的设计,营造出家最放松的休憩区域。空间的材料以线条、几何形态,经由不同材质的演绎,展现出各个场域的鲜明意义。众多人居住的房子,收纳如何设计的更多才是大家的痛点?室内三个大储藏室,收纳着家的传承与满满的共同回忆。巧妙的收纳空间不仅仅把家的效能发挥得比想象中大,更是孩子的游戏场。收纳空间足足翻了3倍!屋主非常满意,他们是如何办到的呢?
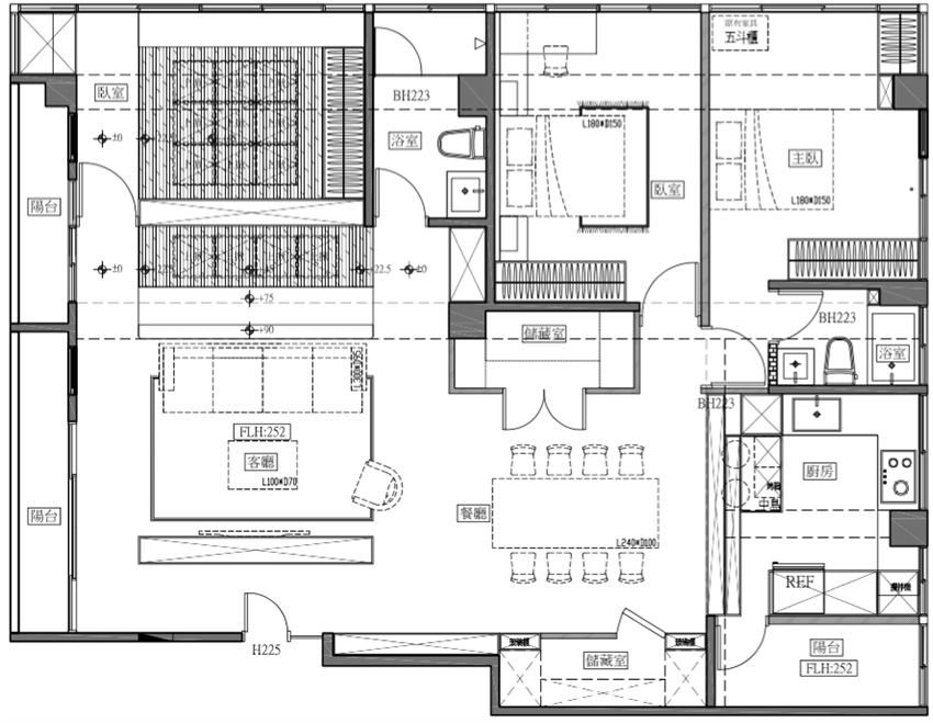
1、超哥今日分享老房翻新的案例!全屋室内面积132㎡/户型格局3房2厅2卫/居住人数5人。整个户型是方正型,回廊采取双动线设计(超哥经常案例户型里面提到),将进门客厅做了玄关遮挡(一组鞋柜增加私密性),反面是电视柜,打造采光明亮、动线流畅的家庭新生活。有类似的亲们可以借鉴哟!

这是客厅沙发看背景墙角度,电视墙后是入户门。


2、客厅区域:整面落地窗带来自然光线,白色烤漆电视墙搭配温暖木地板,让开放式空间中充满放松气息,家人可随着动线随意移动,小孩也多了自在的游戏空间。此外,屋主希望将天花板化作真实天空,因此用浅蓝色明管跳色,清新北欧风宅也能有不一样的活泼玩心。

3、书房区域:书房可以设计成开放式区域,阅读、使用电脑时能和在客厅看电视的家人互动,两个空间用水泥板区隔,添加木系元素与后方木作柜体相互呼应,镂空房屋造型象征温馨居家回忆、归属感,也能放置相框、植栽等展示物品。另外,地板也暗藏玄机,隐藏式收纳再也不用烦恼行李箱无处摆放。是不是非常的实用呢?


4、餐厨区域:女主人平时喜爱烘培,因此厨房重新规划成开放式空间,地面用不同纹路木地板作为场域分割,背墙以浅蓝色烤漆玻璃带出清爽氛围,让平时下厨时光显得悠闲写意,也方便清理,加上电器柜做到顶部,满足东西较多的一家人日常需求。


餐桌左边两边的墙体都做了收纳柜,宝宝的玩具满满两大柜,毫无压力呀!

5、主卧室区域:卧室床铺架高,保留斜面天花板不特意包起,弱化卧房给人的压迫感,床头背墙运用薄荷绿营造清新感,层架、抽屉和窗边书桌均为木工,而左边衣柜则为衣柜。


6、客房区域:高低差区别场域,九个隐藏式收纳,可放置棉被、行李箱等大型物品,左侧为活动式桌面;此区同时是小朋友活动区域,客人来访时也能打地铺。



收纳储藏空间足足抵上别人2套房子的面积,也难怪楼上下的邻居都纷纷前来学习呢!怎么样学会了吧?装修旺季即将到来,欢迎和超哥交流,让我帮你打造属于你的梦想家吧!
不买房,先收藏,保准以后能用上!