有的户型,客厅是狭长型的,常规的设计方案为电视墙、茶几和沙发,但对于这样的客厅而言,沙发区就距离电视墙太远了。具体应该怎么办呢?本方案的设计师采取的处理方案是在沙发后面摆了两张书桌和一个书柜,刚好满足了夫妻二人同时办公的需求,业主对这样的装修设计方案非常满意。
接下来,就和秀巢网小编一起看看这个北欧风格的装修设计方案吧,还有其它的亮点有待展示呢,先上平面布置图:

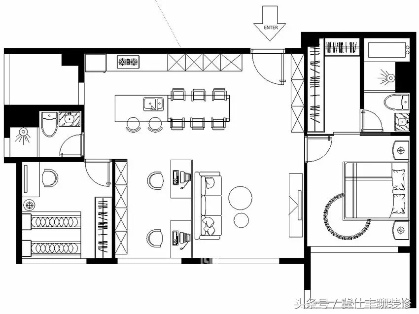
平面图

客厅餐厅厨房一体布局

沙发后面的工作区

工作区还是挺大的

餐厅也很不错

夜幕降临时的主卧

次卧

卫生间的墙砖和地砖都很有个性
有人会说,沙发后面没有墙,不太符合风水的要求啊,这就要看业主的选择了,风水重要,还是漂亮重要?不同的人会有不同的选择。也有人说,还不如把沙发后面隔出一个房间来呢,更实用,但这样处理的话,采光可能要打些折扣了,要知道,北欧风格对采光的需求简直是高于一切的。
另外,很多北京的业主朋友计划直接找工长装修,但担心没有保障怎么办,不妨*载下**【秀巢选装修】APP吧,由大公司的优秀工长免费上门量房报价,没有转包费,节省40%的费用,秀巢网提供具有良心的全程监理和五年保修。
更系统的家装知识分享地——秀巢网微信公众号:shownest(长按可复制)