
写在开头,本文摘录于loft中国。不做任何商业用途,自己本就是行业的从事者。喜欢这个行业,愿意将更多的美好设计展现给大家看。如有侵权,请与我联系删除。
正文开始
作为一名武汉建筑师,能够在长江、汉水交汇的南岸嘴盖一栋悉尼歌剧院式的建筑是我儿时的梦想。但当2000年武汉市政府将其定性为南岸嘴江滩公园之后,这一“职业目标”在我选择建筑专业前就已不复存在了。
朝天门 Chaotianmen
老人们讲,两江交汇之处是一个城市的丹田所在,对于这样一个无论盖什么都会引来非议的地方,最稳健的决策就是不做任何建设。然而,重庆却做出了更具勇气的选择,在长江、嘉陵江交汇的朝天门,个性张扬的“来福士”正在拔地而起,傲视两江。而在它的对岸,无数的江景民宿已打扮妥当,争相在这“朝天扬帆”的盛景前合影:不同的装修与摄影风格,不变的是窗外“来福士”那魔幻的施工现场,它们都是“Airbnb”上最夺目的定妆照。
Old people say that the intersection of two rivers is the core of a city, for such a place anything you build is going to attract criticism, the most prudent decision is not to do any construction.Chongqing, however, has made a more courageous choice. In Chaotianmen, where the Yangtze and jialing rivers meet, individualistic “Raffles” is rising. On the other side of the river, countless river view homestay have been dressed up, vying for photos in front of the “upturned sails” : different decoration and photography styles, the same is the magic construction site of the “Raffles” outside the window, they are all the most dazzling makeup photos on “Airbnb”.


小区 Residence
本项目位于一处临江小区的25楼,面向朝天门有极佳的观赏角度。从外部观看,小区的房间有局部跃层的处理,形成通高六米的开放式阳台,物业对建筑外立面并不加以控制,这给了住户很大的发挥空间。这里既有设计师的奇思妙想,也有住户的随心所欲:有的封闭起阳台,有的添置了夹层,有的改造成花园… 不同的结构形式、材料与色彩争奇斗艳,整个小区似乎重现了柯布西耶的阿尔及尔市OBUS规划,是一个可容纳多样化表达和二次设计的基础结构。
The project is located on the 25th floor, with an excellent view of Chaotianme. Viewed from the outside, the buildings have open balconies with a total height of six meters. The property management does not control the building facade, which gives the residents a lot of space to play: some close the balcony, some add a mezzanine, some transform it into a garden…with different structural forms, materials and colors, the whole community seems to reproduce the Algiers OBUS planning of Le corbusier, which is a basic structure that can accommodate diverse expressions and secondary designs.



改造 Reconstruction
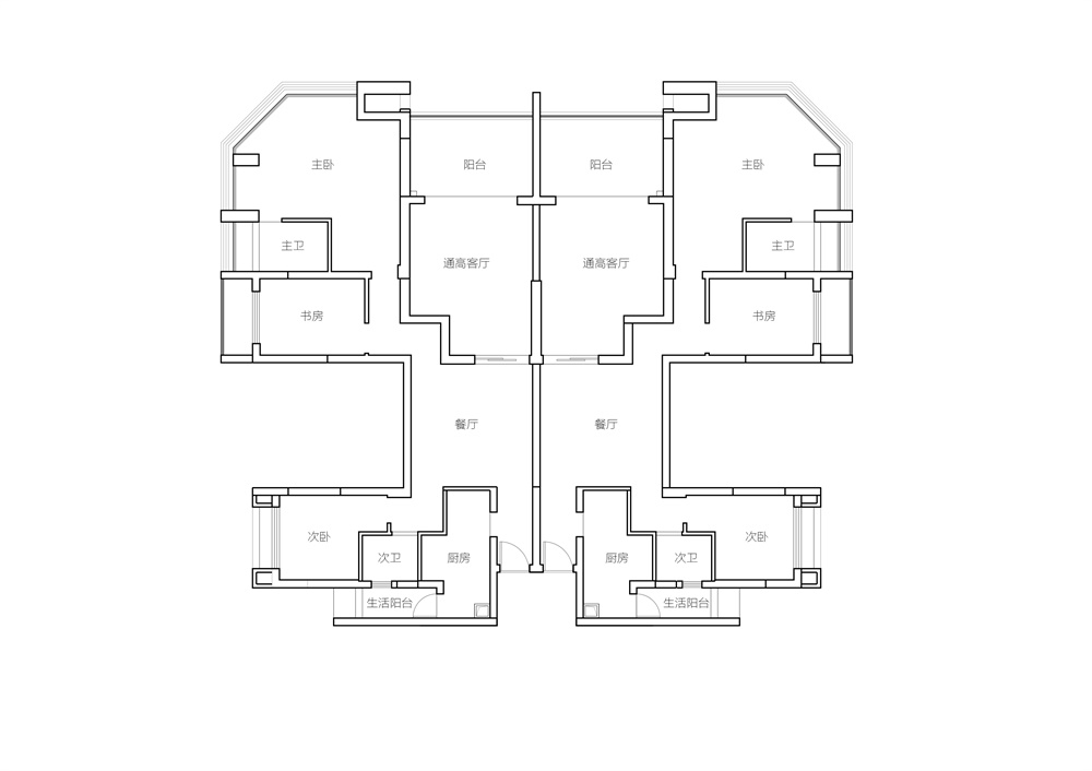
小区的户型是一梯两户共233平方米,每户三室两厅两卫,其中客厅部分通高六米。业主买下整个25层用于民宿经营,综合考虑现有的管线位置和房间面积,将除餐厅外的部分改造为七间客房(其中一间为跃层)。得益于江景房的先天优势,这里既有面宽12米的转角落地窗,也有通高六米的临江阳台,景观资源可以用“横轴”和“竖轴”的方式被引入,我们需要做的仅是拆除多余的隔墙来充分发挥这一优势。为了提升民宿的入户体验,我们选择仅保留一个入户门,将两间餐厅打通形成一个近40平米的公区,置入吧台和早餐厅的功能,并在公区正中间设置一条长桌,以避免入户后漫无目的的流线,引导住客绕场一周后再进入自己的房间,以期能够在尺寸间创造出节奏上的变化。
The unit has 233 square metre, including 3 rooms 2 halls 2 toilets, among them sitting room part is 6 meters height. The owner purchased the entire 25 floors for the operation of the homestay, taking into account the existing pipeline location and room area, we transformed the part except the dining room into seven guest rooms (one of which is a loft). Benefiting from the innate advantages of the river view, there are both windows at the corner with a width of 12 meters and balconies facing the river with a height of six meters. Landscape resources can be introduced in the way of “horizontal axis” and “vertical axis”. What we need to do is to dismantle the redundant partition wall to give full play to this advantage.In order to ascend the first impression, we choose to retain only one door, combining the two restaurants into a public area. In order to avoid the aimless streamline, a long table is set up in the center, leading the residents make a circle before enter the room .




网红 Web Celebrity
身处城市小区,决定了它很难具备精品民宿的品质;而坐拥两江盛景,又使其不甘沦为商务快捷酒店,用“网红民宿”来描述其定位十分恰当。网红经济是一个值得探讨的现象,居伊·德波曾在《景观社会》中预测了一种十分悲观的生存状态:整个社会生活显示为巨大的幻象的堆积,少数人演出,多数人被动观看,依靠幻象而活,无论是商品还是明星都是被多数人观看的幻象。但现在看来,这一趋势似乎发生了扭转,随着微信微博、直播平台的兴起,普通人的平凡生活开始变成观看对象,于是人人都可以是表演者,大家互相观看。而面对一个个网红打卡点,人们先是被戏剧化的真实所吸引,但随后就会去进行切身体验,并拿起手机化身为新的表演者,被动观看的生活状态也随之瓦解,一种新的生活常态被建立。
It is difficult to have the quality of boutique homestay as it located in the urban area, however, it is unwilling to be reduced to a business express hotel due to the prosperous scenery of the two rivers. “web celebrity homestay” is an appropriate description. In the 《the society of the spectacle》, Guy Ernest Dobord predicted a very pessimistic condition: the whole social life shows for the accumulation of huge spectacle, a few people perform, while the majority of people watch them passively, both goods and stars are the illusion. But now it seems that this trend has been reversed. With the rise of WeChat, micro-blog and live broadcasting platform, the ordinary life of ordinary people starts to become the viewing object, so everyone can be a performer and everyone can watch each other. In the face of web celebrity clocked points, people are attracted by the dramatic reality, but then they will have a personal experience and pick up their mobile phones to become new performers. As a result, the passive watching life will collapse and a new normal life will be established.

楼梯 Stairs
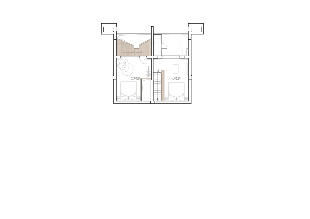
如何利用六米通高的阳台创造与朝天门的互动关系,在沿岸数不清的民宿中脱颖而出,成为第一网红打卡点?电影《蒂凡尼的早餐》带来了灵感,奥黛丽赫本倚在消防楼梯上拨弦清唱“Moon River”的画面符合在阳台上制造奇异幻象的一切条件。于是我们将通往跃层二楼(客房卧室)的楼梯至于阳台之上,配合对岸的景观将休息平台设计成两个取景框,提供不同角度和姿势的观景选择,并期待在此发生不同的桥段与情节,为住客提供在网络上化身为表演者的舞台。
How to create an interactive relationship with Chaotianmen by the six-meter-high balcony, so as to stand out in the countless homestay along the coast? Inspired by《Breakfast at Tiffany’s》, the scene of Audrey Hepburn leaning on a fire staircase, plucking the strings and singing “Moon River” meets all the criteria for creating a bizarre spectacle on a balcony.Therefore, we put the stair on the balcony, and designed the rest platform into two viewfinder frames in accordance with the landscape on the other side, providing different viewing options with different angles and postures, and expecting different scenes and plots to happen here, so as to provide the stage for the guests to become performers on the Internet.






室外楼梯的现场体验有着出乎意料的场所感:与风景的对视关系,可倚可坐的各级台阶,以及木纹温暖的触感,都让人得以诗意的停留。置身于此,便不再想跟居伊·德波辩论“观看”与“表演”的问题了,却更想向海德格尔求教一下现代化社会中的诗意栖居,或是对天地神人的守护。当一名旅客背负行囊来到重庆,沉溺于灯红酒绿的感官刺激,栖身在一个巨大人造物的第25层,其生活方式无疑脱离了淳朴而异化为征服大地、拒绝天空、远离诸神和自我流放。但这个阳台上的楼梯却可以用自己的方式将天地神人重新聚集于此:它护送着慢悠悠或急匆匆的旅客,在通达卧室的途中,获得了重新感知天空与大地的方法,这也就是在跨越他们已经习惯了的沉沦状态,无论这一过程是否被特别的思考到了。












