
大 宅 艺 术 定 制 / 空 间 优 化 专 家
项目地址:群升大智汇
Project adress:Group rise to dazhihui
户型结构:复式洋房
Unit structure:Duplex house
项目面积:240㎡
Project area:240㎡
设计风格:现代风格
Design style:Modern style
方案设计师:廖颖

设计星语 / Design specification
有温度的关怀
有情感的语言
还有一份心安
这便是
家的模样

案例总述 / Case summary
本案例是位于群升大智汇的复式洋房设计。
业主是个热爱生活的人,希望自己的家是美好舒服的,一进门就能静下心来,忘却所有烦恼。因此,在整体设计上选择了现代风格,以实用为主,简洁自然,又不失情趣诗意。

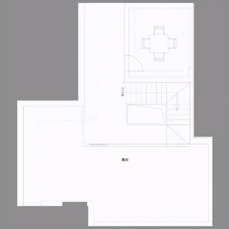
空间优化 / Spatial optimization

◣一层◢

◣二层◢

◣三层◢
一层设置为活动空间,客餐厅包含于此,空间宽敞,内外通透;另外规划出长辈房和儿童房,免去上下楼梯的麻烦,安全便捷;
二层规划为主卧,动静分离,保持空间私密性,尽情享受只属于自己的惬意时光;
三层有个小露台,四季变幻,风光不同,是个休闲放松的好去处。

色彩分析 / color scheme



效果展示 / Effect display
▷ 客厅 / Living room

黑与白,理性而克制,铺展出低调稳重的空间基调,座椅、茶几以不规则的造型曲转、延伸,穿破冷静的空间氛围,零星散落的木色、金棕色,是这严谨空间中的一抹炽热,明亮耀眼,让人不可忽视。

一缕阳光,暖而和煦,浸润灵魂,包裹住都市人坚毅敏锐的内心,温柔不失冷静,形成一番“心有猛虎,细嗅蔷薇”的宁静诗意。

浪漫或者严谨,随性或者克制,在相互对抗中,以协调的艺术语言挖掘冲突的均衡,平衡空间场域,渲染一种家的新奇美感。
▷ 餐厅 / Restaurant

漫步穿行于空间之中,流动着的烟火气息,轻溢出阵阵沁人的香味,悠然绵长,惬意舒适,爱意,在心底肆意生长。
▷ 主卧 / Bedroom

在城市的洪流中,找寻一处心灵栖居之所,轻盈通透,柔软细腻,于月华微影中,倾听自然万物的低吟浅唱,意蕴悠长,令人向往。
▷ 长辈房 / Senior housing

大面积灰色,配合木饰与吊灯的搭配,使得空间静谧舒适。一花一木,一纱一床,简单真实,让生活回归本质,把一切不属于生活的内容剔除干净。
▷ 儿童房 / Children′s room

小小的儿童房,容纳着孩子心目中憧憬的童梦世界。地毯的柔软、玩偶的陪伴、空间里的秘密小时光……
以温暖的手法触碰孩童内心深处的渴望,令每个日常都饱含生机。

书房,作为孩子充电学习的地方,一缕光、半卷书,足以安放灵感无限的精神世界。

设计感言 / Feeling
艺术源于生活
而生活创造艺术
一个家庭
演绎一场生活的美学之展

