现代美式风格最近几年很受大家的喜欢,其独特的硬装造型和简约的家具,大面积的灰蓝色墙面使得居住人很舒服。160平四居室的包头翡丽湾的家,在设计上重视功能和空间组织。空间造型方面多采用几何结构,低调的配色与木质所组构的温度,缔造出舒适清雅的田园生活之美。
小区:包头翡丽湾
面价:160㎡
户型:四居室
风格:美式田园风格
费用:25万(基础装修15万,家居家电10万,不含软装等)
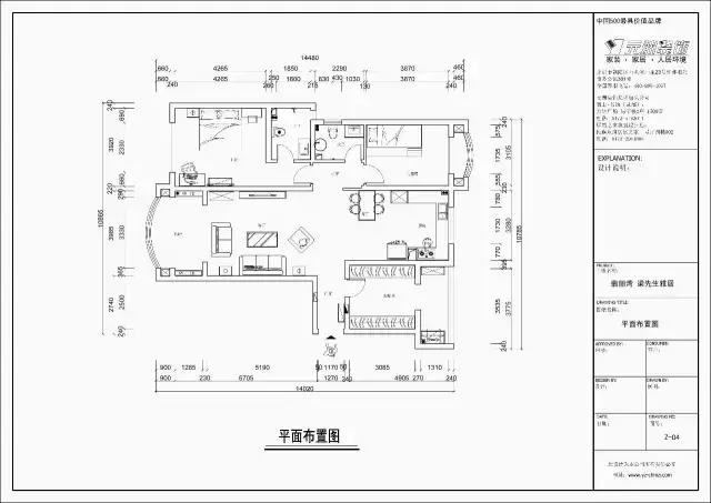
▽平面布置图

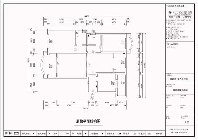
原始平面结构图

▽客厅(拍摄)

包头翡丽湾实景图-160平四居室美式田园风格

包头翡丽湾实景图-160平四居室美式田园风格

包头翡丽湾实景图-160平四居室美式田园风格


▽餐厅(拍摄)

▽卧室飘窗(拍摄)

▽卧室(拍摄)

幸福是什么?
幸福是在大隐于市的静谧之处
拥有一家人点滴布置起来的家
和始终拥有被珍视的感觉