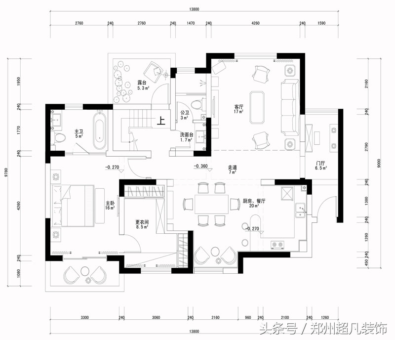
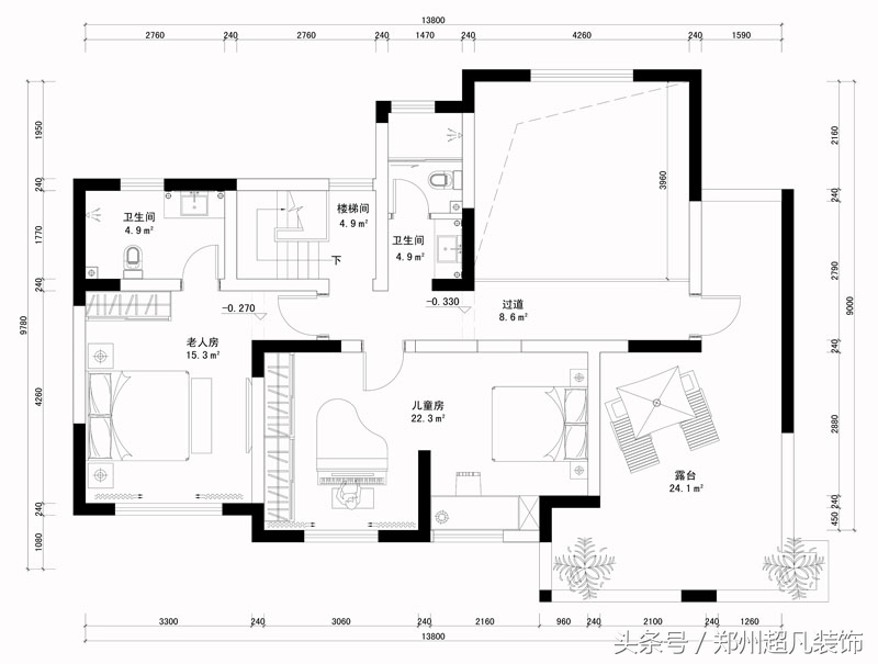
项目名称:德润黄金海岸
户型名称:复式
面积:200平
设计风格:欧式风格
设计公司:河南超凡装饰
设计师:王晓斌
设计说明:本案例是郑州黄金海岸的复式户型结构设计,作为三代人共同生活的空间,设计师在设计之初就根据主人的实际情况进行了空间布局,同时改动了部分结构,二楼的两间小卧室改造成小公主的卧室和琴房,打通了两个空间,使空间更显通透敞亮。欧式风格的魅力所在便是用最简单的手法创造欧式风格雅致的生活情调,本案设计中抛弃一些不必要的配饰,将空间尽量简约化,设计中穿插了一些小而精巧的工艺造型配饰,在各个小空间中形成点睛之笔,进而完成对大空间的修饰,由小到大。












参与郑州超凡装饰短信互动:
获得指定小区速算报价和设计方案,请联系或者编辑短信(小区名称、几室几厅、建筑面积、装修风格)发送至13783640059(微信同号,5分钟内回复装修报价)。