上海青浦协和双语学校是协和集团的旗舰作品,致力于建设一个面向未来的智慧型学校。为了适应学生、老师和家长们各自迥异的使用场景,校区建筑呈现出不同的空间姿态。

对于家长而言,校园是开放、友好的。运动场面向城市打开,孩子们的欢声笑语是城市风景的一部分。每栋教学楼的端部均齐齐扭向操场,生动的立面表情恰似孩子们灿烂的笑脸。

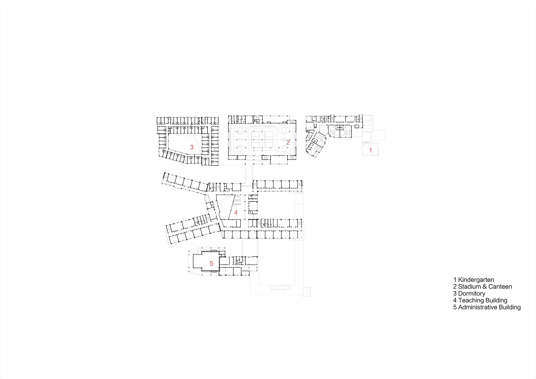
▲ 总平面图



校区入口广场方正开阔,看的到传统书院的影子,四周设置环廊遮风避雨,上下翻折延伸喻示着空间的变化。这是一个理想的校园边界,它可以满足妈妈们安心目送的愿望,也像是同学们角色转化的开关,成为完整的教学体系和日常社会生活的柔和过渡。






对于老师而言,校园意味着秩序和久远。布局以中轴为核心,功能区块采用不同色彩予以标示,例如高中部是蓝色,小学部是黄色,公共廊道则施以正红色。这一色彩体系严格的延续到室内,色调活泼明亮,具有很强的标识性。合班教室间设置有移动隔板,走廊局部可以适时扩大,复合的餐厅功能区,开架的庭院图书馆,形成了一个个非正式、可变动的灵活空间。这样既可以保证日常科目有条不紊的开展,又能适应未来教学方式的迭代调整,历久常新,悠然久远。













对于学生而言,希望校园是真实的,平等的。这表现为建造的真实,结构规整,构造清晰,饰面朴素。手法的克制,平和的姿态,避免了大尺度造成的压迫和疏离,恰似一种不动声色的呵护,让学生们自在放松,成为日常教学活动的真实背景。

项目图纸

▲ 一层平面图

▲ 二层平面图

▲ 三层平面图

▲ 五层平面图

▲ 立面图

▲ 剖面图

▲ 分析图

▲ 分析图

▲ 节点详图
项目信息
项目类型:中小学校
项目地址:上海, 中国
建筑师:上海实现建筑设计事务所
面积:72058.0 m2
项目年份:2019
摄影师:吴清山
厂家:ADMQ 常州安达, AISA PAINT 苏州亚士, LOPO 福建乐普
主创建筑师:朱晓光
设计团队:李洪,冯祯,杜鑫,钱铨,何奕均,袁星 ,张必晗,钟振宇
业主:上海吉富绅置业集团有限公司